Скачать Серия 4.904-52 Воздухораспределители центробежные тип ВЦ. Рабочие чертежиДата актуализации: 10.08.2017 Серия 4.904-52
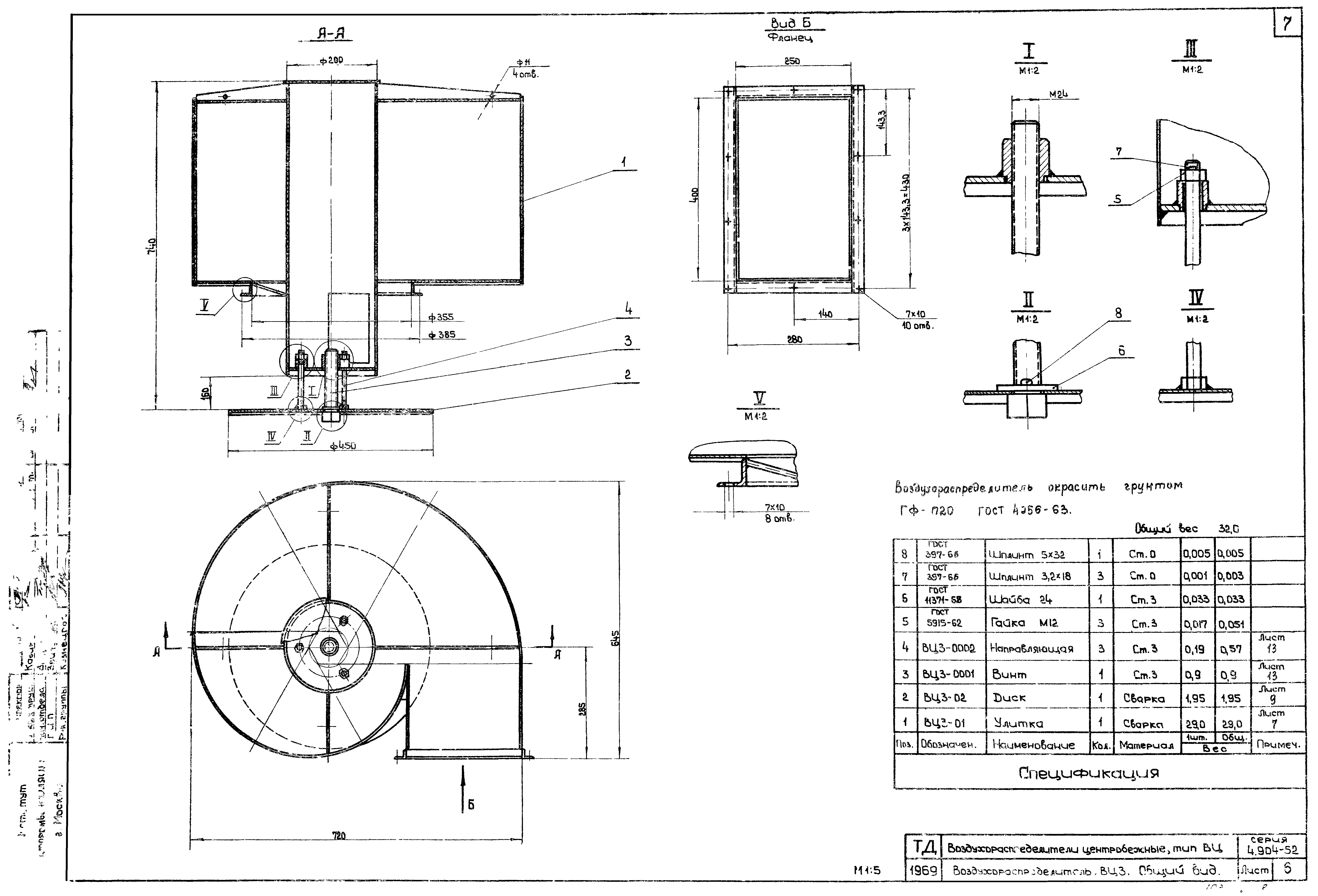
Воздухораспределители центробежные тип ВЦ. Рабочие чертежиОбозначение: | Серия 4.904-52 | Обозначение англ: | Series 4.904-52 | Статус: | не действует | Название рус.: | Воздухораспределители центробежные тип ВЦ. Рабочие чертежи | Дата добавления в базу: | 01.09.2013 | Дата актуализации: | 05.05.2017 | Дата введения: | 01.05.1984 | Разработан: | Проектпромвентиляция ВНИИГС
| Утверждён: | 26.11.1969 Главпромстройпроект Госстроя СССР (47)
| Расположен в: |
|
                    
|