Информационная система
«Ёшкин Кот»

Скачать базу одним архивом
Скачать обновления
История создания базы
Карта сайта

Скачать Типовой проект 111-25-21/1.2 Альбом I. Часть 1. Архитектурно-строительные чертежи выше отм. 0.000

Дата актуализации: 10.08.2017

Типовой проект 111-25-21/1.2

Альбом I. Часть 1. Архитектурно-строительные чертежи выше отм. 0.000

Обозначение: Типовой проект 111-25-21/1.2
Обозначение англ: 111-25-21/1.2
Статус:не определен законодательством
Название рус.:Альбом I. Часть 1. Архитектурно-строительные чертежи выше отм. 0.000
Дата добавления в базу:01.09.2013
Дата актуализации:05.05.2017
Дата введения:14.12.1982
Оглавление:Общие данные
Планы
План типового этажа в осях 1 - 13
План типового этажа в осях 13 - 25
План типового этажа в осях 1 - 13 (объемные санкабины)
План типового этажа в осях 13 - 25 (объемные санкабины)
План типового этажа в осях 1 - 13 (вариант ВС б = 180 мм)
План типового этажа в осях 13 - 25 (вариант ВС б = 180 мм)
Фрагменты плана 1 этажа
План типового этажа для отделочных работ в осях 1 - 13
План типового этажа для отделочных работ в осях 13 - 25
Фасады в осях "1-25", "25-1", "А-Г", "Г-А". Однорядная разрезка наружных стен. Вариант 1
Фасады в осях "1-25", "25-1", "А-Г", "Г-А". Однорядная разрезка наружных стен. Вариант 2
Фасады в осях "1-25", "25-1", "А-Г", "Г-А". Однорядная разрезка наружных стен. Вариант 3
Фасады в осях "1-25", "25-1", "А-Г", "Г-А". Двухрядная разрезка наружных стен
Вариант ограждения балконов
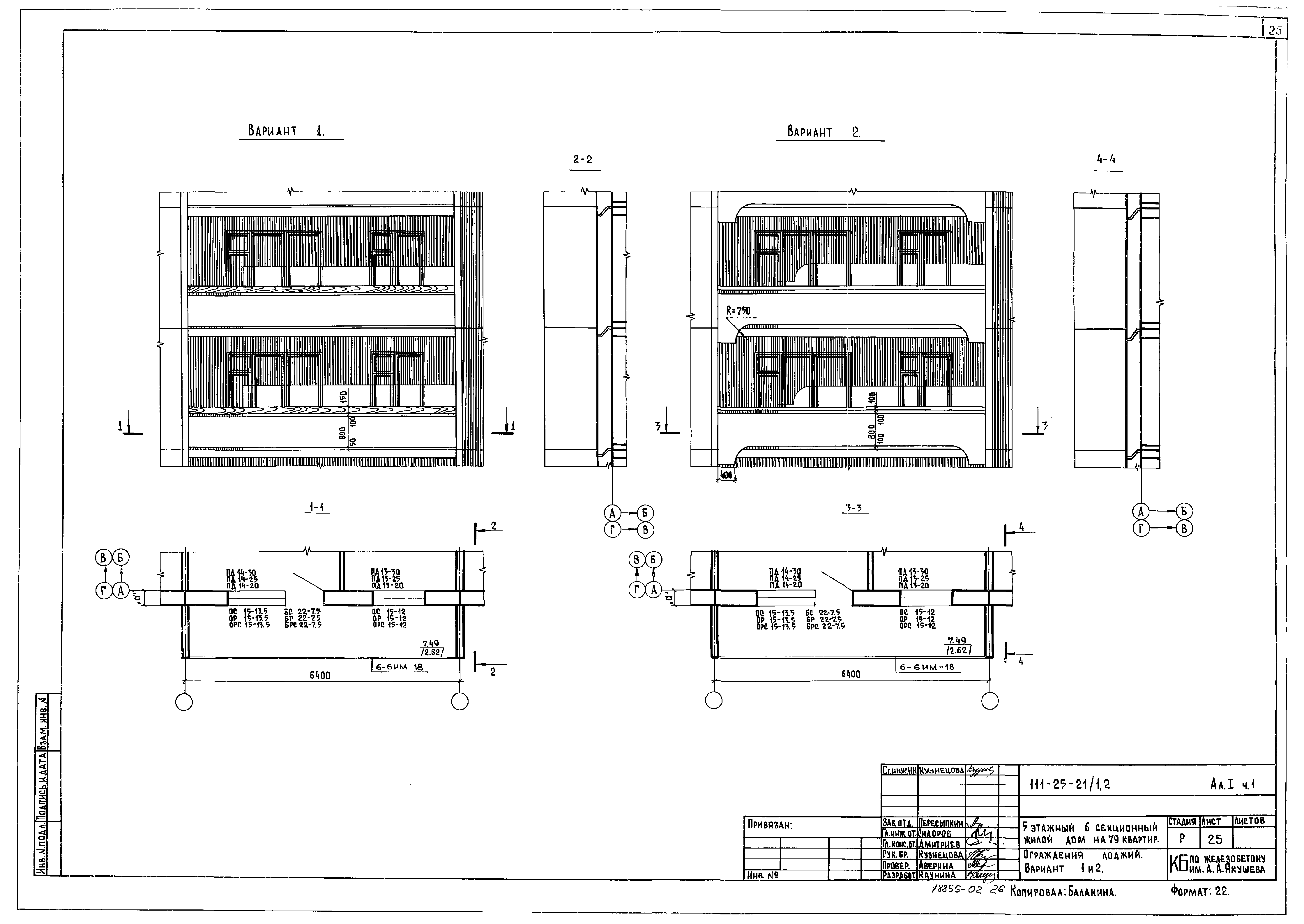
Ограждение лоджий в осях 3 - 5, 21 - 23. Вариант 1 и 3
Ограждение лоджий в осях 3 - 5, 21 - 23. Вариант 2
Ограждение лоджий. Вариант 1 и 2
Разрез 1-1, Ограждение лоджий. Вариант 3
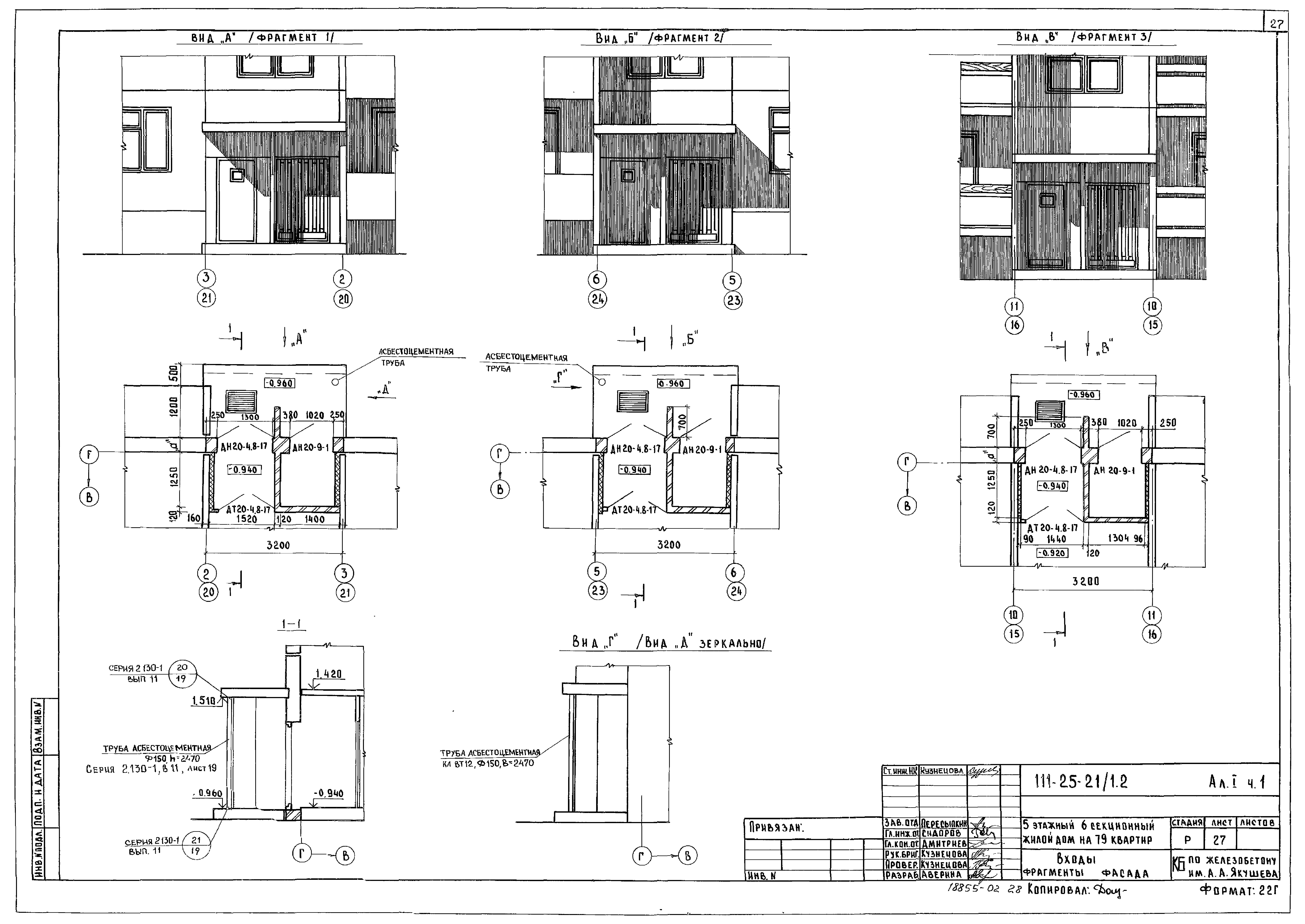
Входы. Фрагменты фасада
Ведомость отделки помещений. Ведомость отделки фасадов
Варианты инженерного оборудования. Технико-экономические и эксплуатационные показатели
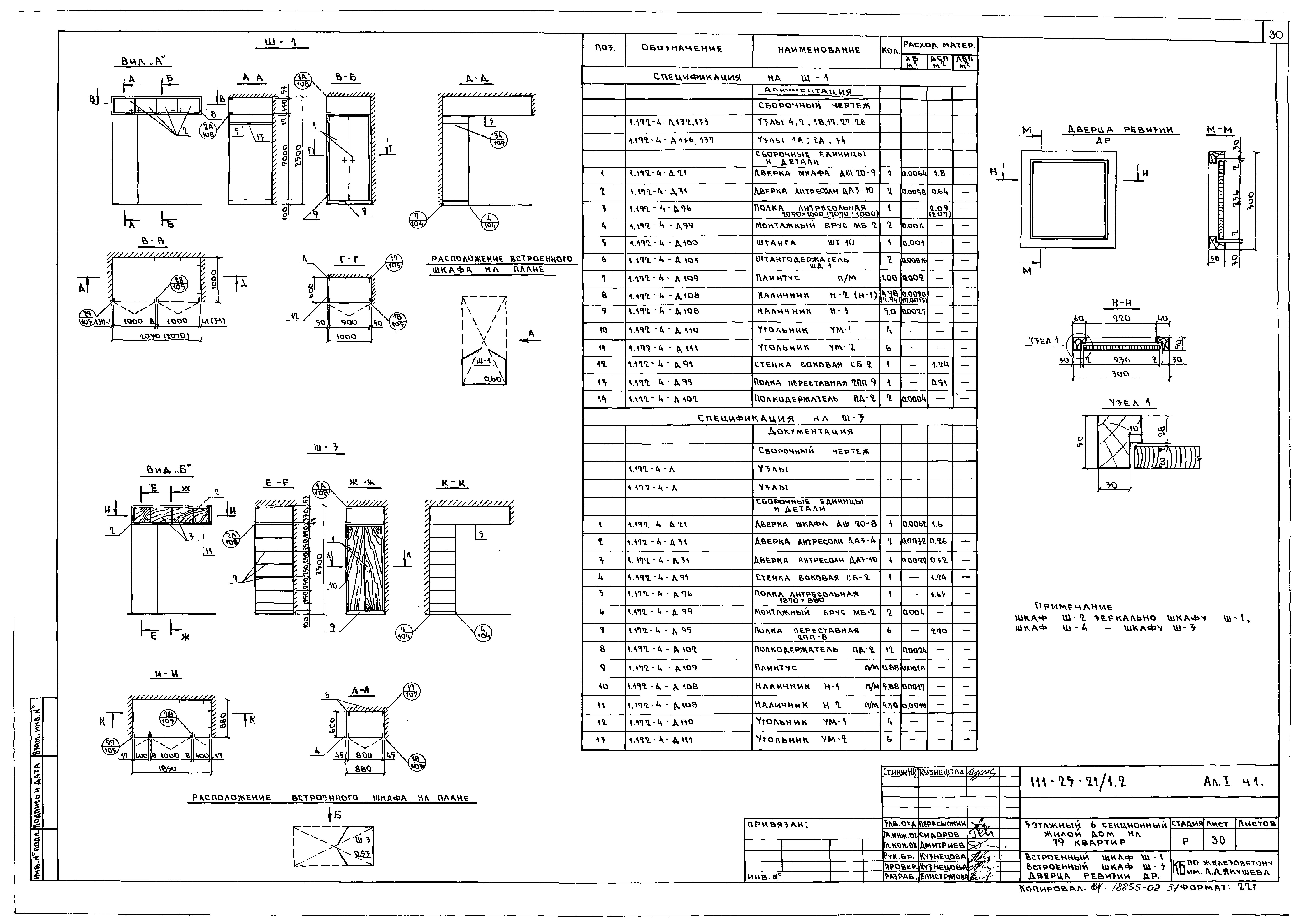
Встроенный шкаф Ш-1. Встроенный шкаф Ш-2. Дверца ревизии ДР
Встроенные шкафы Ш-5, Ш-6, Ш-8
Антресоль А-1, А-2, А-3. Деталь пола в санузлах
Спецификация столярных изделий
Монтажные схемы фасадов в осях "1-25", "25-1", "А-Г", "Г-А" (полосовая разрезка стен)
Монтажные схемы фасадов в осях "1-25", "25-1", "А-Г", "Г-А" (однорядная разрезка стен)
Монтажный план типового этажа в осях "1 - 13". Фрагменты плана с объемными сантехкабинами
Монтажный план типового этажа в осях "13 - 25"
Монтажный план перекрытия типового этажа в осях "1 - 13" плитами шириной 1190 мм. Фрагменты
Монтажный план перекрытия типового этажа в осях "13 - 25" плитами шириной 1190 мм. Фрагменты
Монтажный план перекрытия типового этажа в осях "1 - 13" плитами шириной 2390 мм. Фрагменты
Монтажный план перекрытия типового этажа в осях "13 - 25" плитами шириной 2390 мм. Фрагменты
План раскладки фризовых панелей. План кровли
План раскладки подстропильных ферм
План раскладки стропильных щитов в осях "1 - 13". Разрез II-II
План раскладки стропильных щитов в осях "13 - 25". Разрез III-III
Разрезы I-I, IV-IV
Узлы 1 - 8
Развертки и узлы по вентблокам
Монтажная схема мусоропровода. Мусорокамера, приемный бункер
Спецификация наружных стеновых панелей
Спецификация бетонных и железобетонных изделий
Спецификация металлических и деревянных изделий
Разработан: КБ по железобетону им. А.А. Якушева
Утверждён:24.05.1976 Госстрой РСФСР (Russian Federation Gosstroy 20)
Расположен в:Техническая документация Строительство Справочные документы Типовые строительные конструкции, изделия и узлы Общероссийский строительный каталог Жилые здания для строительства в городах и поселках городского типа Обычные условия Жилые дома панельные Серия 25
Типовой проект 111-25-21/1.2Типовой проект 111-25-21/1.2Типовой проект 111-25-21/1.2Типовой проект 111-25-21/1.2Типовой проект 111-25-21/1.2Типовой проект 111-25-21/1.2Типовой проект 111-25-21/1.2Типовой проект 111-25-21/1.2Типовой проект 111-25-21/1.2Типовой проект 111-25-21/1.2Типовой проект 111-25-21/1.2Типовой проект 111-25-21/1.2Типовой проект 111-25-21/1.2Типовой проект 111-25-21/1.2Типовой проект 111-25-21/1.2Типовой проект 111-25-21/1.2Типовой проект 111-25-21/1.2Типовой проект 111-25-21/1.2Типовой проект 111-25-21/1.2Типовой проект 111-25-21/1.2Типовой проект 111-25-21/1.2Типовой проект 111-25-21/1.2Типовой проект 111-25-21/1.2Типовой проект 111-25-21/1.2Типовой проект 111-25-21/1.2Типовой проект 111-25-21/1.2Типовой проект 111-25-21/1.2Типовой проект 111-25-21/1.2Типовой проект 111-25-21/1.2Типовой проект 111-25-21/1.2Типовой проект 111-25-21/1.2Типовой проект 111-25-21/1.2Типовой проект 111-25-21/1.2Типовой проект 111-25-21/1.2Типовой проект 111-25-21/1.2Типовой проект 111-25-21/1.2Типовой проект 111-25-21/1.2Типовой проект 111-25-21/1.2Типовой проект 111-25-21/1.2Типовой проект 111-25-21/1.2Типовой проект 111-25-21/1.2Типовой проект 111-25-21/1.2Типовой проект 111-25-21/1.2Типовой проект 111-25-21/1.2Типовой проект 111-25-21/1.2Типовой проект 111-25-21/1.2Типовой проект 111-25-21/1.2Типовой проект 111-25-21/1.2Типовой проект 111-25-21/1.2Типовой проект 111-25-21/1.2Типовой проект 111-25-21/1.2Типовой проект 111-25-21/1.2Типовой проект 111-25-21/1.2Типовой проект 111-25-21/1.2Типовой проект 111-25-21/1.2Типовой проект 111-25-21/1.2

© 2013 Ёшкин Кот :-) Карта сайта