Информационная система
«Ёшкин Кот»

Скачать базу одним архивом
Скачать обновления
История создания базы
Карта сайта

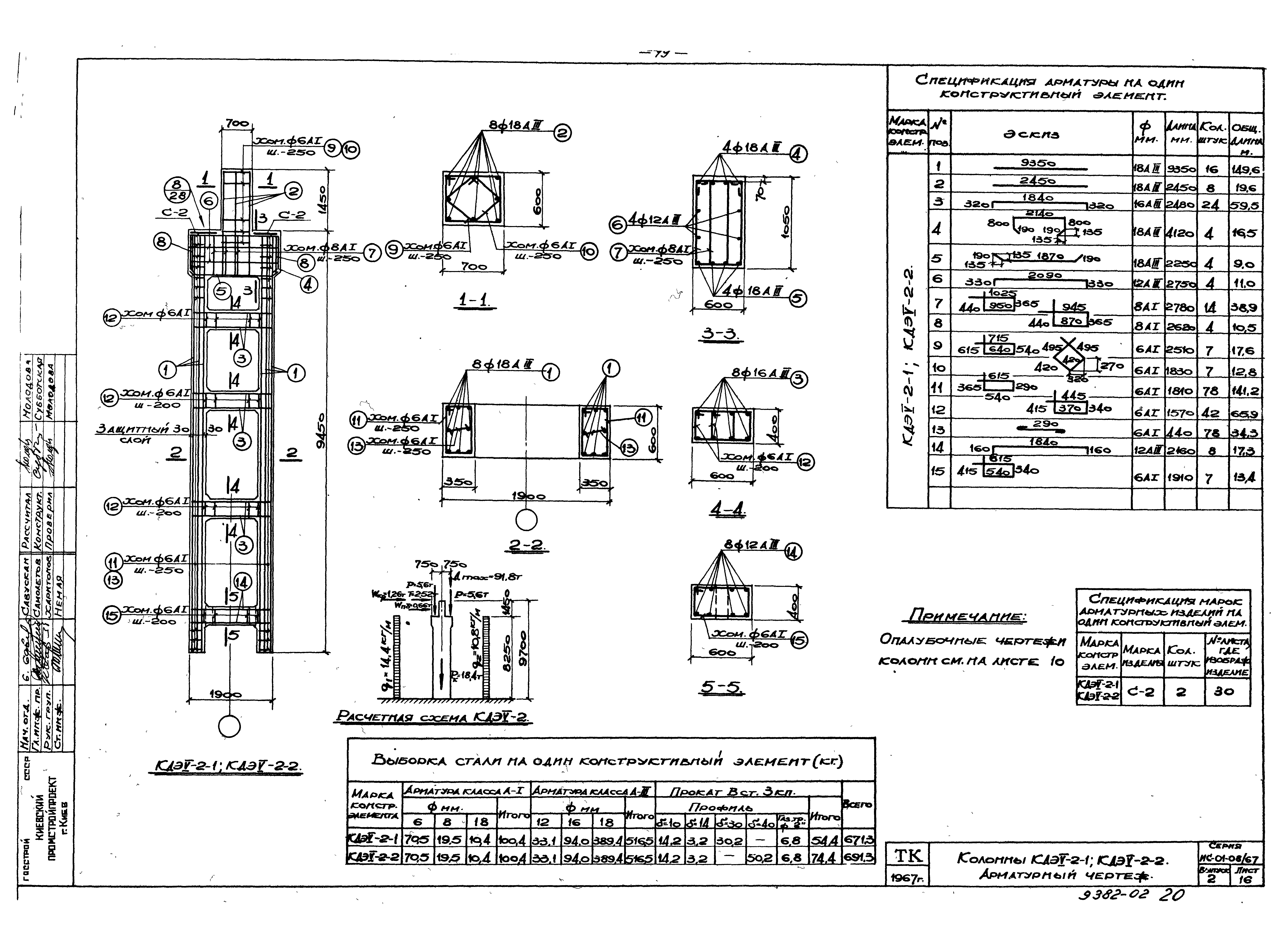
Скачать Серия ИС-01-08/67 Выпуск 2. Рабочие чертежи сборных железобетонных конструкций

Дата актуализации: 10.08.2017

Серия ИС-01-08/67

Выпуск 2. Рабочие чертежи сборных железобетонных конструкций

Обозначение: Серия ИС-01-08/67
Обозначение англ: Series ИС-01-08/67
Статус:не действует
Название рус.:Выпуск 2. Рабочие чертежи сборных железобетонных конструкций
Дата добавления в базу:01.09.2013
Дата актуализации:05.05.2017
Дата введения:01.11.1967
Дата окончания срока действия:01.08.1989
Разработан: НИИСК
Киевский Промстройпроект
НИИЖБ
Утверждён:15.07.1967 Госстрой СССР (Государственный комитет Совета Министров СССР по делам строительства) (USSR Gosstroy 112)
Издан: ЦИТП Госстроя СССР (CITP, Gosstroy (USSR) 1971 г. )
Расположен в:Техническая документация Строительство Справочные документы Типовые строительные конструкции, изделия и узлы Общероссийский строительный каталог Строительные конструкции, изделия и узлы зданий и сооружений для всех видов строительства Конструкции и изделия сооружений и оборудования зданий Надземные сооружения Крановые эстакады
Чем заменён:
Серия ИС-01-08/67Серия ИС-01-08/67Серия ИС-01-08/67Серия ИС-01-08/67Серия ИС-01-08/67Серия ИС-01-08/67Серия ИС-01-08/67Серия ИС-01-08/67Серия ИС-01-08/67Серия ИС-01-08/67Серия ИС-01-08/67Серия ИС-01-08/67Серия ИС-01-08/67Серия ИС-01-08/67Серия ИС-01-08/67Серия ИС-01-08/67Серия ИС-01-08/67Серия ИС-01-08/67Серия ИС-01-08/67Серия ИС-01-08/67Серия ИС-01-08/67Серия ИС-01-08/67Серия ИС-01-08/67Серия ИС-01-08/67Серия ИС-01-08/67Серия ИС-01-08/67Серия ИС-01-08/67Серия ИС-01-08/67Серия ИС-01-08/67Серия ИС-01-08/67Серия ИС-01-08/67Серия ИС-01-08/67Серия ИС-01-08/67Серия ИС-01-08/67Серия ИС-01-08/67Серия ИС-01-08/67Серия ИС-01-08/67

© 2013 Ёшкин Кот :-) Карта сайта