Информационная система
«Ёшкин Кот»

Скачать базу одним архивом
Скачать обновления
История создания базы
Карта сайта

Скачать Типовой проект 75-04/1.2 Часть 0. Раздел 0-1. Общая часть. Общая характеристика проекта

Дата актуализации: 10.08.2017

Типовой проект 75-04/1.2

Часть 0. Раздел 0-1. Общая часть. Общая характеристика проекта

Обозначение: Типовой проект 75-04/1.2
Обозначение англ: 75-04/1.2
Статус:не определен законодательством
Название рус.:Часть 0. Раздел 0-1. Общая часть. Общая характеристика проекта
Дата добавления в базу:01.09.2013
Дата актуализации:05.05.2017
Дата введения:02.08.1982
Оглавление:Общие данные
Состав проекта (комплектация)
Таблица вариантов: конструктивных решений, внутренней и наружной отделки и инженерного оборудования
Секция 2Б-2Б-2Б и 2Б-2Б-2Б. План первого этажа. Основное планировочное решение
Секция 3Б-2Б и 2Б-2Б-2Б. План первого этажа. Планировочное решение ос сквозным проходом
Секция 2Б-2Б-2Б и 2Б-2Б-2Б. План типового этажа
Элементы блокировки ЭБ-3, ЭБ-4, ЭБ-6, ЭБ-5
Таблицы подсчета площадей
Фрагменты фасадов в осях 11с - 1с; 1с - 11с. Основное планировочное решение. Схемы фасадов
Фрагменты фасадов в осях 11с - 1с; 1с - 11с. Планировочное решение со сквозным проходом. Схемы фасадов
Детали фасада. Ограждение лоджий - бетонное
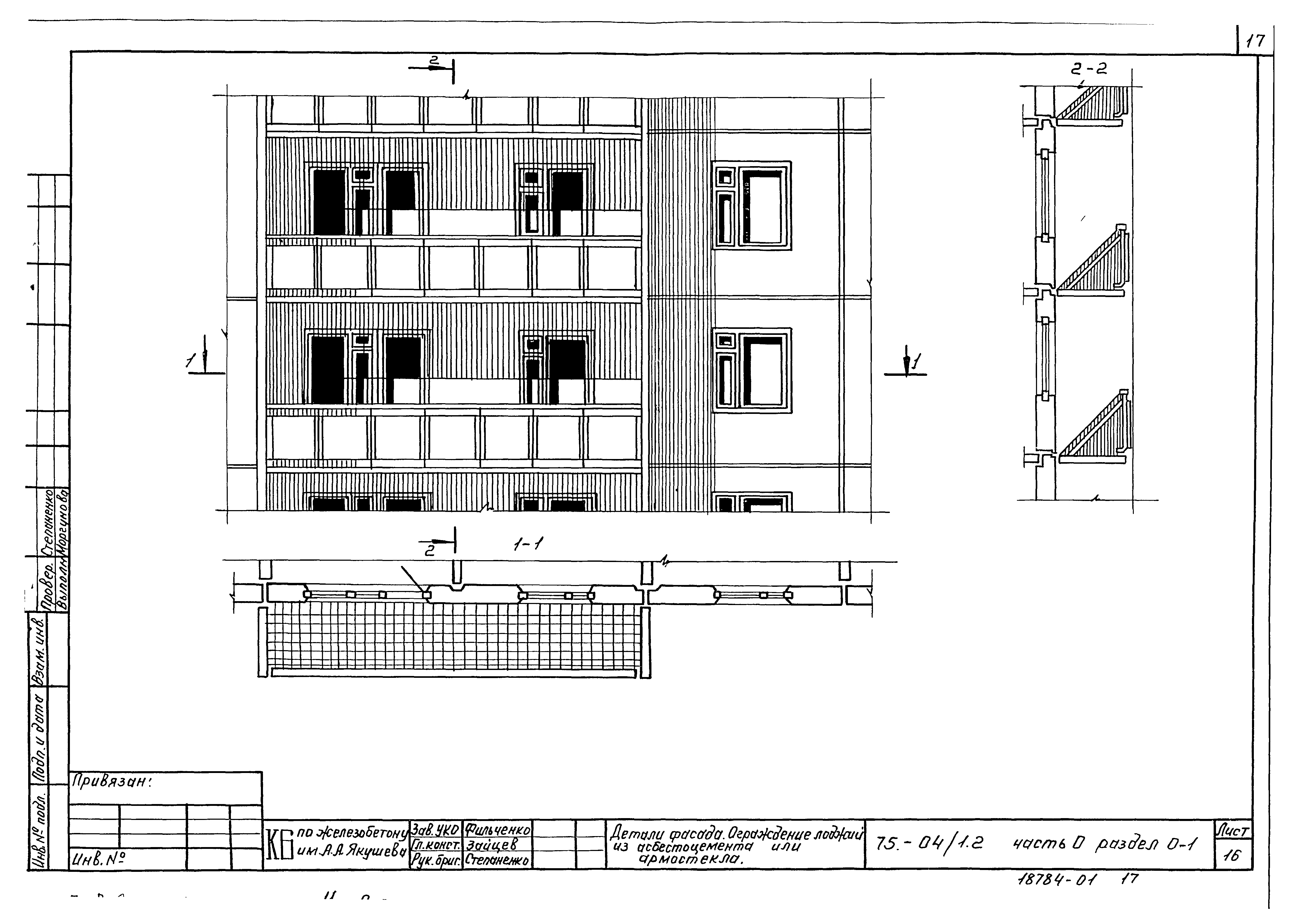
Детали фасада. Ограждение лоджий из асбестоцемента или армостекла
Фрагмент входа
Чертеж- заготовка планов, фасадов, показателей для основного планировочного решения
Чертеж- заготовка планов, фасадов, показателей для планировочного решения со сквозным проходом
Разработан: КБ по железобетону им. А.А. Якушева
Утверждён:10.03.1978 Госстрой РСФСР (Russian Federation Gosstroy 21)
Расположен в:Техническая документация Строительство Справочные документы Типовые строительные конструкции, изделия и узлы Общероссийский строительный каталог Жилые здания для строительства в городах и поселках городского типа Обычные условия Жилые дома панельные Серия 75
Типовой проект 75-04/1.2Типовой проект 75-04/1.2Типовой проект 75-04/1.2Типовой проект 75-04/1.2Типовой проект 75-04/1.2Типовой проект 75-04/1.2Типовой проект 75-04/1.2Типовой проект 75-04/1.2Типовой проект 75-04/1.2Типовой проект 75-04/1.2Типовой проект 75-04/1.2Типовой проект 75-04/1.2Типовой проект 75-04/1.2Типовой проект 75-04/1.2Типовой проект 75-04/1.2Типовой проект 75-04/1.2Типовой проект 75-04/1.2Типовой проект 75-04/1.2Типовой проект 75-04/1.2Типовой проект 75-04/1.2

© 2013 Ёшкин Кот :-) Карта сайта