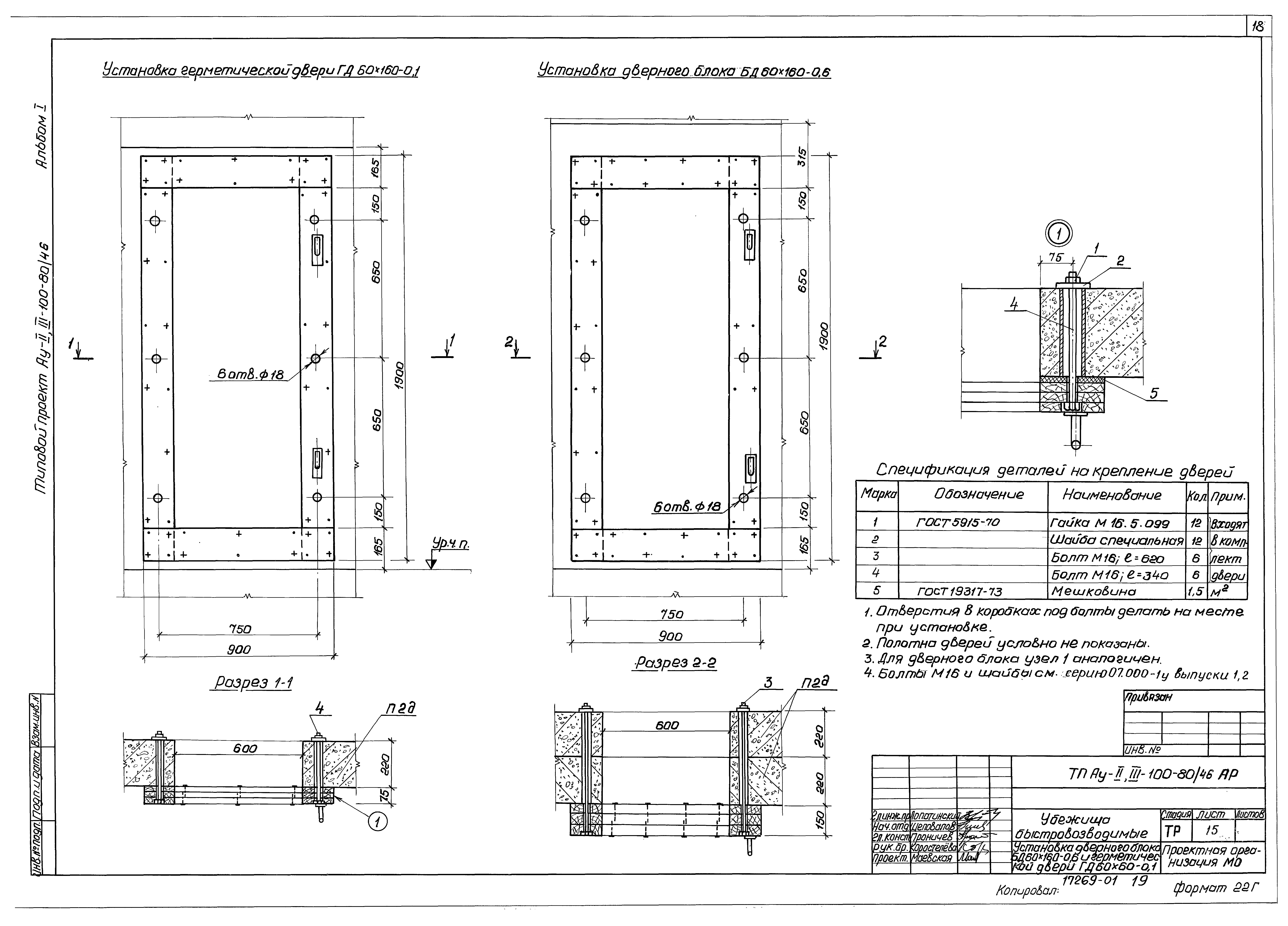
Скачать Типовой проект Ау-II,III-100-80/46 Альбом I. Общая пояснительная записка. Архитектурно-строительные решения. Отопление и вентиляция. Электросиловое оборудование и электроосвещение. Связь. Производство работДата актуализации: 10.08.2017 Типовой проект Ау-II,III-100-80/46
Альбом I. Общая пояснительная записка. Архитектурно-строительные решения. Отопление и вентиляция. Электросиловое оборудование и электроосвещение. Связь. Производство работОбозначение: | Типовой проект Ау-II,III-100-80/46 | Обозначение англ: | Ау-II,III-100-80/46 | Статус: | не определен законодательством | Название рус.: | Альбом I. Общая пояснительная записка. Архитектурно-строительные решения. Отопление и вентиляция. Электросиловое оборудование и электроосвещение. Связь. Производство работ | Дата добавления в базу: | 01.09.2013 | Дата актуализации: | 05.05.2017 | Дата введения: | 01.03.1980 | Разработан: | Проектная организация МО
| Утверждён: | 19.02.1980 Управление ГО СССР (1)
| Расположен в: |
|
                                                     
|