Информационная система
«Ёшкин Кот»

Скачать базу одним архивом
Скачать обновления
История создания базы
Карта сайта

Скачать Типовой проект 902-3-68.87 Альбом II. Технологические, санитарно-технические и электротехнические решения

Дата актуализации: 10.08.2017

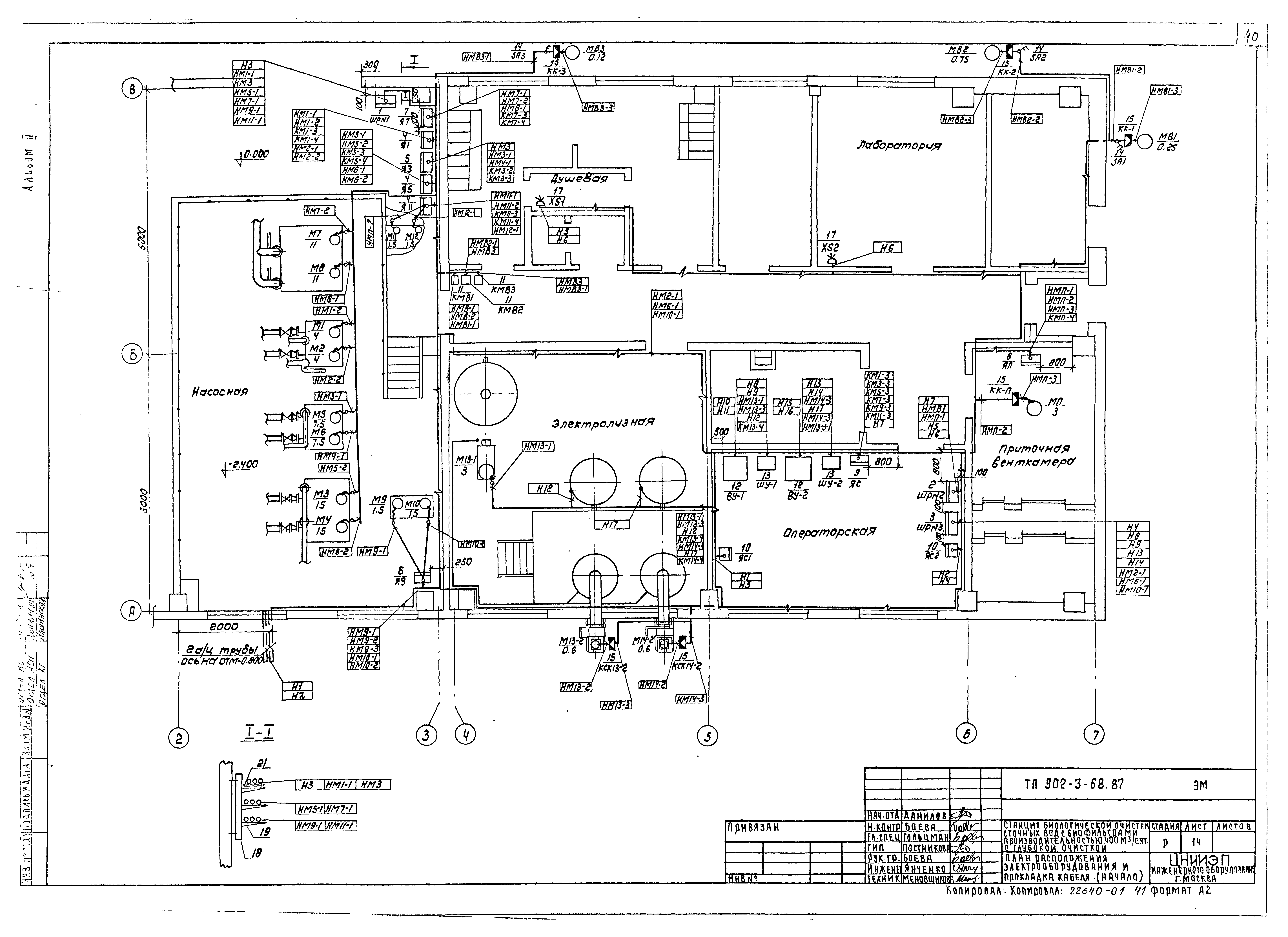
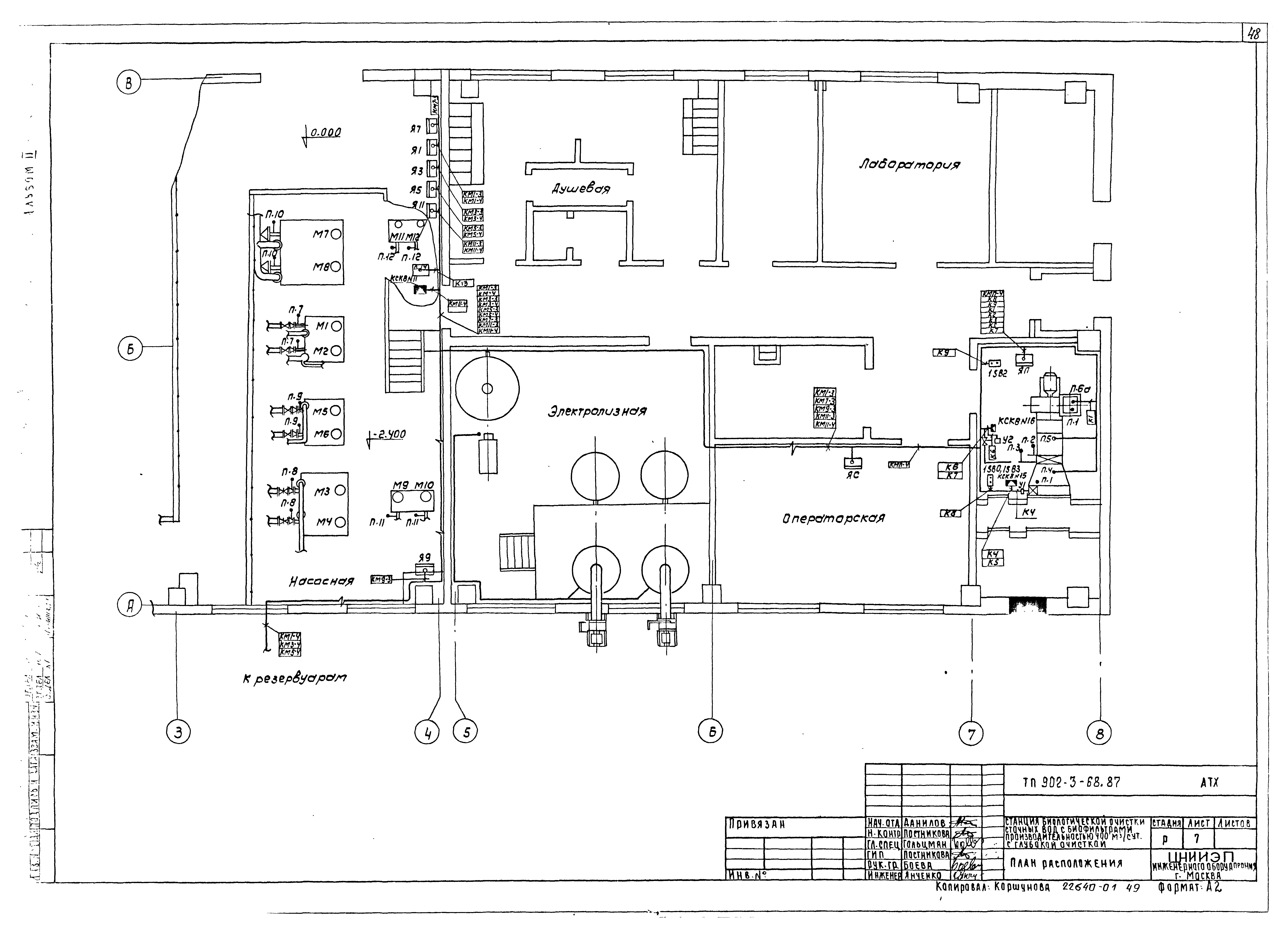
Типовой проект 902-3-68.87

Альбом II. Технологические, санитарно-технические и электротехнические решения

Обозначение: Типовой проект 902-3-68.87
Обозначение англ: 902-3-68.87
Статус:не определен законодательством
Название рус.:Альбом II. Технологические, санитарно-технические и электротехнические решения
Дата добавления в базу:01.09.2013
Дата актуализации:05.05.2017
Дата введения:23.04.1986
Разработан: ЦНИИЭП иженерного оборудования
Утверждён:23.04.1986 Госгражданстрой (Gosgrazhdanstroy 145)
Издан: ГУП ЦПП (CPP GUP 1999 г. )
Расположен в:Техническая документация Строительство Справочные документы Типовые строительные конструкции, изделия и узлы Общероссийский строительный каталог Промышленные предприятия, здания и сооружения Здания и сооружения санитарно-технические Канализация Сооружения биологической (биохимической) очистки Станции биологической очистки сточных вод
Типовой проект 902-3-68.87Типовой проект 902-3-68.87Типовой проект 902-3-68.87Типовой проект 902-3-68.87Типовой проект 902-3-68.87Типовой проект 902-3-68.87Типовой проект 902-3-68.87Типовой проект 902-3-68.87Типовой проект 902-3-68.87Типовой проект 902-3-68.87Типовой проект 902-3-68.87Типовой проект 902-3-68.87Типовой проект 902-3-68.87Типовой проект 902-3-68.87Типовой проект 902-3-68.87Типовой проект 902-3-68.87Типовой проект 902-3-68.87Типовой проект 902-3-68.87Типовой проект 902-3-68.87Типовой проект 902-3-68.87Типовой проект 902-3-68.87Типовой проект 902-3-68.87Типовой проект 902-3-68.87Типовой проект 902-3-68.87Типовой проект 902-3-68.87Типовой проект 902-3-68.87Типовой проект 902-3-68.87Типовой проект 902-3-68.87Типовой проект 902-3-68.87Типовой проект 902-3-68.87Типовой проект 902-3-68.87Типовой проект 902-3-68.87Типовой проект 902-3-68.87Типовой проект 902-3-68.87Типовой проект 902-3-68.87Типовой проект 902-3-68.87Типовой проект 902-3-68.87Типовой проект 902-3-68.87Типовой проект 902-3-68.87Типовой проект 902-3-68.87Типовой проект 902-3-68.87Типовой проект 902-3-68.87Типовой проект 902-3-68.87Типовой проект 902-3-68.87Типовой проект 902-3-68.87Типовой проект 902-3-68.87Типовой проект 902-3-68.87Типовой проект 902-3-68.87Типовой проект 902-3-68.87Типовой проект 902-3-68.87Типовой проект 902-3-68.87Типовой проект 902-3-68.87

© 2013 Ёшкин Кот :-) Карта сайта