Информационная система
«Ёшкин Кот»

Скачать базу одним архивом
Скачать обновления
История создания базы
Карта сайта

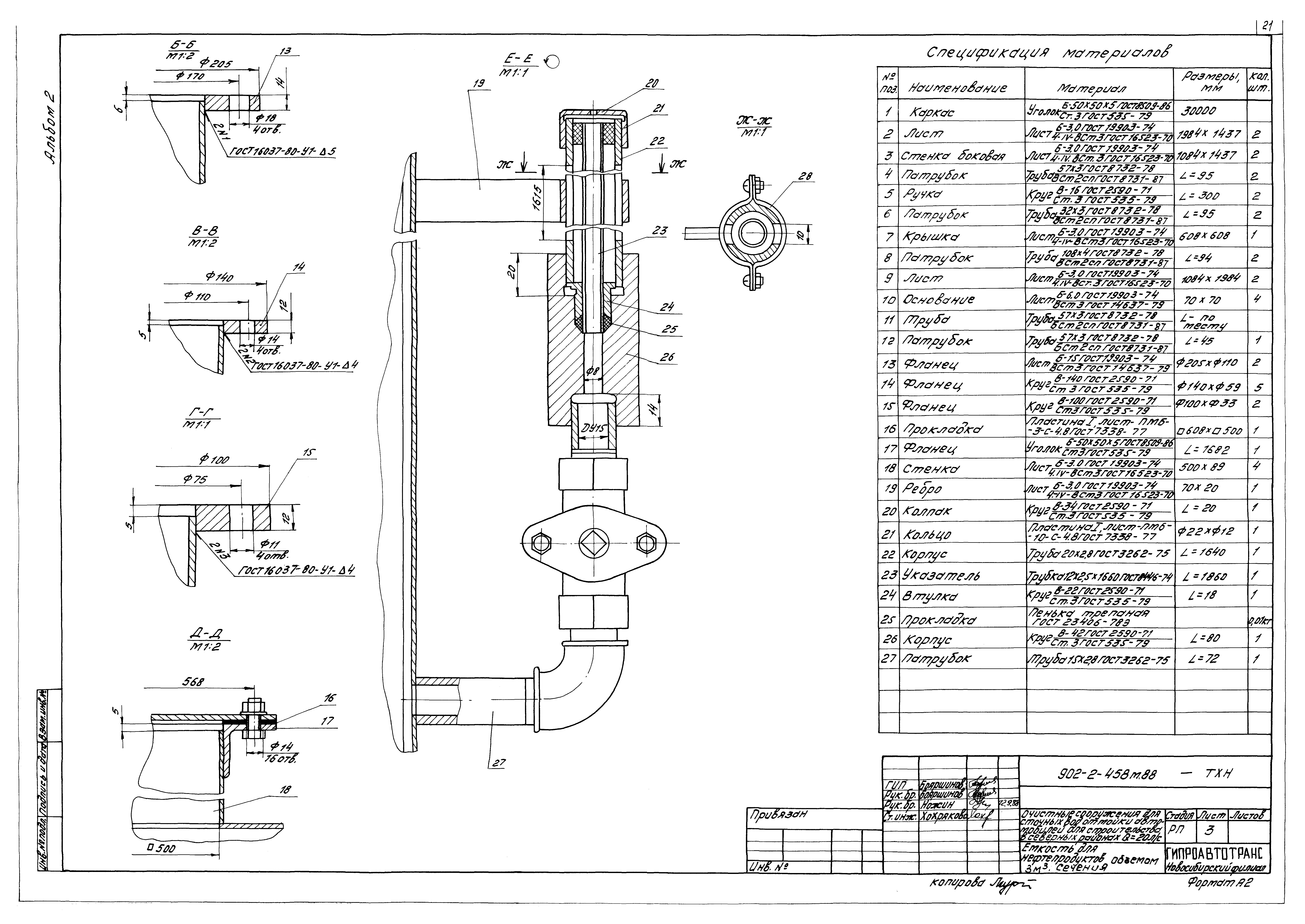
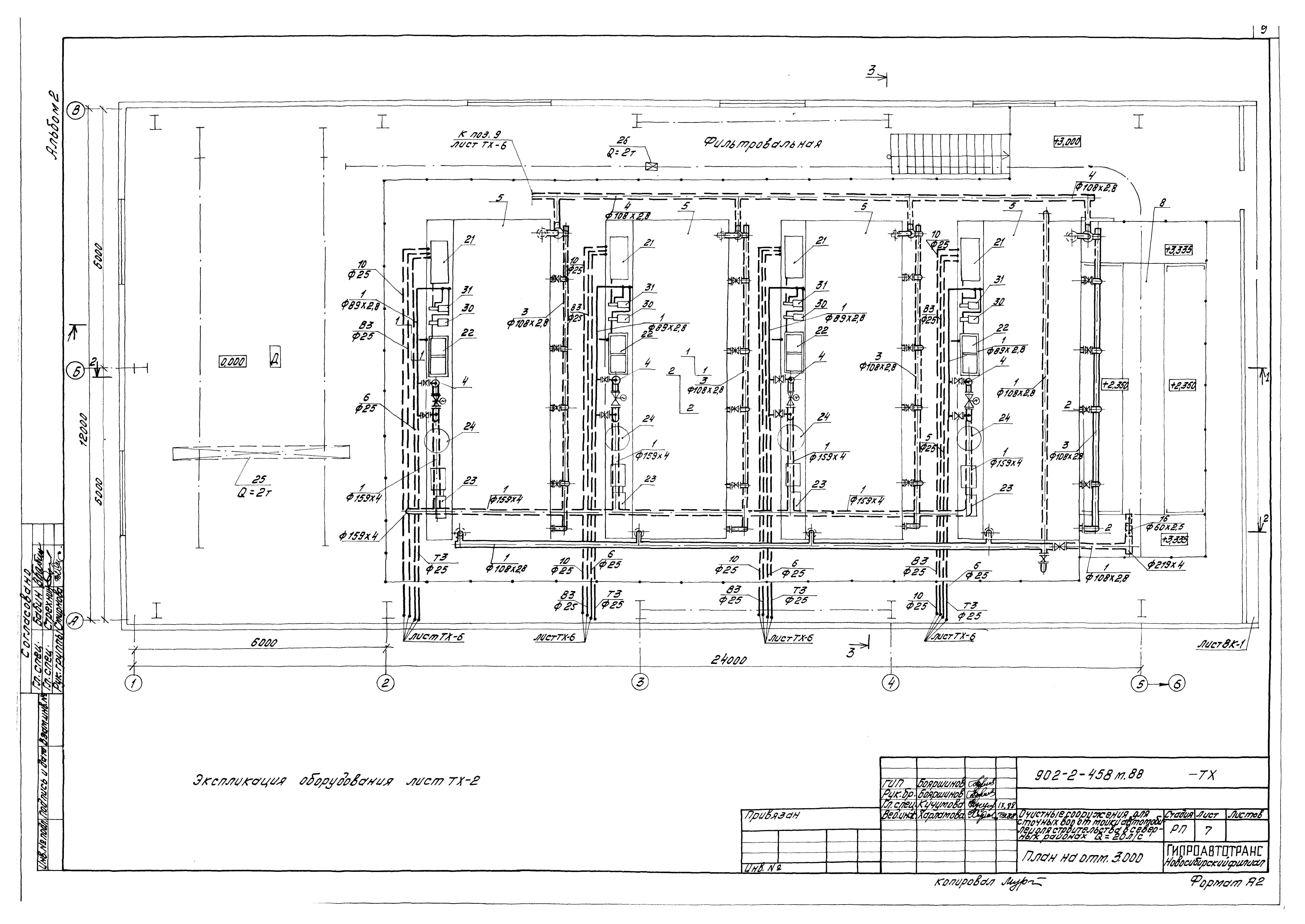
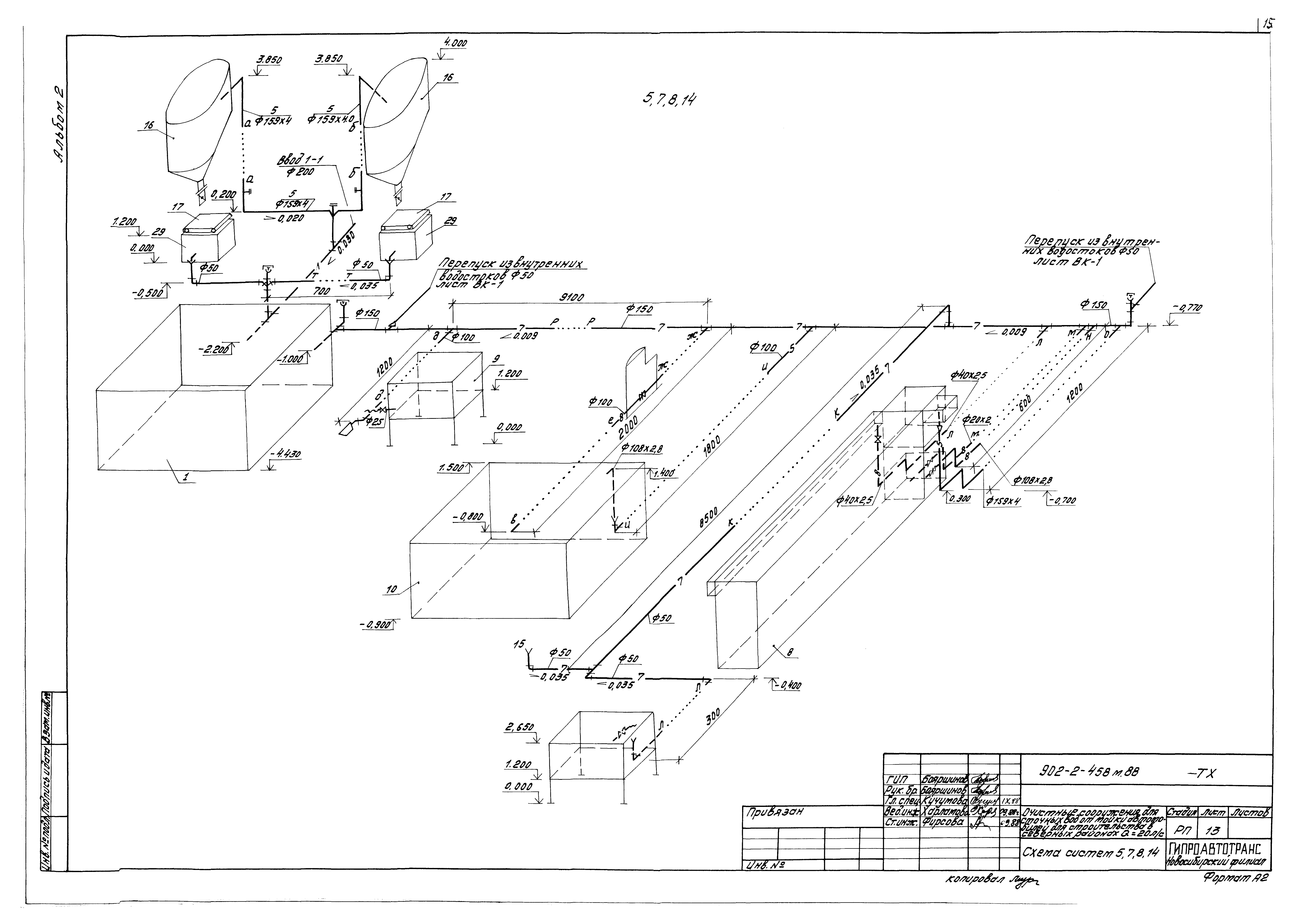
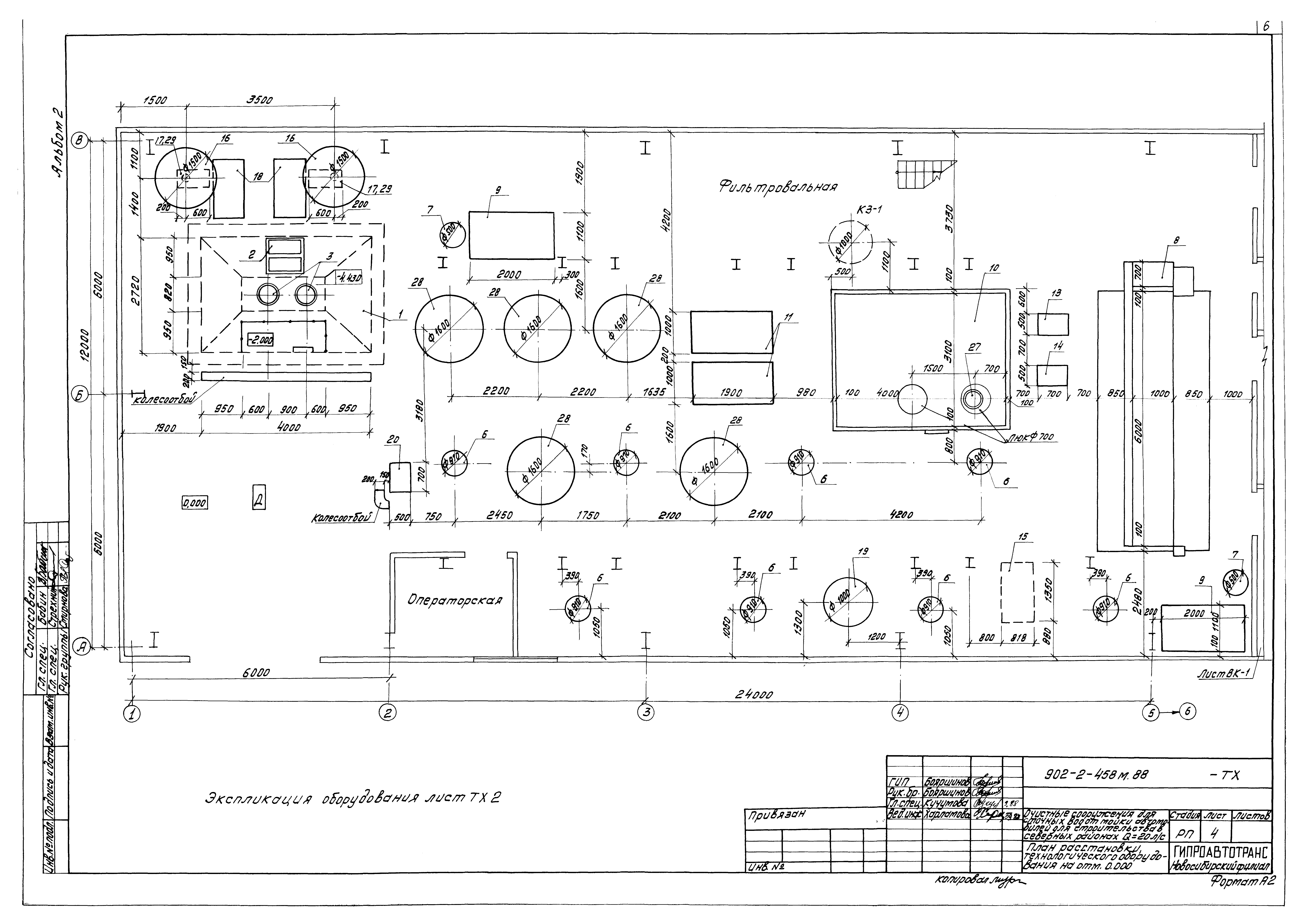
Скачать Типовой проект 902-2-458м.88 Альбом 2. Технология производства. Внутренний водопровод и канализация. Эскизные чертежи общих видов нетиповых конструкций

Дата актуализации: 10.08.2017

Типовой проект 902-2-458м.88

Альбом 2. Технология производства. Внутренний водопровод и канализация. Эскизные чертежи общих видов нетиповых конструкций

Обозначение: Типовой проект 902-2-458м.88
Обозначение англ: 902-2-458м.88
Статус:не определен законодательством
Название рус.:Альбом 2. Технология производства. Внутренний водопровод и канализация. Эскизные чертежи общих видов нетиповых конструкций
Дата добавления в базу:01.09.2013
Дата актуализации:05.05.2017
Дата введения:01.09.1988
Разработан: Новосибирский филиал Гипроавтотранса
Утверждён:01.09.1988 Минавтотранс РСФСР (Russian Federation Minavtotrans 9)
Расположен в:Техническая документация Строительство Справочные документы Типовые строительные конструкции, изделия и узлы Общероссийский строительный каталог Промышленные предприятия, здания и сооружения Здания и сооружения санитарно-технические Канализация Сооружения для очистки производственных сточных вод Сооружения для очистки сточных вод от мойки автомобилей
Типовой проект 902-2-458м.88Типовой проект 902-2-458м.88Типовой проект 902-2-458м.88Типовой проект 902-2-458м.88Типовой проект 902-2-458м.88Типовой проект 902-2-458м.88Типовой проект 902-2-458м.88Типовой проект 902-2-458м.88Типовой проект 902-2-458м.88Типовой проект 902-2-458м.88Типовой проект 902-2-458м.88Типовой проект 902-2-458м.88Типовой проект 902-2-458м.88Типовой проект 902-2-458м.88Типовой проект 902-2-458м.88Типовой проект 902-2-458м.88Типовой проект 902-2-458м.88Типовой проект 902-2-458м.88Типовой проект 902-2-458м.88Типовой проект 902-2-458м.88Типовой проект 902-2-458м.88Типовой проект 902-2-458м.88Типовой проект 902-2-458м.88Типовой проект 902-2-458м.88Типовой проект 902-2-458м.88Типовой проект 902-2-458м.88Типовой проект 902-2-458м.88Типовой проект 902-2-458м.88Типовой проект 902-2-458м.88Типовой проект 902-2-458м.88Типовой проект 902-2-458м.88Типовой проект 902-2-458м.88

© 2013 Ёшкин Кот :-) Карта сайта