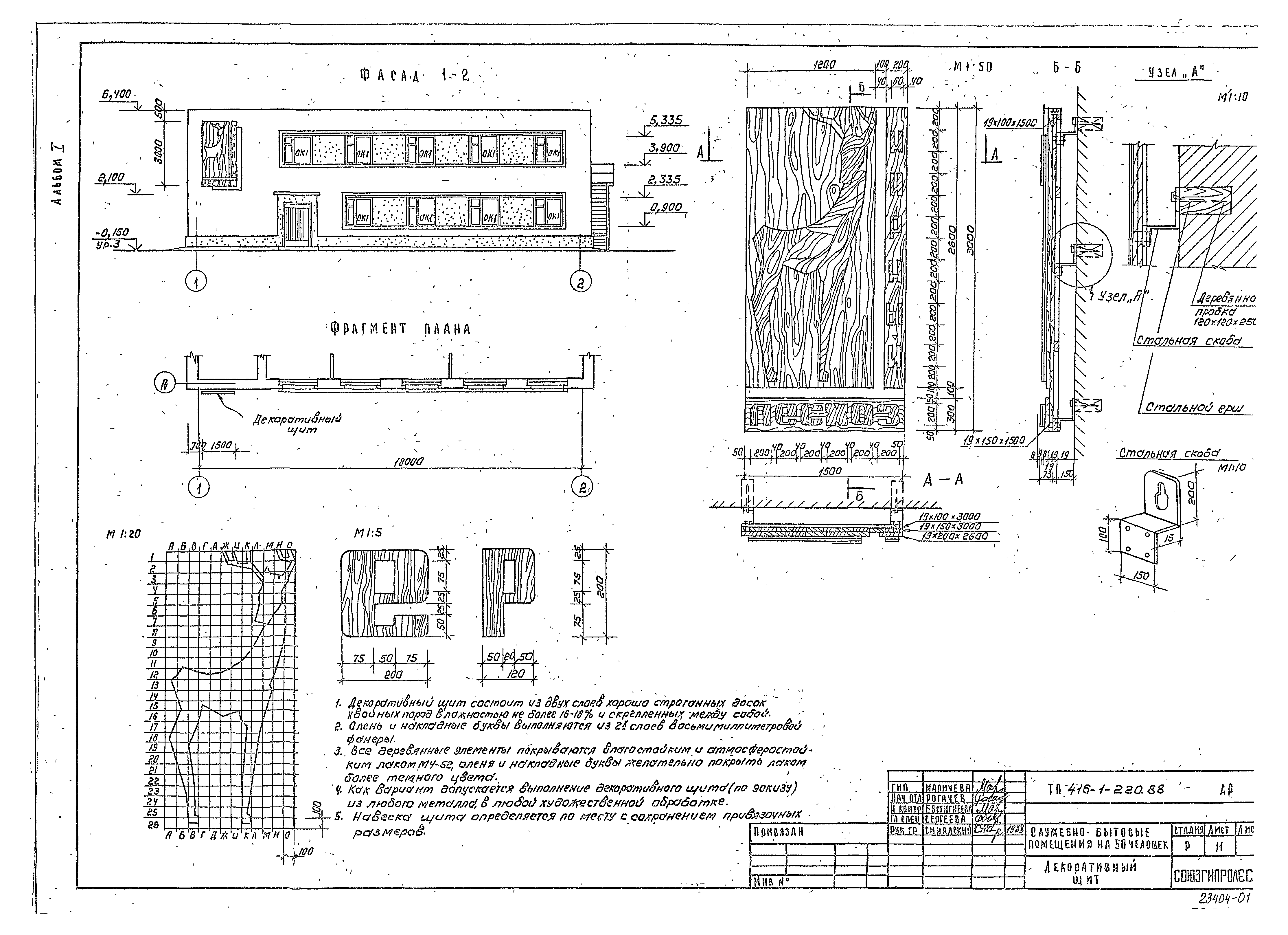
Скачать Типовой проект 416-1-220.88 Альбом 1. Пояснительная записка. Архитектурные решения. Конструкции железобетонные. Внутренние водопровод и канализация. Отопление, вентиляция и кондиционирование воздуха. Силовое электрооборудование. Связь и сигнализация. Автоматизация отопления и вентиляцииДата актуализации: 10.08.2017 Типовой проект 416-1-220.88
Альбом 1. Пояснительная записка. Архитектурные решения. Конструкции железобетонные. Внутренние водопровод и канализация. Отопление, вентиляция и кондиционирование воздуха. Силовое электрооборудование. Связь и сигнализация. Автоматизация отопления и вентиляцииОбозначение: | Типовой проект 416-1-220.88 | Обозначение англ: | 416-1-220.88 | Статус: | не определен законодательством | Название рус.: | Альбом 1. Пояснительная записка. Архитектурные решения. Конструкции железобетонные. Внутренние водопровод и канализация. Отопление, вентиляция и кондиционирование воздуха. Силовое электрооборудование. Связь и сигнализация. Автоматизация отопления и вентиляции | Дата добавления в базу: | 01.09.2013 | Дата актуализации: | 05.05.2017 | Дата введения: | 01.09.1988 | Разработан: | Союзгипролесхоз
| Утверждён: | 29.08.1988 Союзгипролесхоз (24)
| Расположен в: |
|
                                                                
|