Информационная система
«Ёшкин Кот»

Скачать базу одним архивом
Скачать обновления
История создания базы
Карта сайта

Скачать Типовой проект 144-000-960.93 Альбом I. Архитектурно-строительные решения. Отопление и вентиляция. Водопровод и канализация. Электрооборудование. Связь и сигнализация. Газоснабжение

Дата актуализации: 10.08.2017

Типовой проект 144-000-960.93

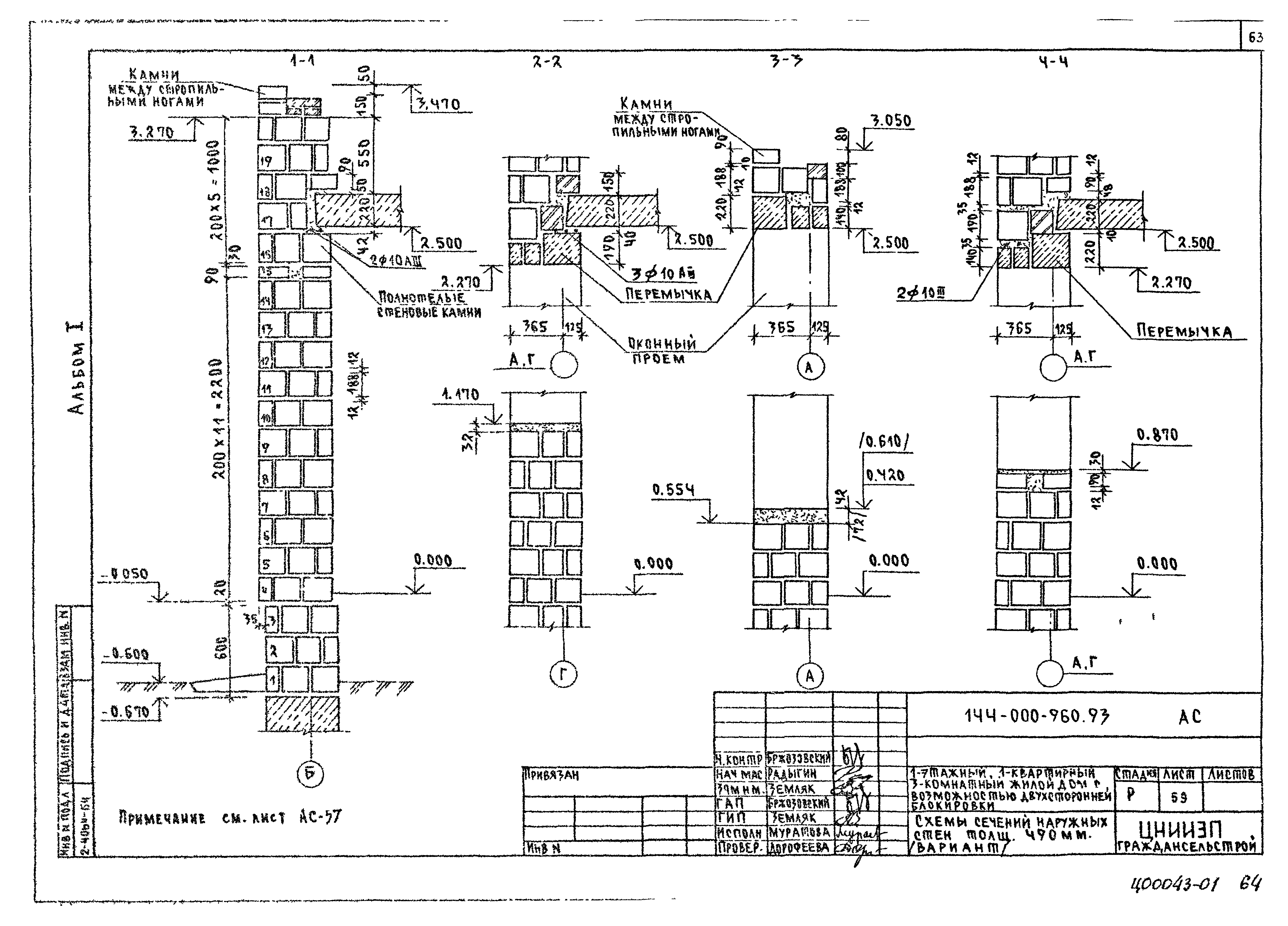
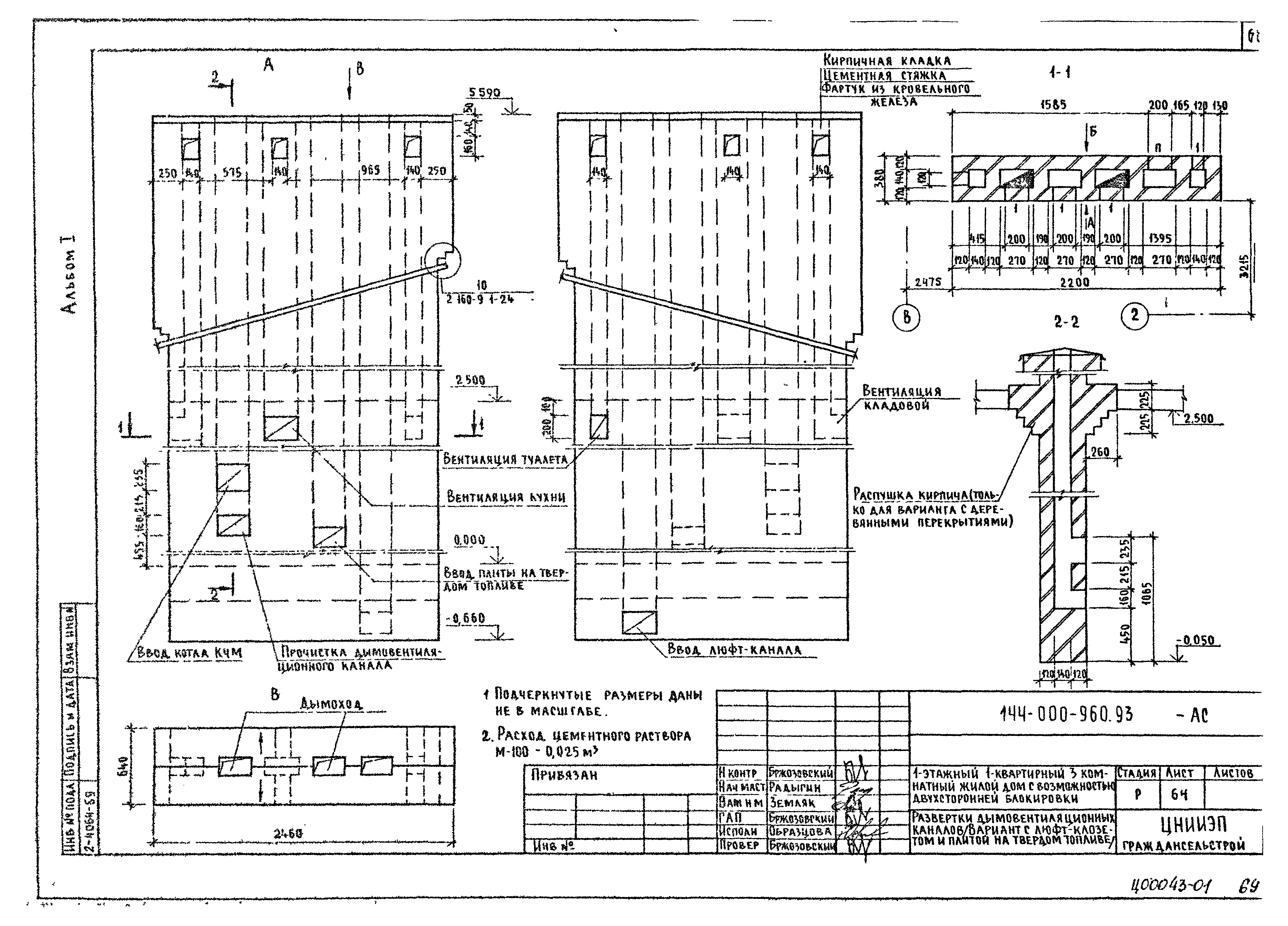
Альбом I. Архитектурно-строительные решения. Отопление и вентиляция. Водопровод и канализация. Электрооборудование. Связь и сигнализация. Газоснабжение

Обозначение: Типовой проект 144-000-960.93
Обозначение англ: 144-000-960.93
Статус:не определен законодательством
Название рус.:Альбом I. Архитектурно-строительные решения. Отопление и вентиляция. Водопровод и канализация. Электрооборудование. Связь и сигнализация. Газоснабжение
Дата добавления в базу:01.09.2013
Дата актуализации:05.05.2017
Дата введения:19.05.1993
Разработан: ЦНИИЭП граждансельстрой
Утверждён:24.04.1991 Госкомархитектура (69)
Расположен в:Техническая документация Строительство Справочные документы Типовые строительные конструкции, изделия и узлы Общероссийский строительный каталог Жилые здания для строительства в сельской местности Жилые дома со стенами из местных материалов Серия 000
Типовой проект 144-000-960.93Типовой проект 144-000-960.93Типовой проект 144-000-960.93Типовой проект 144-000-960.93Типовой проект 144-000-960.93Типовой проект 144-000-960.93Типовой проект 144-000-960.93Типовой проект 144-000-960.93Типовой проект 144-000-960.93Типовой проект 144-000-960.93Типовой проект 144-000-960.93Типовой проект 144-000-960.93Типовой проект 144-000-960.93Типовой проект 144-000-960.93Типовой проект 144-000-960.93Типовой проект 144-000-960.93Типовой проект 144-000-960.93Типовой проект 144-000-960.93Типовой проект 144-000-960.93Типовой проект 144-000-960.93Типовой проект 144-000-960.93Типовой проект 144-000-960.93Типовой проект 144-000-960.93Типовой проект 144-000-960.93Типовой проект 144-000-960.93Типовой проект 144-000-960.93Типовой проект 144-000-960.93Типовой проект 144-000-960.93Типовой проект 144-000-960.93Типовой проект 144-000-960.93Типовой проект 144-000-960.93Типовой проект 144-000-960.93Типовой проект 144-000-960.93Типовой проект 144-000-960.93Типовой проект 144-000-960.93Типовой проект 144-000-960.93Типовой проект 144-000-960.93Типовой проект 144-000-960.93Типовой проект 144-000-960.93Типовой проект 144-000-960.93Типовой проект 144-000-960.93Типовой проект 144-000-960.93Типовой проект 144-000-960.93Типовой проект 144-000-960.93Типовой проект 144-000-960.93Типовой проект 144-000-960.93Типовой проект 144-000-960.93Типовой проект 144-000-960.93Типовой проект 144-000-960.93Типовой проект 144-000-960.93Типовой проект 144-000-960.93Типовой проект 144-000-960.93Типовой проект 144-000-960.93Типовой проект 144-000-960.93Типовой проект 144-000-960.93Типовой проект 144-000-960.93Типовой проект 144-000-960.93Типовой проект 144-000-960.93Типовой проект 144-000-960.93Типовой проект 144-000-960.93Типовой проект 144-000-960.93Типовой проект 144-000-960.93Типовой проект 144-000-960.93Типовой проект 144-000-960.93Типовой проект 144-000-960.93Типовой проект 144-000-960.93Типовой проект 144-000-960.93Типовой проект 144-000-960.93Типовой проект 144-000-960.93Типовой проект 144-000-960.93Типовой проект 144-000-960.93Типовой проект 144-000-960.93Типовой проект 144-000-960.93Типовой проект 144-000-960.93Типовой проект 144-000-960.93Типовой проект 144-000-960.93Типовой проект 144-000-960.93Типовой проект 144-000-960.93Типовой проект 144-000-960.93Типовой проект 144-000-960.93Типовой проект 144-000-960.93Типовой проект 144-000-960.93Типовой проект 144-000-960.93Типовой проект 144-000-960.93Типовой проект 144-000-960.93Типовой проект 144-000-960.93Типовой проект 144-000-960.93Типовой проект 144-000-960.93Типовой проект 144-000-960.93Типовой проект 144-000-960.93Типовой проект 144-000-960.93Типовой проект 144-000-960.93Типовой проект 144-000-960.93Типовой проект 144-000-960.93Типовой проект 144-000-960.93Типовой проект 144-000-960.93Типовой проект 144-000-960.93Типовой проект 144-000-960.93Типовой проект 144-000-960.93Типовой проект 144-000-960.93Типовой проект 144-000-960.93Типовой проект 144-000-960.93Типовой проект 144-000-960.93

© 2013 Ёшкин Кот :-) Карта сайта