Информационная система
«Ёшкин Кот»

Скачать базу одним архивом
Скачать обновления
История создания базы
Карта сайта

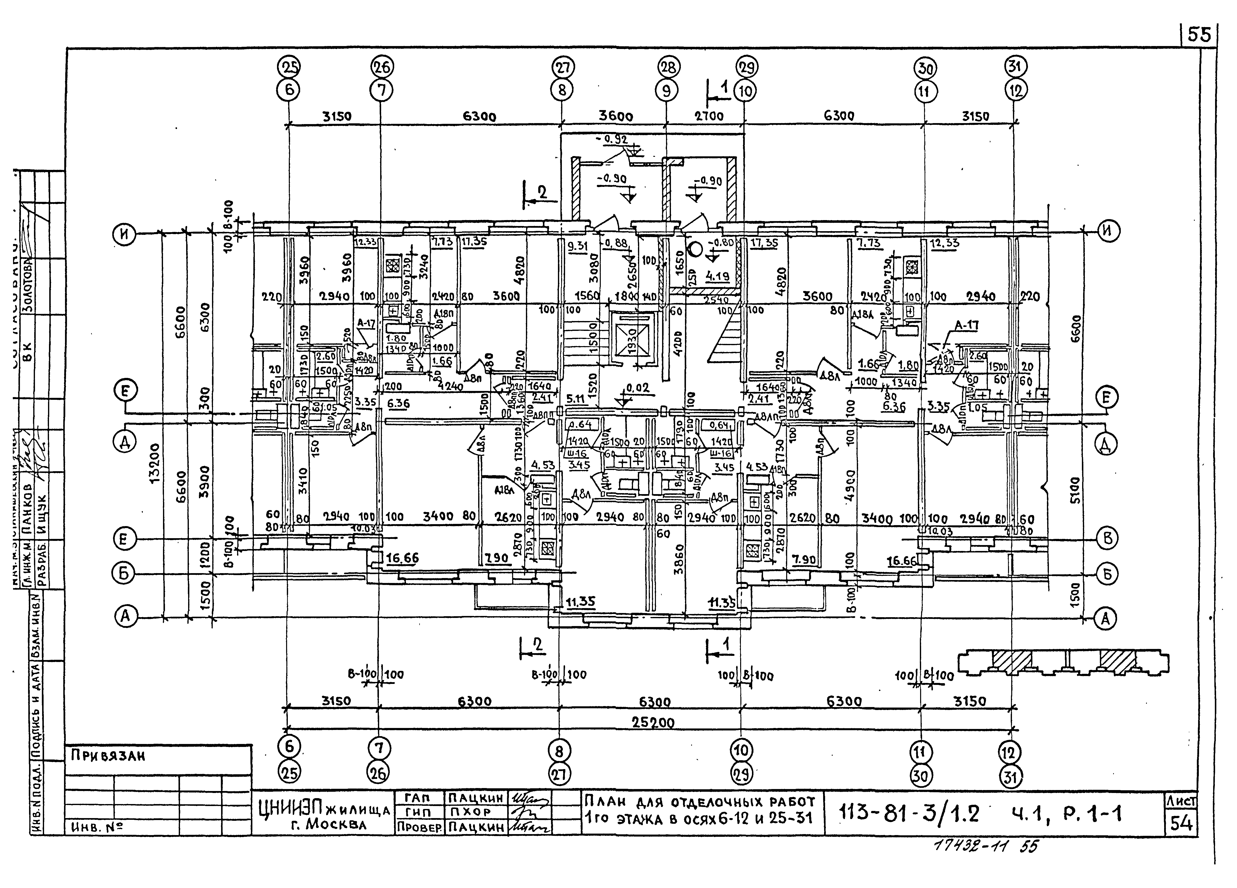
Скачать Типовой проект 113-81-3/1.2 Часть 1. Раздел 1-1. Архитектурно-строительные чертежи выше отм. 0.000

Дата актуализации: 10.08.2017

Типовой проект 113-81-3/1.2

Часть 1. Раздел 1-1. Архитектурно-строительные чертежи выше отм. 0.000

Обозначение: Типовой проект 113-81-3/1.2
Обозначение англ: 113-81-3/1.2
Статус:не определен законодательством
Название рус.:Часть 1. Раздел 1-1. Архитектурно-строительные чертежи выше отм. 0.000
Дата добавления в базу:01.09.2013
Дата актуализации:05.05.2017
Дата введения:30.03.1981
Разработан: ЦНИИЭП жилища
Утверждён:31.12.1968 Госкомитет по гражданскому строительству и архитектуре при Госстрое СССР (National Committee on Nonindustrial Construction and Architecture, USSR Gosstroy 245)
Расположен в:Техническая документация Строительство Справочные документы Типовые строительные конструкции, изделия и узлы Общероссийский строительный каталог Жилые здания для строительства в городах и поселках городского типа Обычные условия Жилые дома блочные Серия 81
Типовой проект 113-81-3/1.2Типовой проект 113-81-3/1.2Типовой проект 113-81-3/1.2Типовой проект 113-81-3/1.2Типовой проект 113-81-3/1.2Типовой проект 113-81-3/1.2Типовой проект 113-81-3/1.2Типовой проект 113-81-3/1.2Типовой проект 113-81-3/1.2Типовой проект 113-81-3/1.2Типовой проект 113-81-3/1.2Типовой проект 113-81-3/1.2Типовой проект 113-81-3/1.2Типовой проект 113-81-3/1.2Типовой проект 113-81-3/1.2Типовой проект 113-81-3/1.2Типовой проект 113-81-3/1.2Типовой проект 113-81-3/1.2Типовой проект 113-81-3/1.2Типовой проект 113-81-3/1.2Типовой проект 113-81-3/1.2Типовой проект 113-81-3/1.2Типовой проект 113-81-3/1.2Типовой проект 113-81-3/1.2Типовой проект 113-81-3/1.2Типовой проект 113-81-3/1.2Типовой проект 113-81-3/1.2Типовой проект 113-81-3/1.2Типовой проект 113-81-3/1.2Типовой проект 113-81-3/1.2Типовой проект 113-81-3/1.2Типовой проект 113-81-3/1.2Типовой проект 113-81-3/1.2Типовой проект 113-81-3/1.2Типовой проект 113-81-3/1.2Типовой проект 113-81-3/1.2Типовой проект 113-81-3/1.2Типовой проект 113-81-3/1.2Типовой проект 113-81-3/1.2Типовой проект 113-81-3/1.2Типовой проект 113-81-3/1.2Типовой проект 113-81-3/1.2Типовой проект 113-81-3/1.2Типовой проект 113-81-3/1.2Типовой проект 113-81-3/1.2Типовой проект 113-81-3/1.2Типовой проект 113-81-3/1.2Типовой проект 113-81-3/1.2Типовой проект 113-81-3/1.2Типовой проект 113-81-3/1.2Типовой проект 113-81-3/1.2Типовой проект 113-81-3/1.2Типовой проект 113-81-3/1.2Типовой проект 113-81-3/1.2Типовой проект 113-81-3/1.2Типовой проект 113-81-3/1.2Типовой проект 113-81-3/1.2Типовой проект 113-81-3/1.2Типовой проект 113-81-3/1.2Типовой проект 113-81-3/1.2Типовой проект 113-81-3/1.2Типовой проект 113-81-3/1.2Типовой проект 113-81-3/1.2Типовой проект 113-81-3/1.2Типовой проект 113-81-3/1.2Типовой проект 113-81-3/1.2Типовой проект 113-81-3/1.2Типовой проект 113-81-3/1.2Типовой проект 113-81-3/1.2Типовой проект 113-81-3/1.2Типовой проект 113-81-3/1.2Типовой проект 113-81-3/1.2Типовой проект 113-81-3/1.2Типовой проект 113-81-3/1.2Типовой проект 113-81-3/1.2Типовой проект 113-81-3/1.2Типовой проект 113-81-3/1.2Типовой проект 113-81-3/1.2Типовой проект 113-81-3/1.2Типовой проект 113-81-3/1.2Типовой проект 113-81-3/1.2Типовой проект 113-81-3/1.2Типовой проект 113-81-3/1.2Типовой проект 113-81-3/1.2

© 2013 Ёшкин Кот :-) Карта сайта