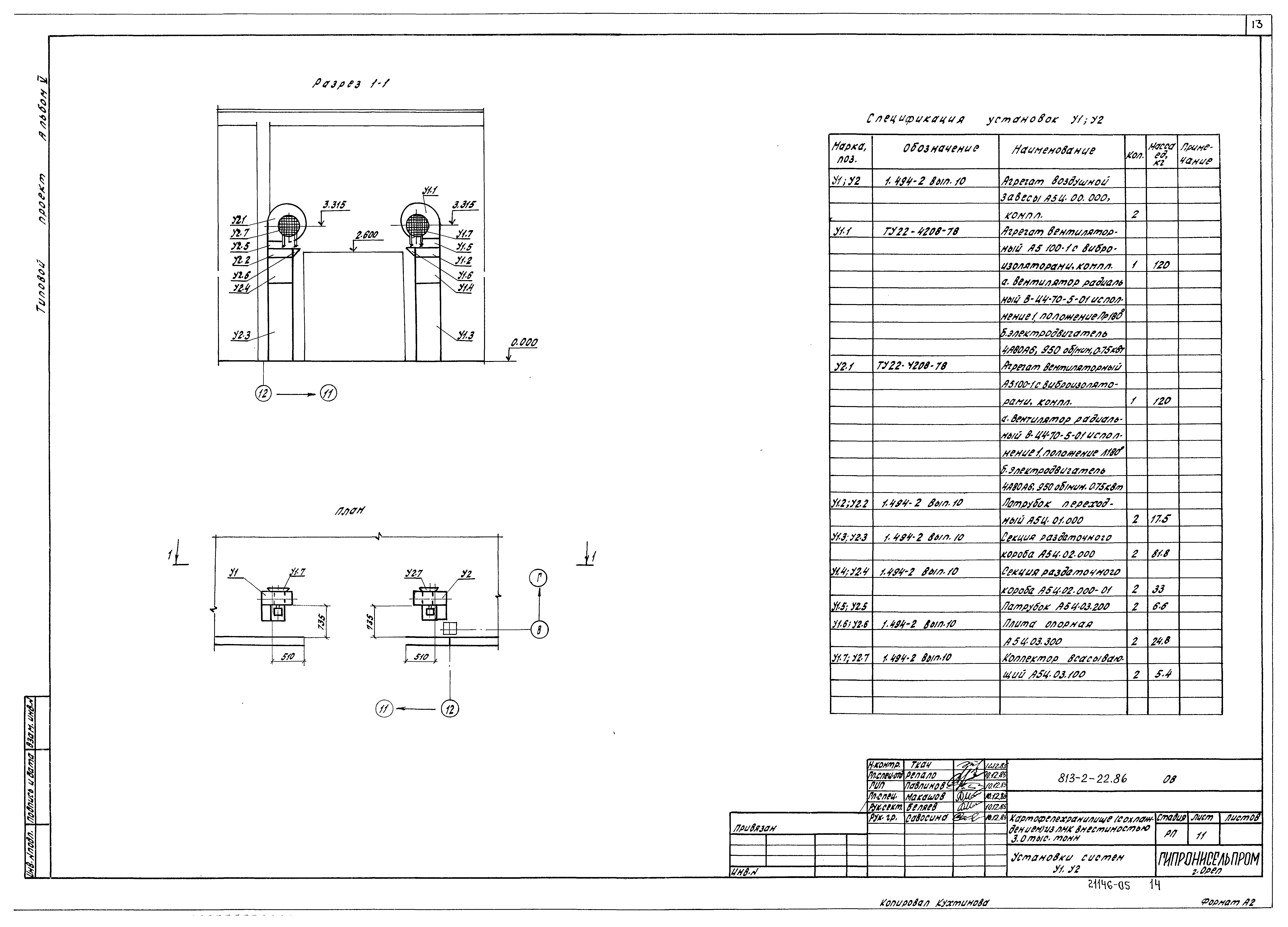
Скачать Типовой проект 813-2-22.86 Альбом V. Отопление, вентиляция и кондиционирование воздуха, внутренние водопровод и канализацияДата актуализации: 10.08.2017 Типовой проект 813-2-22.86
Альбом V. Отопление, вентиляция и кондиционирование воздуха, внутренние водопровод и канализацияОбозначение: | Типовой проект 813-2-22.86 | Обозначение англ: | 813-2-22.86 | Статус: | не определен законодательством | Название рус.: | Альбом V. Отопление, вентиляция и кондиционирование воздуха, внутренние водопровод и канализация | Дата добавления в базу: | 01.09.2013 | Дата актуализации: | 05.05.2017 | Дата введения: | 14.11.1985 | Разработан: | Гипронисельпром Минплодоовощхоза СССР ЦНИИпроектстальконструкция Проектный институт №2
| Утверждён: | 27.09.1985 Минплодоовощхоз СССР (2)
| Расположен в: |
|
                                  
|