Информационная система
«Ёшкин Кот»

Скачать базу одним архивом
Скачать обновления
История создания базы
Карта сайта

Скачать Типовой проект Пу-1-150-369.89 Альбом 1. Пояснительная записка. Архитектурно-строительные решения. Отопление и вентиляция. Электроосвещение и силовое электрооборудование

Дата актуализации: 10.08.2017

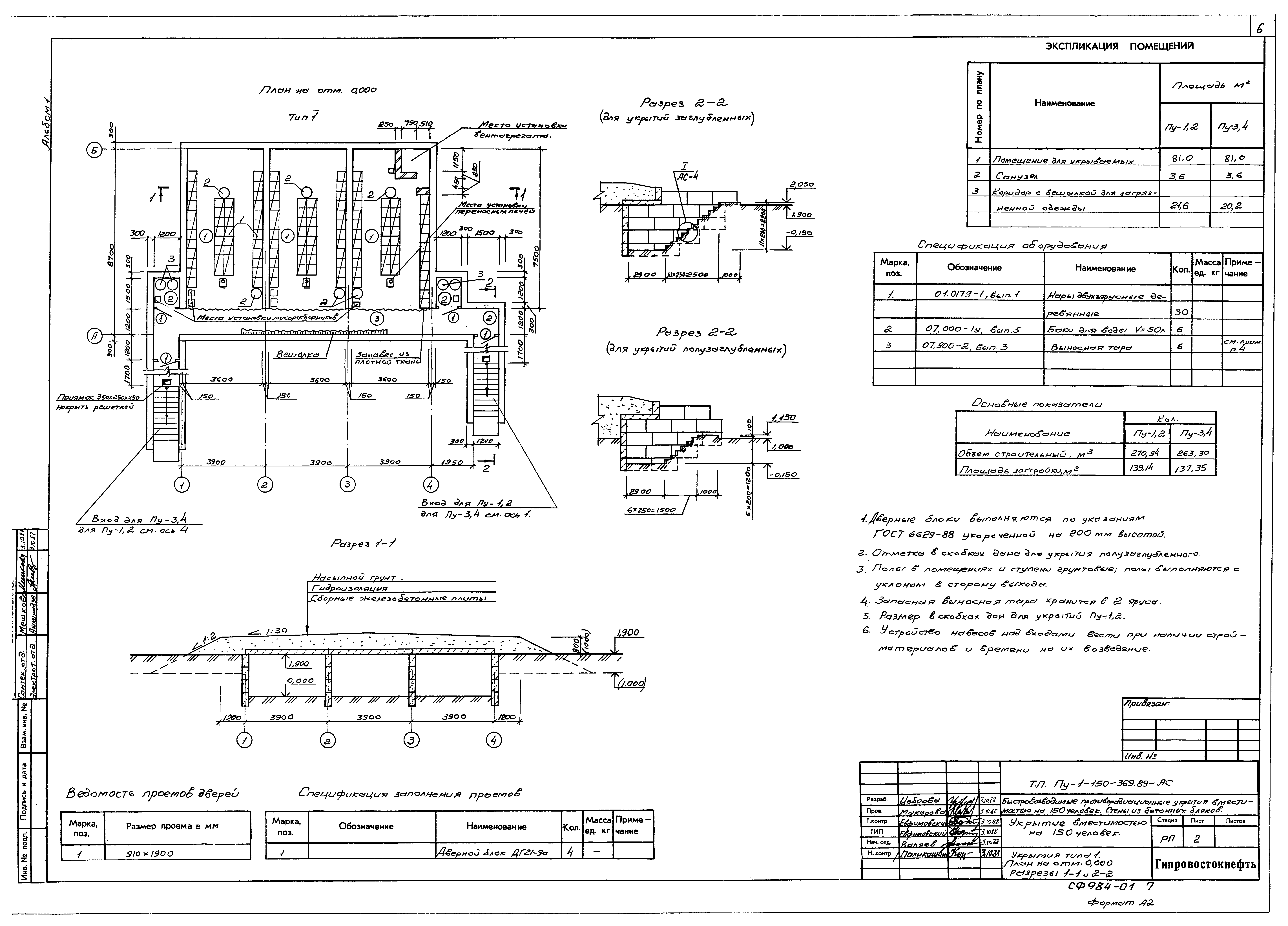
Типовой проект Пу-1-150-369.89

Альбом 1. Пояснительная записка. Архитектурно-строительные решения. Отопление и вентиляция. Электроосвещение и силовое электрооборудование

Обозначение: Типовой проект Пу-1-150-369.89
Обозначение англ: Пу-1-150-369.89
Статус:не определен законодательством
Название рус.:Альбом 1. Пояснительная записка. Архитектурно-строительные решения. Отопление и вентиляция. Электроосвещение и силовое электрооборудование
Дата добавления в базу:01.09.2013
Дата актуализации:05.05.2017
Дата введения:18.10.1989
Разработан: Гипровостокнефть
Утверждён:18.10.1989 Миннефтегазпром СССР (USSR Minneftegazprom 166"Э")
Расположен в:Техническая документация Строительство Справочные документы Типовые строительные конструкции, изделия и узлы Общероссийский строительный каталог Защитные сооружения гражданской обороны Типовые проекты защитных сооружений гражданской обороны специального назначения Быстровозводимые противорадиационные укрытия и простейшие укрытия
Типовой проект Пу-1-150-369.89Типовой проект Пу-1-150-369.89Типовой проект Пу-1-150-369.89Типовой проект Пу-1-150-369.89Типовой проект Пу-1-150-369.89Типовой проект Пу-1-150-369.89Типовой проект Пу-1-150-369.89Типовой проект Пу-1-150-369.89Типовой проект Пу-1-150-369.89Типовой проект Пу-1-150-369.89Типовой проект Пу-1-150-369.89Типовой проект Пу-1-150-369.89Типовой проект Пу-1-150-369.89Типовой проект Пу-1-150-369.89Типовой проект Пу-1-150-369.89Типовой проект Пу-1-150-369.89Типовой проект Пу-1-150-369.89

© 2013 Ёшкин Кот :-) Карта сайта