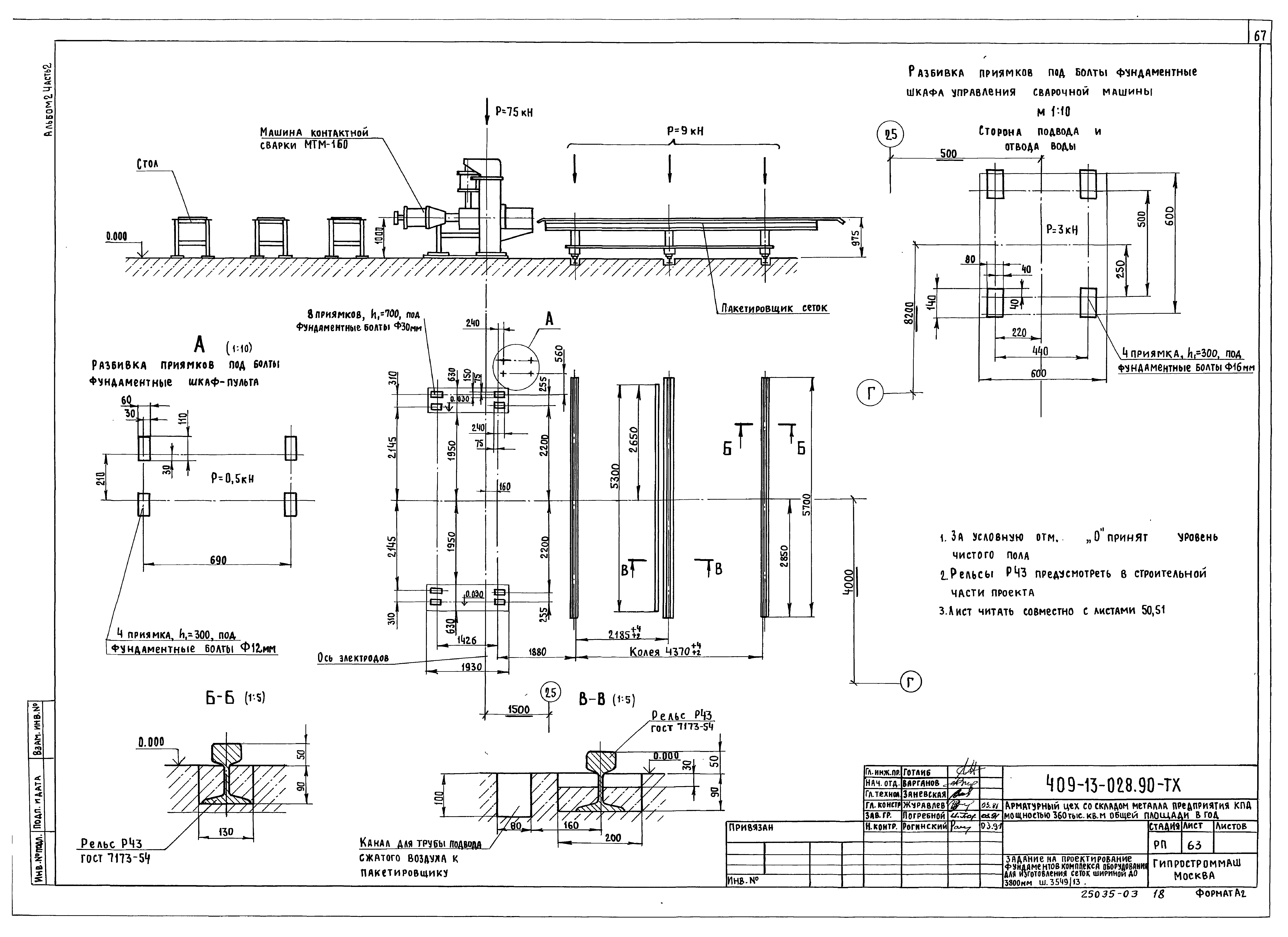
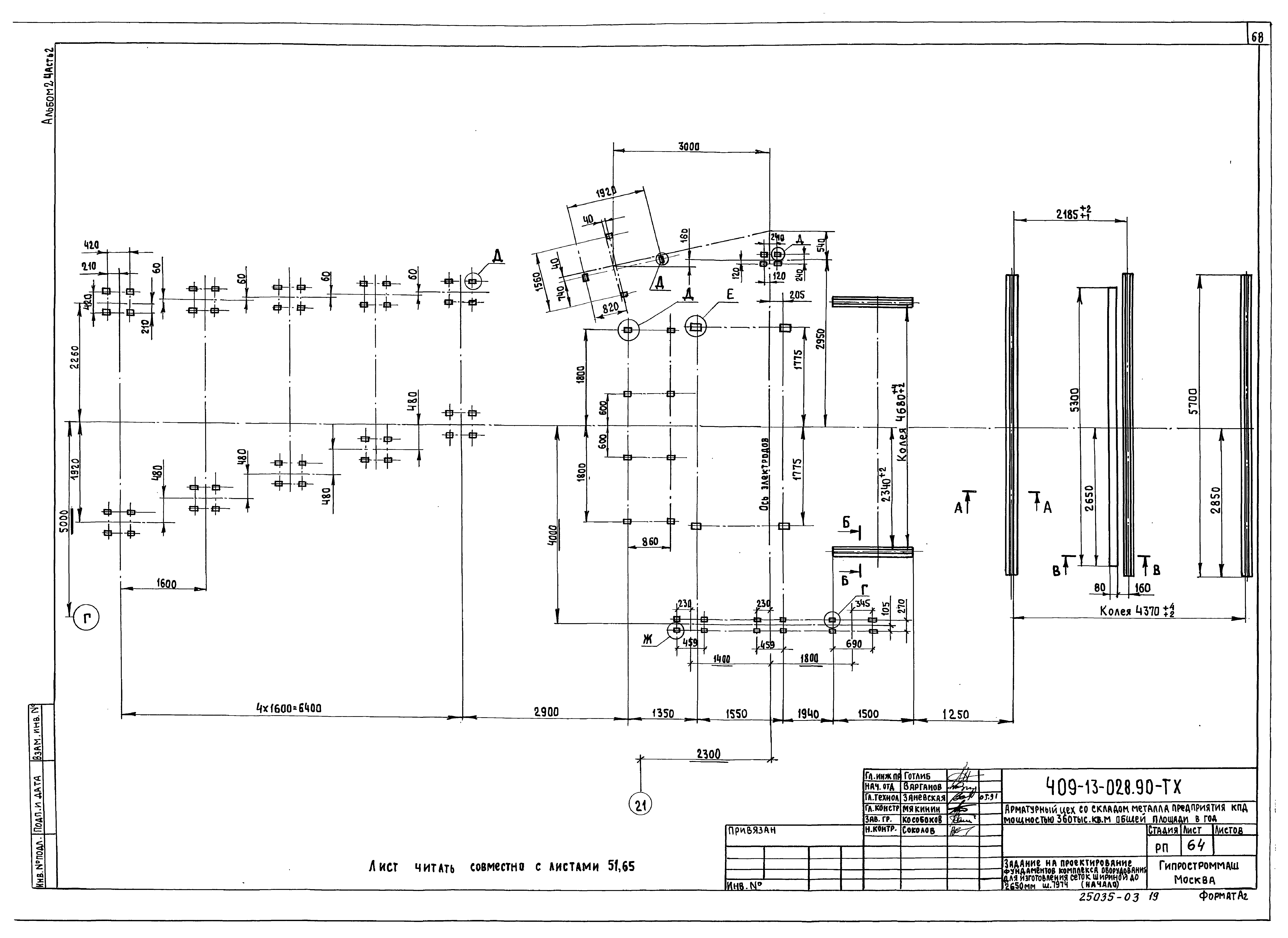
Скачать Типовые проектные решения 409-13-028.90 Альбом 2. Часть 2. Технология производстваДата актуализации: 10.08.2017 Типовые проектные решения 409-13-028.90
Альбом 2. Часть 2. Технология производстваОбозначение: | Типовые проектные решения 409-13-028.90 | Обозначение англ: | 409-13-028.90 | Статус: | cправочные материалы, мп, тпр | Название рус.: | Альбом 2. Часть 2. Технология производства | Дата добавления в базу: | 01.09.2013 | Дата актуализации: | 05.05.2017 | Дата введения: | 01.04.1991 | Разработан: | Гипростроммаш
| Утверждён: | 01.04.1991 Гипростроммаш (36)
| Расположен в: |
|
                                   
|