Информационная система
«Ёшкин Кот»

Скачать базу одним архивом
Скачать обновления
История создания базы
Карта сайта

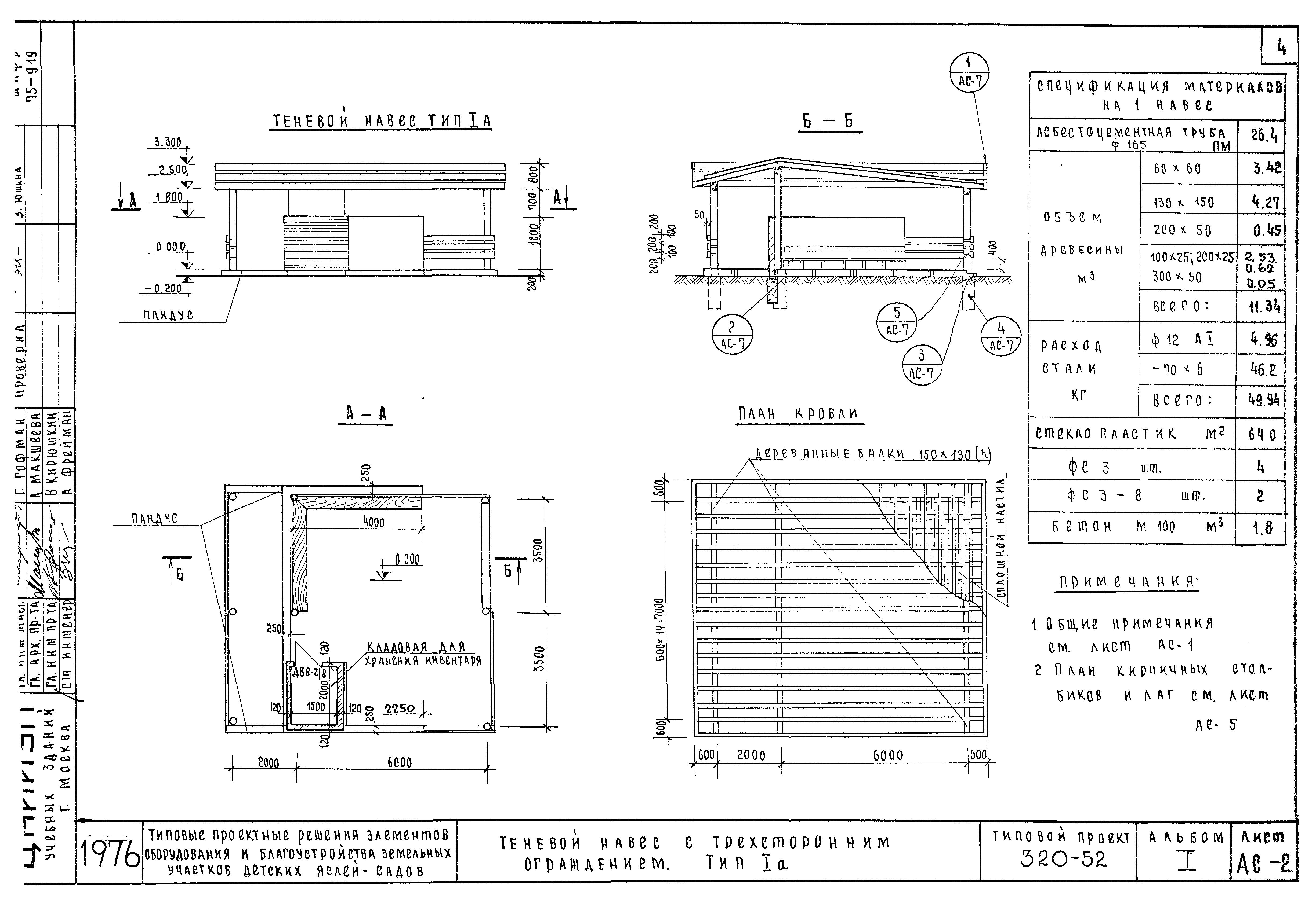
Скачать Типовой проект 320-52 Альбом I. Навесы и малые формы

Дата актуализации: 10.08.2017

Типовой проект 320-52

Альбом I. Навесы и малые формы

Обозначение: Типовой проект 320-52
Обозначение англ: 320-52
Статус:не определен законодательством
Название рус.:Альбом I. Навесы и малые формы
Дата добавления в базу:01.09.2013
Дата актуализации:05.05.2017
Дата введения:27.10.1976
Разработан: ЦНИИЭП учебных зданий Госгражданстроя
Утверждён:22.08.1975 Госгражданстрой (Gosgrazhdanstroy 190)
Расположен в:Техническая документация Строительство Справочные документы Типовые строительные конструкции, изделия и узлы Общероссийский строительный каталог Малые формы архитектуры и элементы благоустройства Малые архитектурные формы Навесы, стенки, ограды
Типовой проект 320-52Типовой проект 320-52Типовой проект 320-52Типовой проект 320-52Типовой проект 320-52Типовой проект 320-52Типовой проект 320-52Типовой проект 320-52Типовой проект 320-52Типовой проект 320-52Типовой проект 320-52Типовой проект 320-52Типовой проект 320-52Типовой проект 320-52

© 2013 Ёшкин Кот :-) Карта сайта