Информационная система
«Ёшкин Кот»

Скачать базу одним архивом
Скачать обновления
История создания базы
Карта сайта

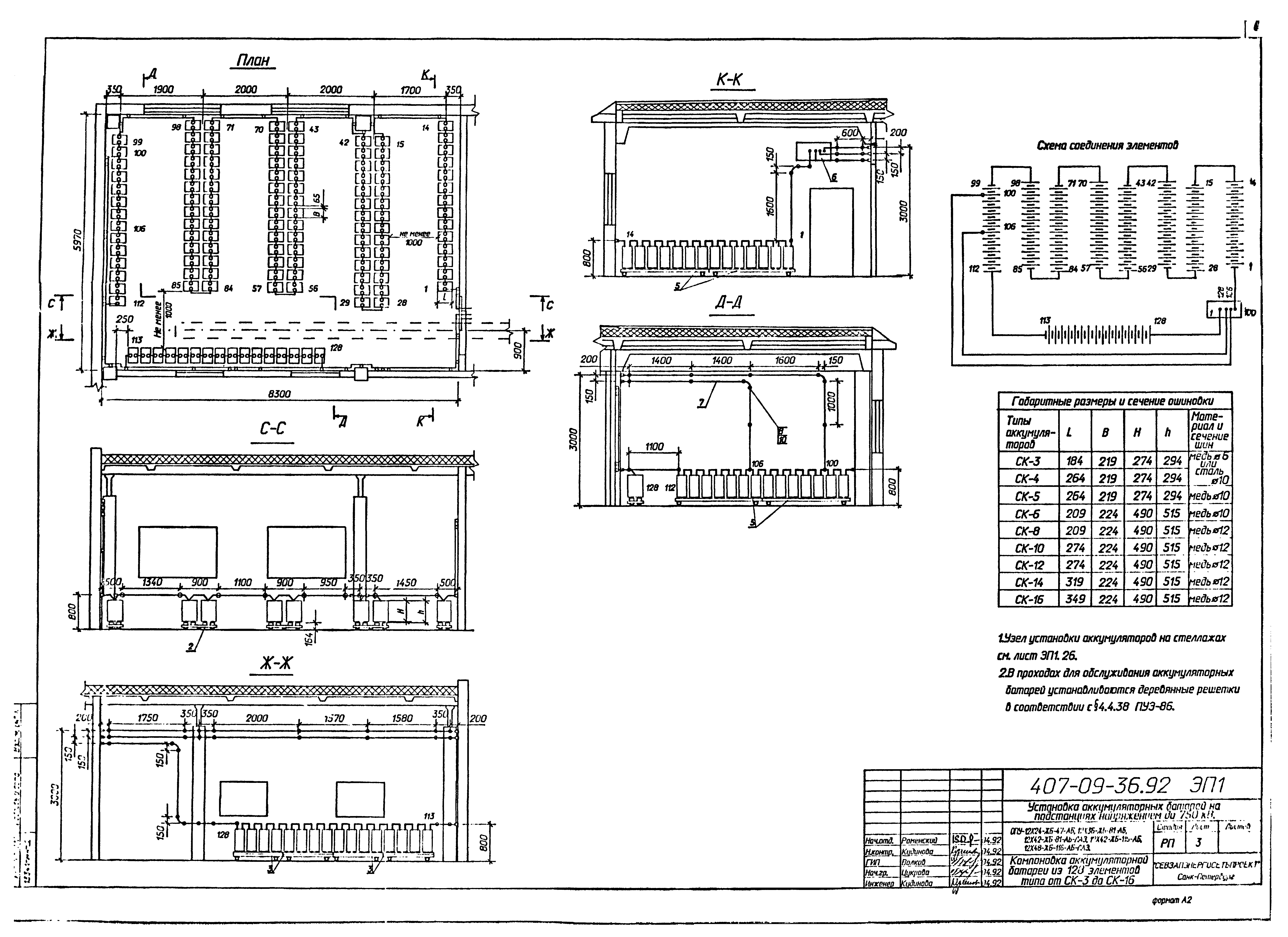
Скачать Типовые материалы для проектирования 407-09-36.92 Альбом 2. Установка аккумуляторных батарей с элементами СК

Дата актуализации: 10.08.2017

Типовые материалы для проектирования 407-09-36.92

Альбом 2. Установка аккумуляторных батарей с элементами СК

Обозначение: Типовые материалы для проектирования 407-09-36.92
Обозначение англ: 407-09-36.92
Статус:cправочные материалы, мп, тпр
Название рус.:Альбом 2. Установка аккумуляторных батарей с элементами СК
Дата добавления в базу:01.09.2013
Дата актуализации:05.05.2017
Дата введения:18.05.1992
Разработан: Севзапэнергосетьпроект
Утверждён:18.05.1992 Севзапэнергосетьпроект (4)
Принят: Минсктипроект
Расположен в:Техническая документация Строительство Справочные документы Типовые строительные конструкции, изделия и узлы Общероссийский строительный каталог Промышленные предприятия, здания и сооружения Предприятия, здания и сооружения промышленности и электроэнергетики Электроэнергетика Здания и сооружения разные
Заменяет собой:
  • Типовые материалы для проектирования 407-03-470.87 «Установка аккумуляторной батареи с элементами СК и СН на ПС напряжением до 500 кВ»
Типовые материалы для проектирования 407-09-36.92Типовые материалы для проектирования 407-09-36.92Типовые материалы для проектирования 407-09-36.92Типовые материалы для проектирования 407-09-36.92Типовые материалы для проектирования 407-09-36.92Типовые материалы для проектирования 407-09-36.92Типовые материалы для проектирования 407-09-36.92Типовые материалы для проектирования 407-09-36.92Типовые материалы для проектирования 407-09-36.92Типовые материалы для проектирования 407-09-36.92Типовые материалы для проектирования 407-09-36.92Типовые материалы для проектирования 407-09-36.92Типовые материалы для проектирования 407-09-36.92Типовые материалы для проектирования 407-09-36.92Типовые материалы для проектирования 407-09-36.92Типовые материалы для проектирования 407-09-36.92Типовые материалы для проектирования 407-09-36.92Типовые материалы для проектирования 407-09-36.92Типовые материалы для проектирования 407-09-36.92Типовые материалы для проектирования 407-09-36.92Типовые материалы для проектирования 407-09-36.92Типовые материалы для проектирования 407-09-36.92Типовые материалы для проектирования 407-09-36.92Типовые материалы для проектирования 407-09-36.92Типовые материалы для проектирования 407-09-36.92Типовые материалы для проектирования 407-09-36.92Типовые материалы для проектирования 407-09-36.92Типовые материалы для проектирования 407-09-36.92Типовые материалы для проектирования 407-09-36.92Типовые материалы для проектирования 407-09-36.92Типовые материалы для проектирования 407-09-36.92Типовые материалы для проектирования 407-09-36.92Типовые материалы для проектирования 407-09-36.92Типовые материалы для проектирования 407-09-36.92Типовые материалы для проектирования 407-09-36.92Типовые материалы для проектирования 407-09-36.92Типовые материалы для проектирования 407-09-36.92

© 2013 Ёшкин Кот :-) Карта сайта