Скачать Типовой проект 125-050/1,2 Часть 1. Архитектурно-строительные чертежи выше отм. 0.000Дата актуализации: 10.08.2017 Типовой проект 125-050/1,2
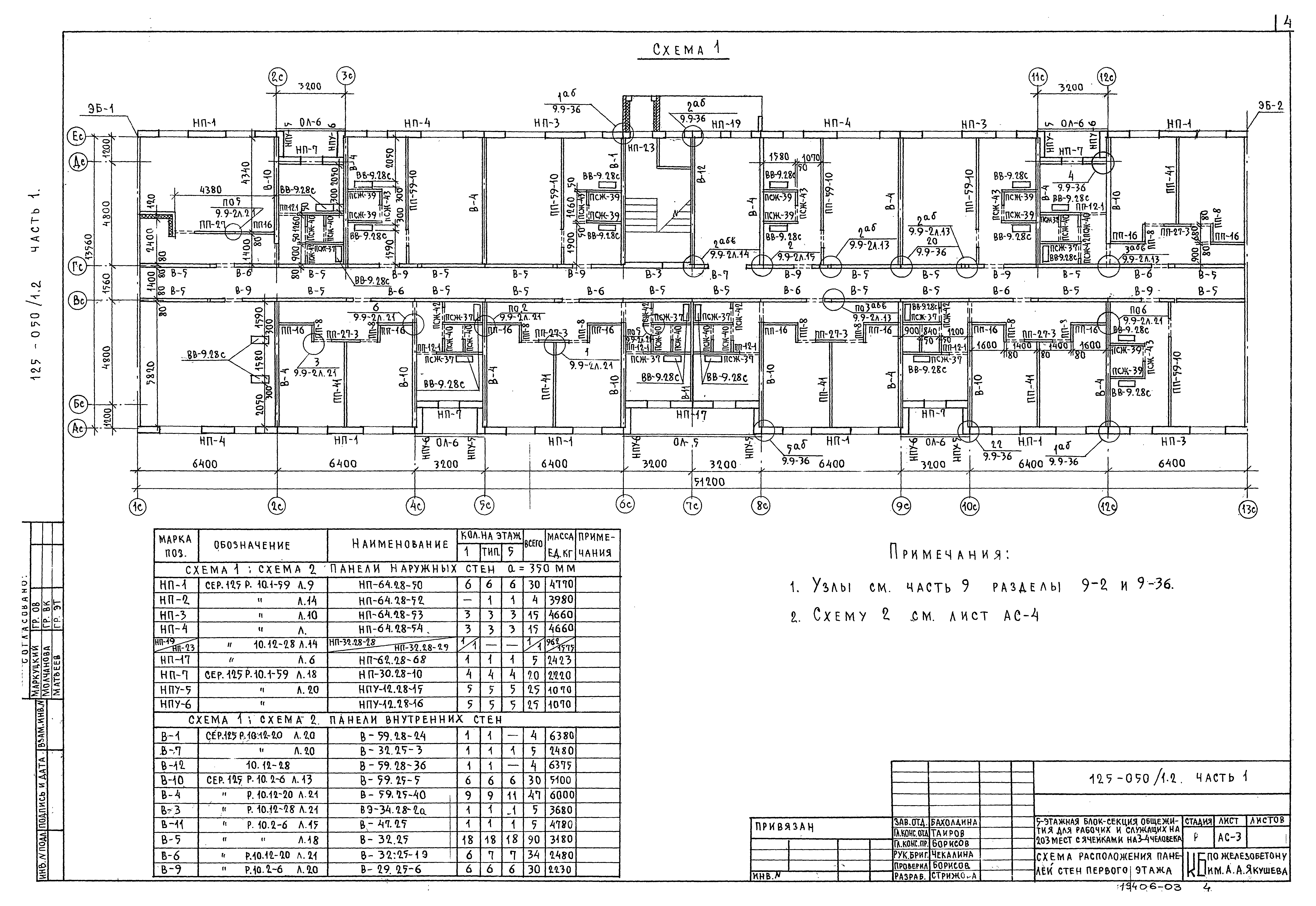
Часть 1. Архитектурно-строительные чертежи выше отм. 0.000Обозначение: | Типовой проект 125-050/1,2 | Обозначение англ: | 125-050/1,2 | Статус: | не определен законодательством | Название рус.: | Часть 1. Архитектурно-строительные чертежи выше отм. 0.000 | Дата добавления в базу: | 01.09.2013 | Дата актуализации: | 05.05.2017 | Дата введения: | 25.10.1983 | Оглавление: | Общие данные Схема расположения панелей стен 1-го этажа Схема расположения панелей стен типового этажа Монтажные фасады Элементы блокировки ЭБ-1с; ЭБ-2с. Монтажные схемы стен. Разрезы 1-1, 2-2 Схемы расположения элементов перекрытия типового и 5 этажей. Элементы блокировки ЭБ-1с; ЭБ-2с План крыши. Схемы расположения чердачных панелей, элементов покрытия и ограждения Разрез 3-3. Схемы элементов блокировки крыши Разрезы I-I и II-II План для отделочных работ 1-го этажа План для отделочных работ 2 - 5 этажей Спецификация деревянных изделий на неизменяемую часть и на элементы блокировки ЭБ-1с; ЭБ-2с Спецификация наружных, внутренних панелей стен и перекрытий на неизменяемую часть Спецификация железобетонных изделий на неизменяемую часть выше отм. 0.000 Спецификация железобетонных изделий выше отм. 0.000 на элементы блокировки Спецификация металлических элементов выше отм. 0.000 | Разработан: | КБ по железобетону им. А.А. Якушева
| Утверждён: | 19.12.1978 Госстрой РСФСР (Russian Federation Gosstroy 8-23)
| Расположен в: |
|
                
|