Скачать Типовой проект 284-4-100.83 Альбом I. Архитектурно-строительная, санитарно-техническая, электрическая части и автоматикаДата актуализации: 10.08.2017 Типовой проект 284-4-100.83
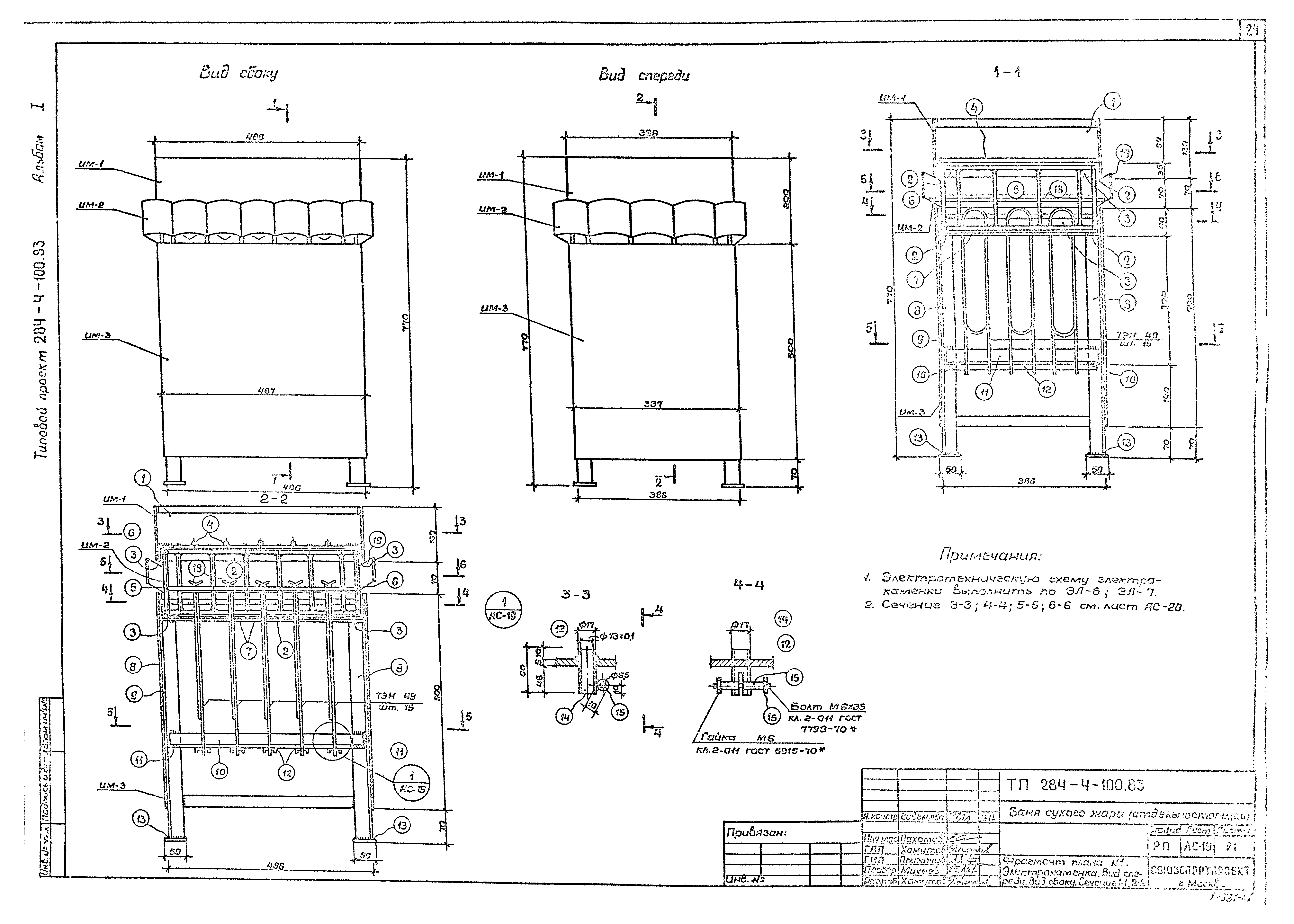
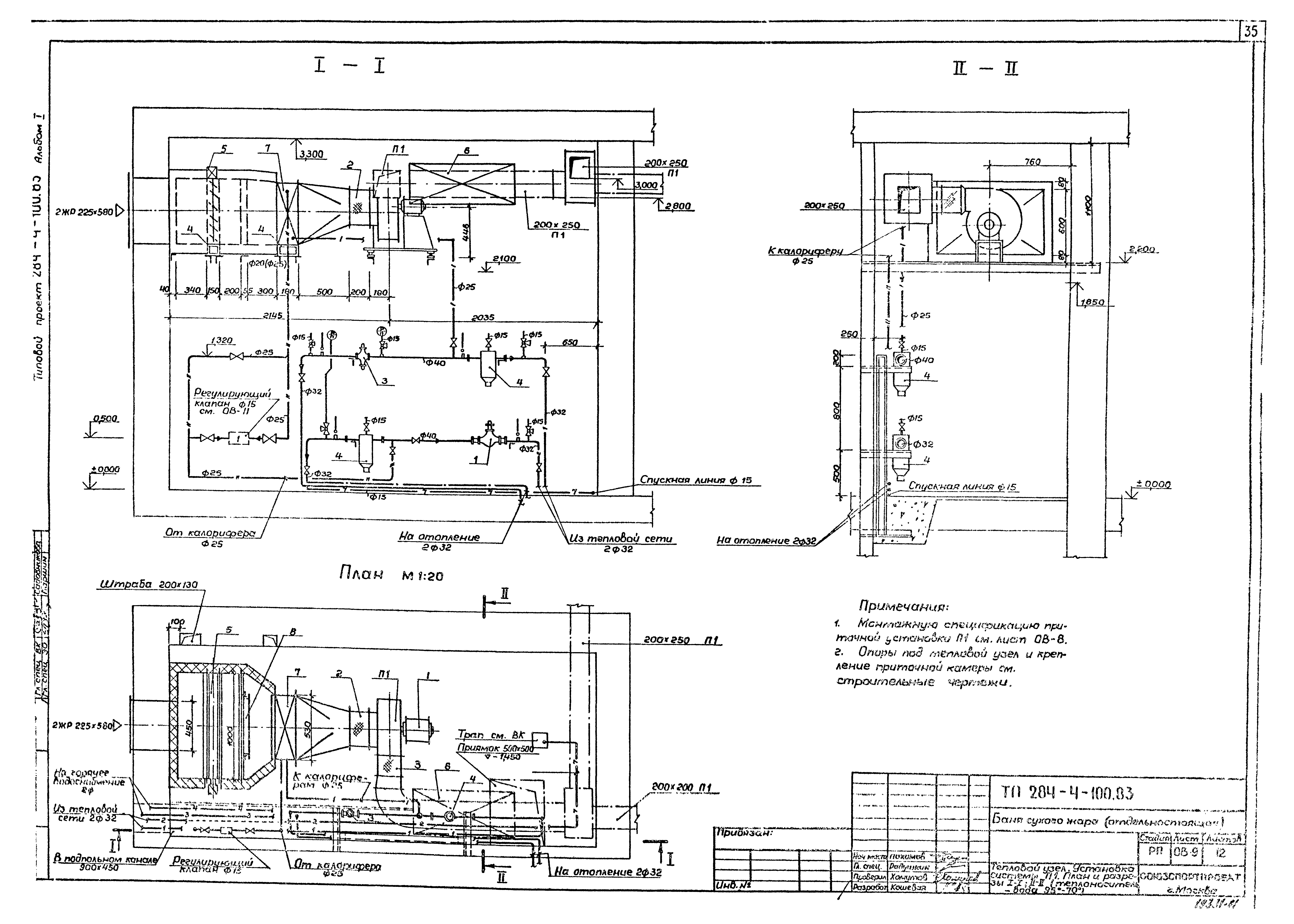
Альбом I. Архитектурно-строительная, санитарно-техническая, электрическая части и автоматикаОбозначение: | Типовой проект 284-4-100.83 | Обозначение англ: | 284-4-100.83 | Статус: | действует | Название рус.: | Альбом I. Архитектурно-строительная, санитарно-техническая, электрическая части и автоматика | Дата добавления в базу: | 01.09.2013 | Дата актуализации: | 05.05.2017 | Оглавление: | Общие данные Архитектурно-строительная часть Фасады 1 - 3; 3 - 1; В - А; А - В План на отм. 0.000 Разрезы 1-1 - 5-5 Труба вытяжной вентиляции, каркас покрытия трубы, пилон входа, металлическая деталь карниза Ведомость отделочных работ. Наружная отделка. Полы. План кровли Фрагмент плана №1. Камера сухого жара. Разрезы 1-1, 2-2 Камера сухого жара. Каркас подвесного потолка, пола, подшивной потолок Камера сухого жара. Каркас. Виды А-А, Б-Б, В-В Камера сухого жара. Разрез по каркасу 1-1. Сечение по полкам а-а Камера сухого жара. Дверь ИД-1. Детали, разрезы. Сечения Узлы разреза 1 - 3 Камера сухого жара. Узлы разреза 1 - 7 Камера сухого жара. Узлы разреза 8 - 11 Схема расположения фундаментов, подпольных каналов и приямков Схема расположения панелей покрытия Схема расположения перемычек Ванна бассейна Конструкция металлических изделий Р-1 - Р-3 Фрагмент плана №1. Электрокаменка. Вид спереди. Вид сбоку. Сечения 1-1, 2-2 Фрагмент плана №1. Сечения 3-3 - 6-6 План с расстановкой оборудования Отопление и вентиляция Общие данные Вентиляция. План на отм. 0.000. Схемы систем П1, ПЕ1, В1, ВЕ1, ВЕ2 План на отм. 0.000. Схема отопления (теплоноситель - вода 15 - 70 градусов Цельсия) Отопление. План на отм. 0.000. Схема отопления (теплоноситель - вода 95 - 70 градусов Цельсия) Тепловой пункт. Установка системы П1. План и разрезы I-I, II-II (теплоноситель - вода 150 - 70 градусов Цельсия) Тепловой пункт. Установка системы П1. План и разрезы I-I, II-II (теплоноситель - вода 95 - 70 градусов Цельсия) Схема теплового узла. Основное решение (вода 150 - 70 градусов Цельсия). Спецификация на тепловой узел и вентиляционную установку П1 Схема теплового узла. Дополнительный вариант (вода 95 - 70 градусов Цельсия). Спецификация на тепловой узел и вентиляционную установку П1. Узел установки регулирующего клапана Звено прямого участка шовного асбестоцементного воздуховода Водоснабжение, канализация Ведомость рабочих чертежей комплекта ВК. Основные показатели. Пояснительная записка. Спецификация Водоснабжение и канализация. План с сетями Схема сети холодного, горячего водоснабжения и сети канализации Электрооборудование Пояснительная записка. Содержание части проекта. Условные обозначения Спецификация на основное электрооборудование и материалы Расчетная схема магистральных сетей и силового оборудования Электроосвещение. План на отм. 0.000 Силовое электрооборудование. План на отм. 0.000 Схема соединения трубчатых электронагревателей электрокаменки Автоматика Автоматизация сантехсистем. Заглавный лист. Сводная спецификация Вентсистема. Функциональная схема автоматизации Электрокаменка. Функциональная, принципиальная электрическая схемы и схема внешних соединений Вентсистема. Принципиальная электрическая схема управления Вентсистема. Принципиальная электрическая схема регулирования Вентсистемы. Схема внешних соединений План трасс кабельных и импульсных линий | Разработан: | Союзспортпроект Спорткомитета СССР
| Утверждён: | 04.08.1982 Госгражданстрой (Gosgrazhdanstroy 203)
| Расположен в: |
|
                                                     
|