Информационная система
«Ёшкин Кот»

Скачать базу одним архивом
Скачать обновления
История создания базы
Карта сайта

Скачать РД 31.46.06-85 Альбом рабочих чертежей унифицированных узлов и деталей грейферов

Дата актуализации: 10.08.2017

РД 31.46.06-85

Альбом рабочих чертежей унифицированных узлов и деталей грейферов

Обозначение: РД 31.46.06-85
Обозначение англ: RD 31.46.06-85
Статус:не действует
Название рус.:Альбом рабочих чертежей унифицированных узлов и деталей грейферов
Дата добавления в базу:01.09.2013
Дата актуализации:05.05.2017
Область применения:В альбоме приведены рабочие чертежи, которые могут служить для справок, а также по ним могут быть изготовлены сменно-запасные части грейферов.
Оглавление:Введение
1. Канаты стальные, рекомендуемые к применению в грейферах
2. Коуши стальные для стальных канатов
3. Втулка направляющая
4. Скиба
5. Втулка клиновая (для крепления каната)
6. Клин (для крепления каната)
7. Блоки
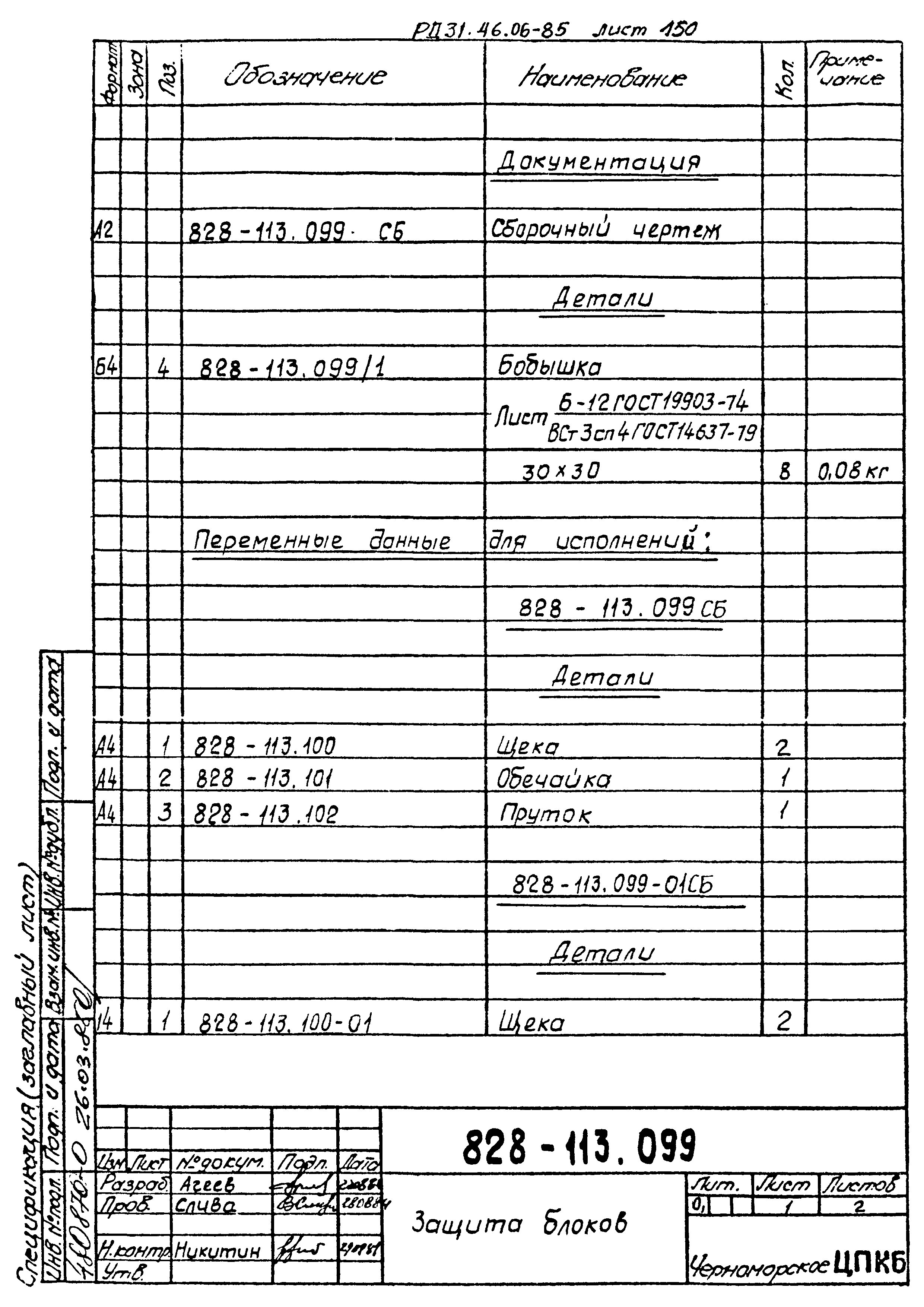
8. Ограждение блока
9. Полуоси
10. Клин полуоси
11. Оси тяг
12. Втулка тяги
13. Подшипник шарнирный
14. Сектор зубчатый
15. Подвеска для замыкающих канатов
16. Подвеска для поддерживающих канатов
17. Траверса верхняя
18. Траверса нижняя
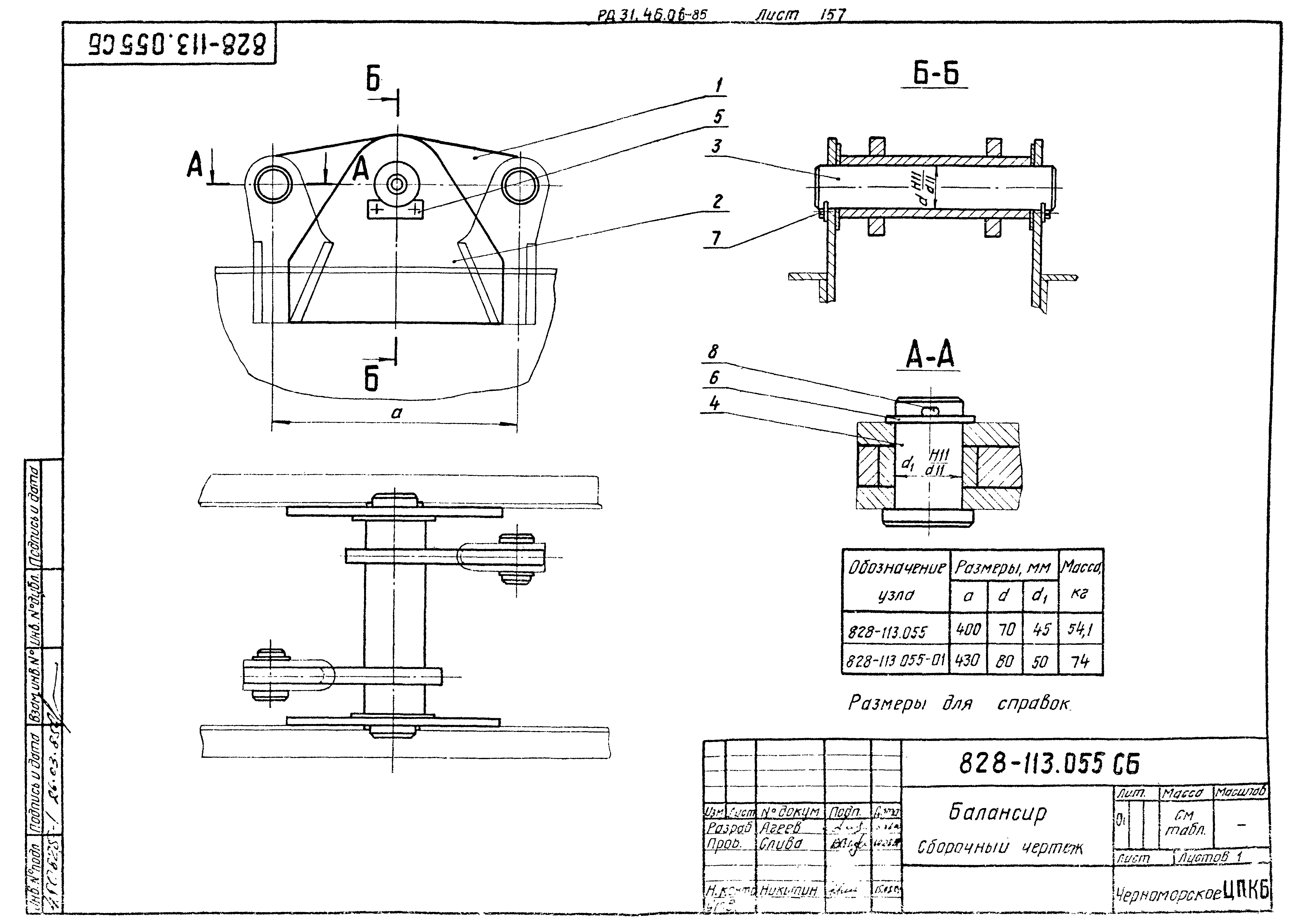
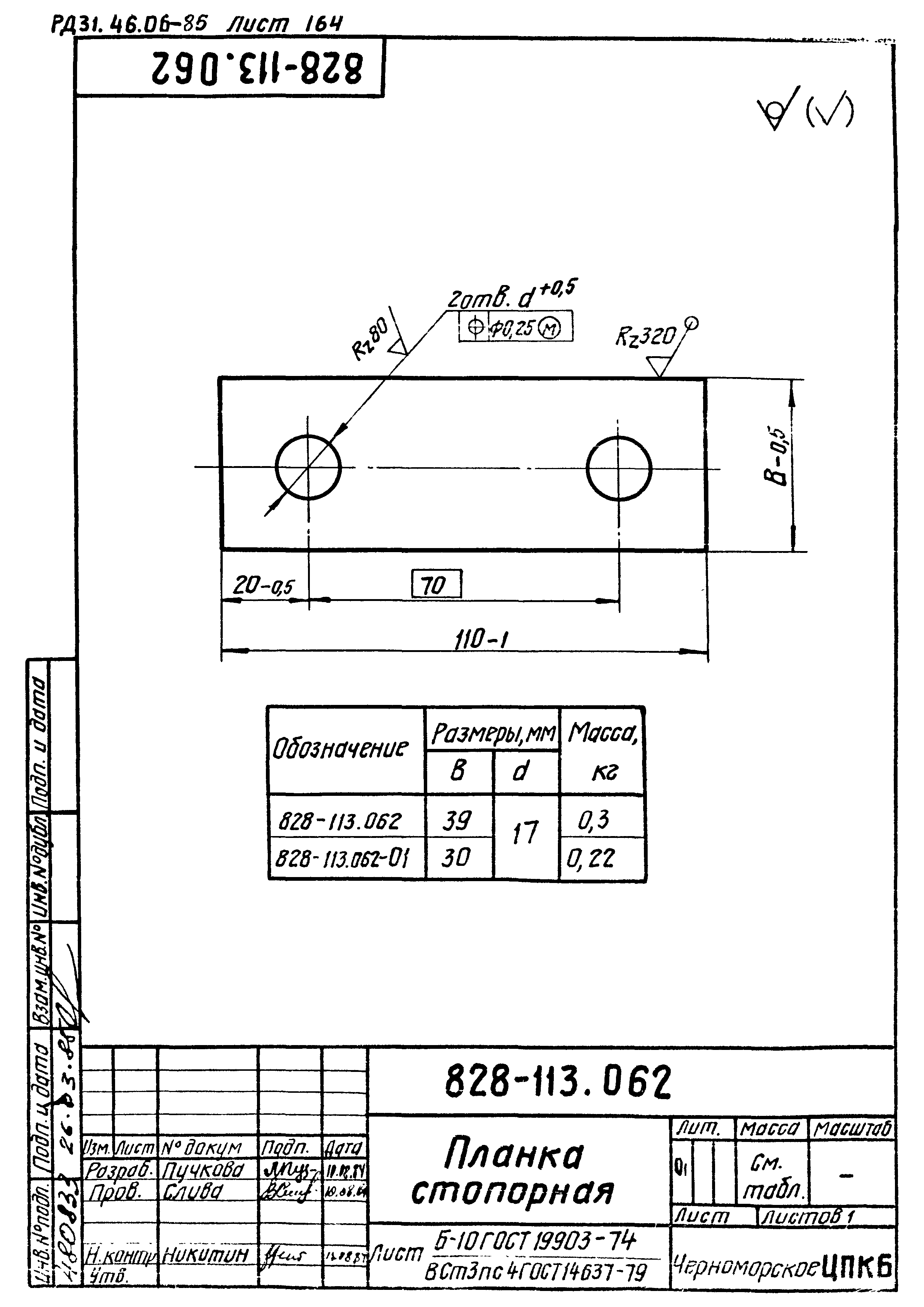
19. Балансир
20. Справочная таблица унифицированных узлов и деталей, применяющихся в грейферах
   Лист регистрации изменений
Разработан: Черноморское центральное проектно-конструкторское бюро
Утверждён:12.03.1985 Главфлот Минморфлота СССР (Glavflot, USSR Minmorflot ГФ-16/4-489)
Принят:26.11.1984 Ждановский судоремонтный завод (РДО Т-974)
Расположен в:Техническая документация Строительство Нормативные документы Отраслевые и ведомственные нормативно-методические документы Проектирование и строительство морских сооружений
Заменяет собой:
  • РД 31.46.01-77
Нормативные ссылки:
РД 31.46.06-85РД 31.46.06-85РД 31.46.06-85РД 31.46.06-85РД 31.46.06-85РД 31.46.06-85РД 31.46.06-85РД 31.46.06-85РД 31.46.06-85РД 31.46.06-85РД 31.46.06-85РД 31.46.06-85РД 31.46.06-85РД 31.46.06-85РД 31.46.06-85РД 31.46.06-85РД 31.46.06-85РД 31.46.06-85РД 31.46.06-85РД 31.46.06-85РД 31.46.06-85РД 31.46.06-85РД 31.46.06-85РД 31.46.06-85РД 31.46.06-85РД 31.46.06-85РД 31.46.06-85РД 31.46.06-85РД 31.46.06-85РД 31.46.06-85РД 31.46.06-85РД 31.46.06-85РД 31.46.06-85РД 31.46.06-85РД 31.46.06-85РД 31.46.06-85РД 31.46.06-85РД 31.46.06-85РД 31.46.06-85РД 31.46.06-85РД 31.46.06-85РД 31.46.06-85РД 31.46.06-85РД 31.46.06-85РД 31.46.06-85РД 31.46.06-85РД 31.46.06-85РД 31.46.06-85РД 31.46.06-85РД 31.46.06-85РД 31.46.06-85РД 31.46.06-85РД 31.46.06-85РД 31.46.06-85РД 31.46.06-85РД 31.46.06-85РД 31.46.06-85РД 31.46.06-85РД 31.46.06-85РД 31.46.06-85РД 31.46.06-85РД 31.46.06-85РД 31.46.06-85РД 31.46.06-85РД 31.46.06-85РД 31.46.06-85РД 31.46.06-85РД 31.46.06-85РД 31.46.06-85РД 31.46.06-85РД 31.46.06-85РД 31.46.06-85РД 31.46.06-85РД 31.46.06-85РД 31.46.06-85РД 31.46.06-85РД 31.46.06-85РД 31.46.06-85РД 31.46.06-85РД 31.46.06-85РД 31.46.06-85РД 31.46.06-85РД 31.46.06-85РД 31.46.06-85РД 31.46.06-85РД 31.46.06-85РД 31.46.06-85РД 31.46.06-85РД 31.46.06-85РД 31.46.06-85РД 31.46.06-85РД 31.46.06-85РД 31.46.06-85РД 31.46.06-85РД 31.46.06-85РД 31.46.06-85РД 31.46.06-85РД 31.46.06-85РД 31.46.06-85РД 31.46.06-85РД 31.46.06-85РД 31.46.06-85РД 31.46.06-85РД 31.46.06-85РД 31.46.06-85РД 31.46.06-85РД 31.46.06-85РД 31.46.06-85РД 31.46.06-85РД 31.46.06-85РД 31.46.06-85РД 31.46.06-85РД 31.46.06-85РД 31.46.06-85РД 31.46.06-85РД 31.46.06-85РД 31.46.06-85РД 31.46.06-85РД 31.46.06-85РД 31.46.06-85РД 31.46.06-85РД 31.46.06-85РД 31.46.06-85РД 31.46.06-85РД 31.46.06-85РД 31.46.06-85РД 31.46.06-85РД 31.46.06-85РД 31.46.06-85РД 31.46.06-85РД 31.46.06-85РД 31.46.06-85РД 31.46.06-85РД 31.46.06-85РД 31.46.06-85РД 31.46.06-85РД 31.46.06-85РД 31.46.06-85РД 31.46.06-85РД 31.46.06-85РД 31.46.06-85РД 31.46.06-85РД 31.46.06-85РД 31.46.06-85РД 31.46.06-85РД 31.46.06-85РД 31.46.06-85РД 31.46.06-85РД 31.46.06-85РД 31.46.06-85РД 31.46.06-85РД 31.46.06-85РД 31.46.06-85РД 31.46.06-85РД 31.46.06-85РД 31.46.06-85РД 31.46.06-85РД 31.46.06-85РД 31.46.06-85РД 31.46.06-85РД 31.46.06-85РД 31.46.06-85РД 31.46.06-85РД 31.46.06-85РД 31.46.06-85РД 31.46.06-85РД 31.46.06-85РД 31.46.06-85РД 31.46.06-85РД 31.46.06-85РД 31.46.06-85РД 31.46.06-85РД 31.46.06-85РД 31.46.06-85РД 31.46.06-85РД 31.46.06-85РД 31.46.06-85РД 31.46.06-85РД 31.46.06-85РД 31.46.06-85РД 31.46.06-85РД 31.46.06-85РД 31.46.06-85

© 2013 Ёшкин Кот :-) Карта сайта