Скачать Типовой проект 704-1-56 Альбом VI. Оборудование резервуара для темных нефтепродуктовДата актуализации: 10.08.2017 Типовой проект 704-1-56
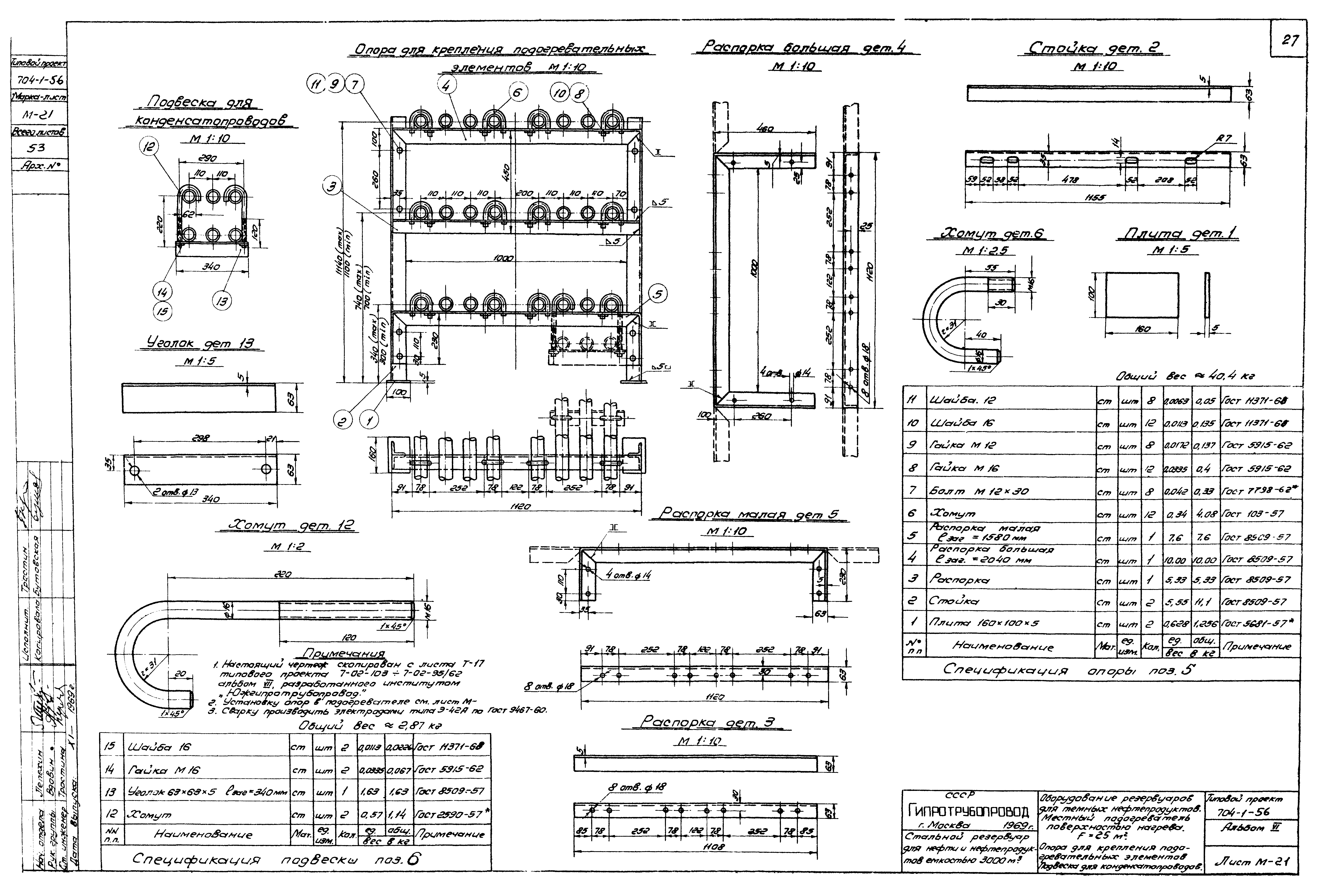
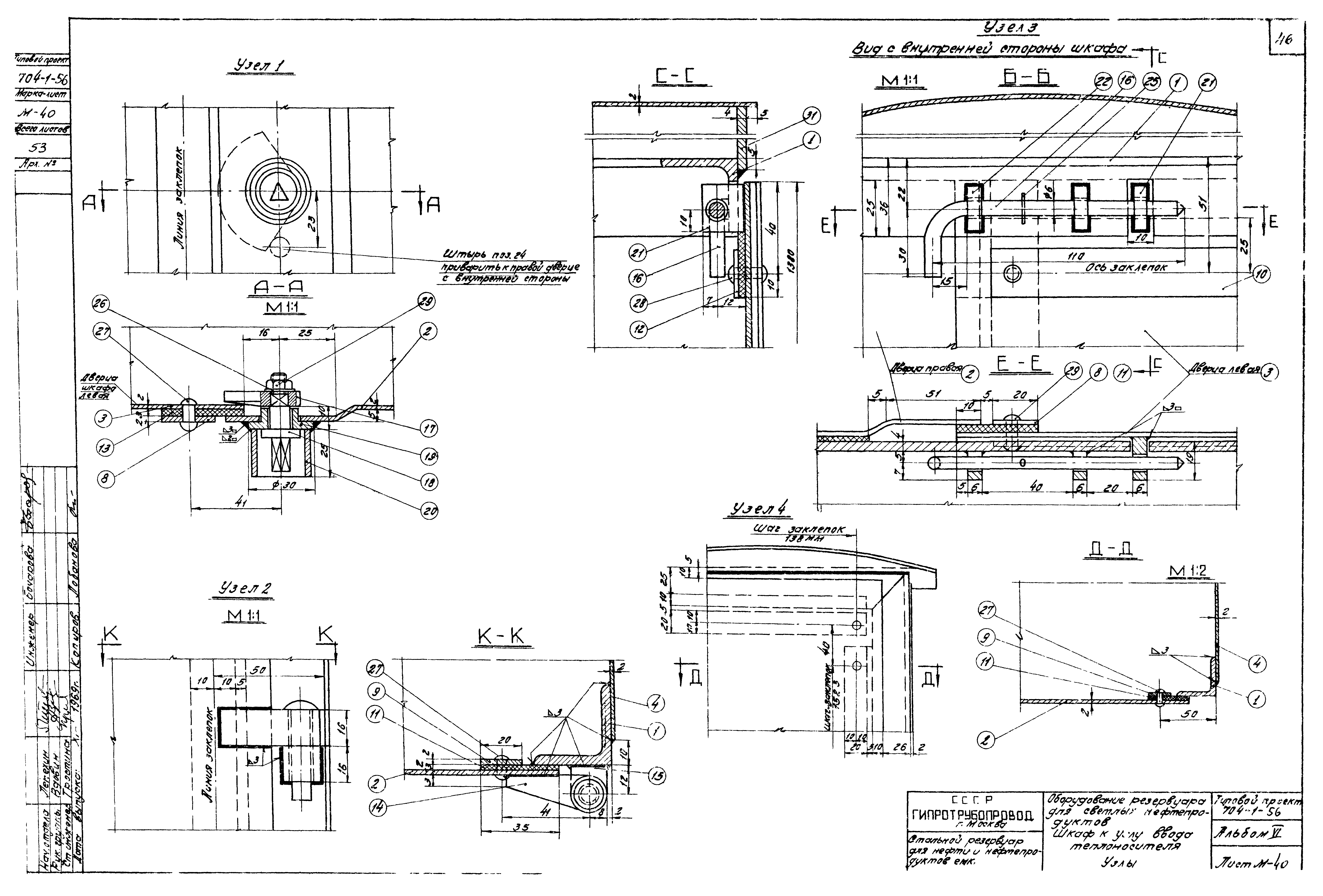
Альбом VI. Оборудование резервуара для темных нефтепродуктовОбозначение: | Типовой проект 704-1-56 | Обозначение англ: | 704-1-56 | Статус: | не действует | Название рус.: | Альбом VI. Оборудование резервуара для темных нефтепродуктов | Дата добавления в базу: | 01.09.2013 | Дата актуализации: | 05.05.2017 | Разработан: | ЦНИИпроектстальконструкция
| Утверждён: | 29.12.1969 ЦНИИпроектстальконструкция (TsNIIprojectstalkonstruktsiya 221)
| Расположен в: |
|
                                                    
|