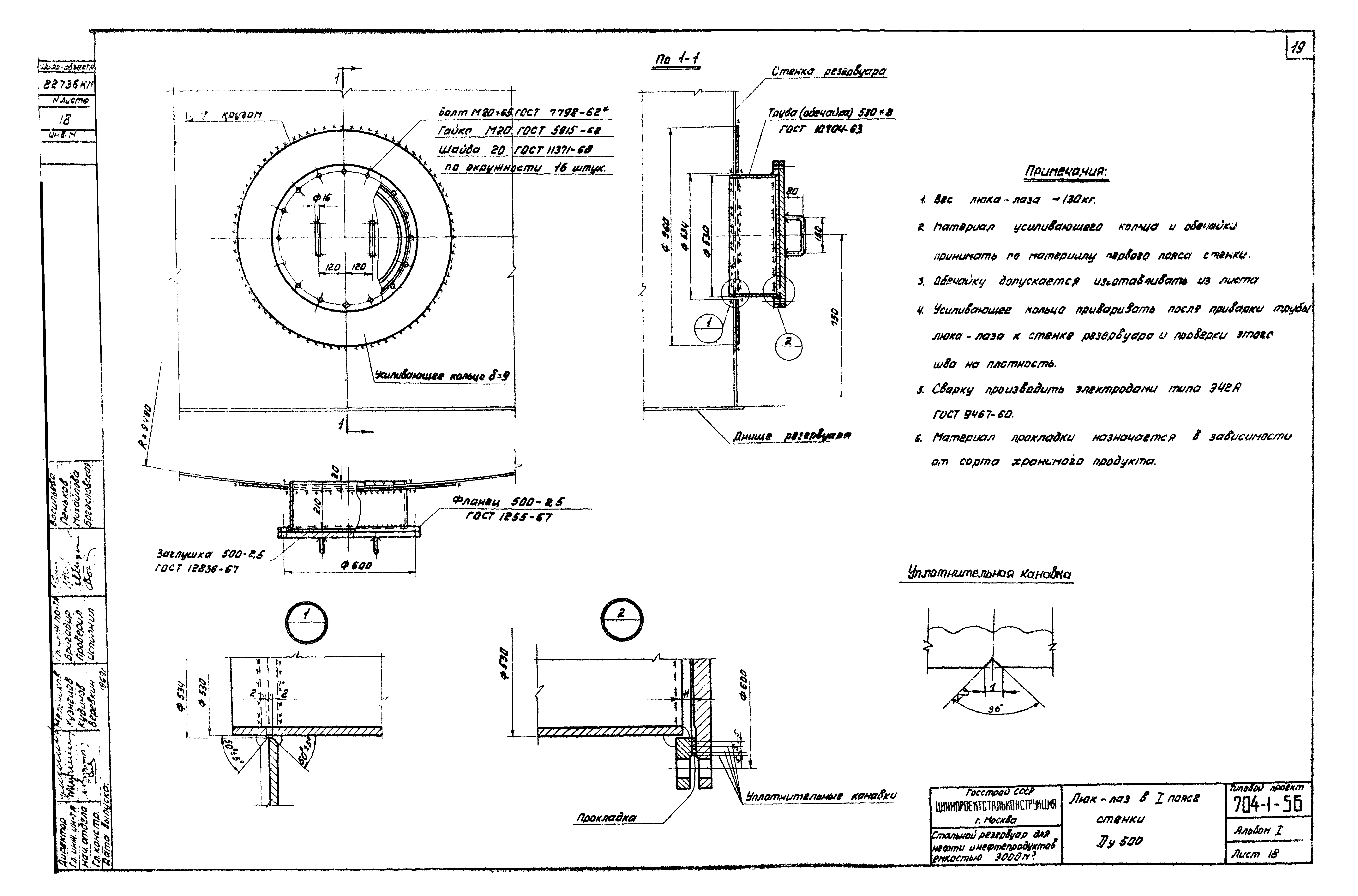
Скачать Типовой проект 704-1-56 Альбом I. Рабочие чертежи КМ резервуара без понтонаДата актуализации: 10.08.2017 Типовой проект 704-1-56
Альбом I. Рабочие чертежи КМ резервуара без понтонаОбозначение: | Типовой проект 704-1-56 | Обозначение англ: | 704-1-56 | Статус: | не действует | Название рус.: | Альбом I. Рабочие чертежи КМ резервуара без понтона | Дата добавления в базу: | 01.09.2013 | Дата актуализации: | 05.05.2017 | Разработан: | ЦНИИпроектстальконструкция
| Утверждён: | 29.12.1969 ЦНИИпроектстальконструкция (TsNIIprojectstalkonstruktsiya 221)
| Расположен в: |
|
                     
|