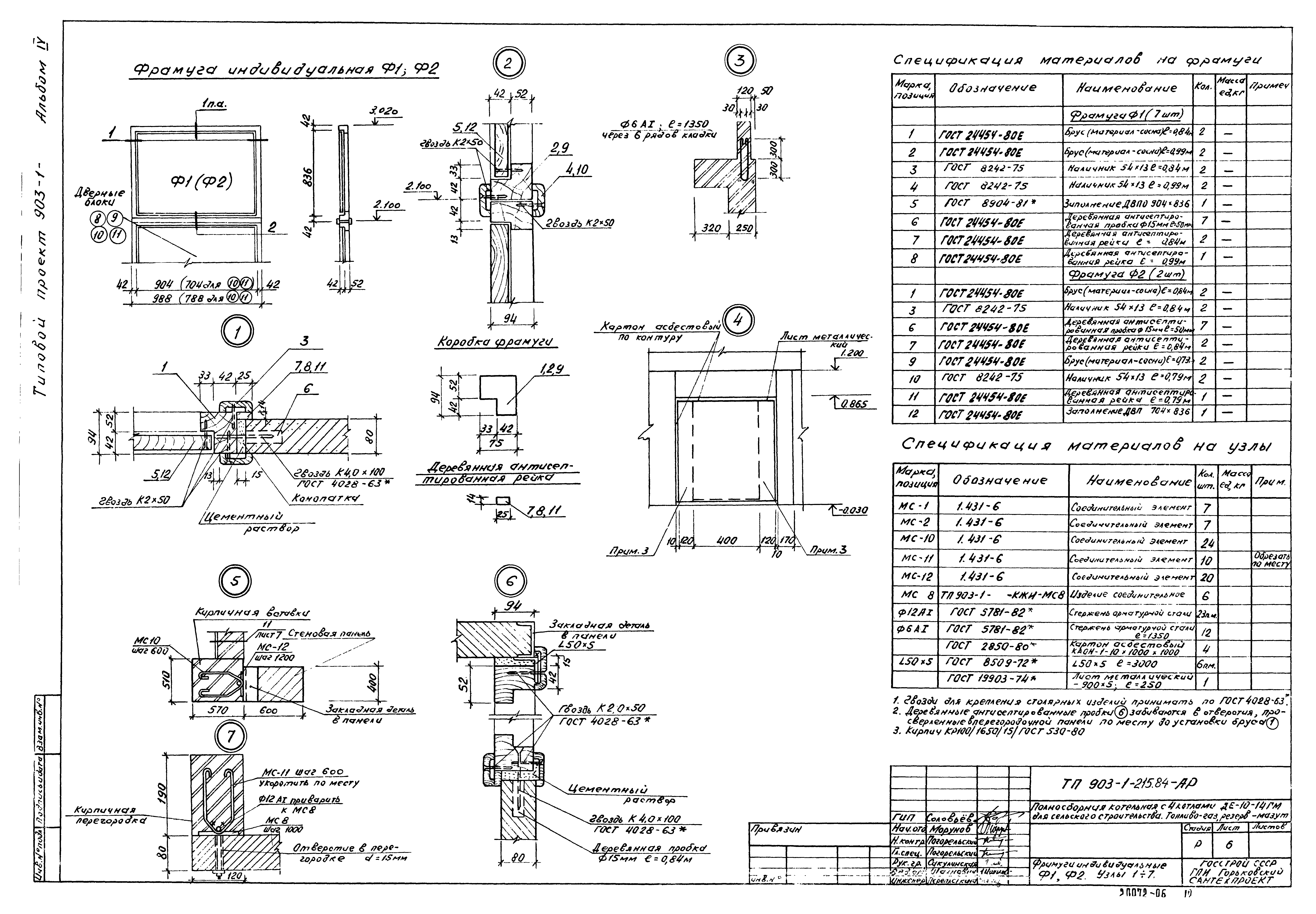
Скачать Типовой проект 903-1-215.84 Альбом IV. Архитектурно-строительная часть. Санитарно-техническая частьДата актуализации: 10.08.2017 Типовой проект 903-1-215.84
Альбом IV. Архитектурно-строительная часть. Санитарно-техническая частьОбозначение: | Типовой проект 903-1-215.84 | Обозначение англ: | 903-1-215.84 | Статус: | действует | Название рус.: | Альбом IV. Архитектурно-строительная часть. Санитарно-техническая часть | Дата добавления в базу: | 01.09.2013 | Дата актуализации: | 05.05.2017 | Дата введения: | 12.10.1984 | Разработан: | Горьковский Сантехпроект
| Утверждён: | 02.07.1984 Минсельхоз СССР (USSR Minselkhoz 51-3Г)
| Расположен в: |
|
                                                                              
|