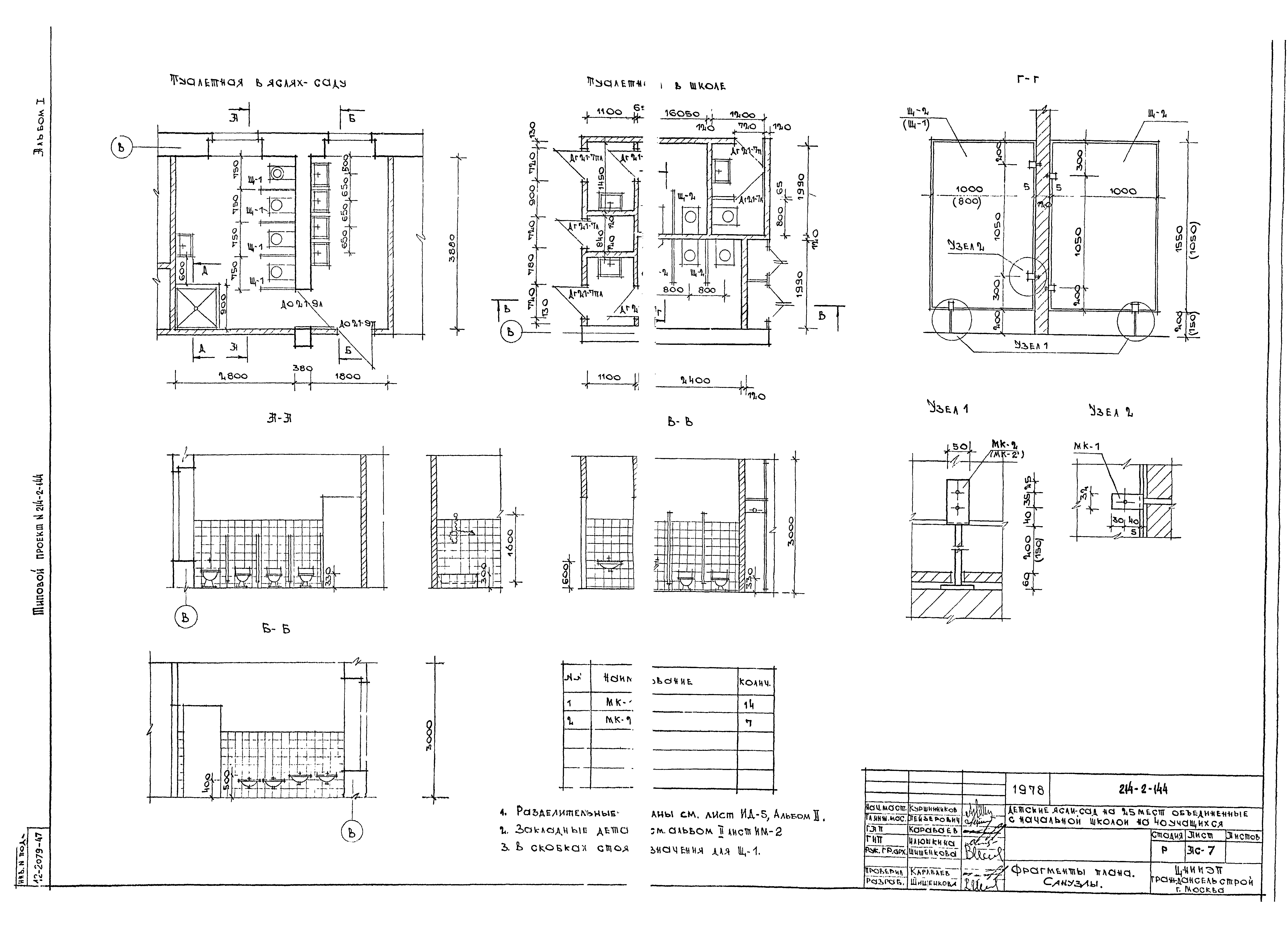
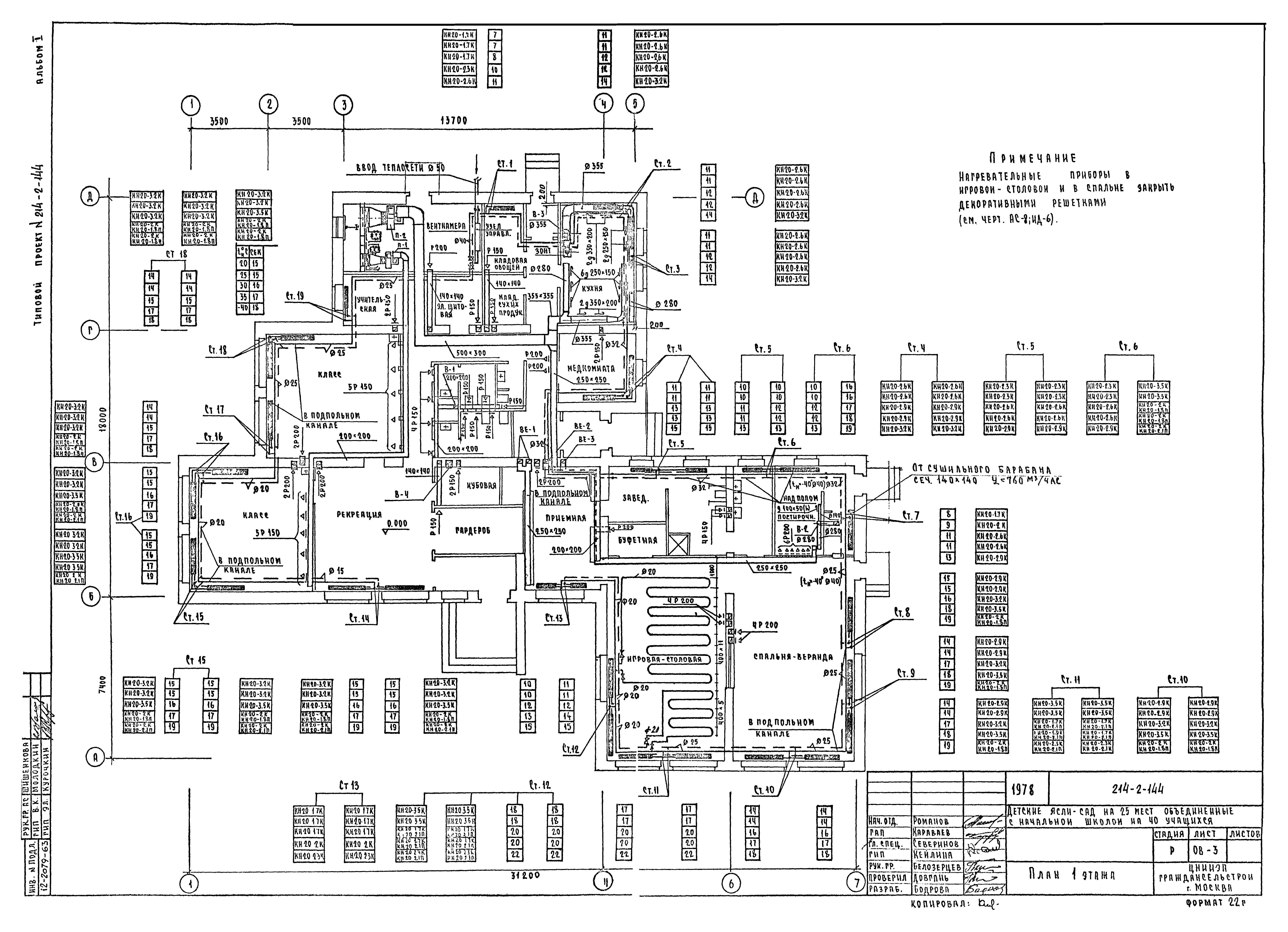
Скачать Типовой проект 214-2-144 Альбом I. Архитектурно-строительные, технологические, санитарно-технические, электротехнические чертежи, чертежи устройства связи и сигнализацииДата актуализации: 10.08.2017 Типовой проект 214-2-144
Альбом I. Архитектурно-строительные, технологические, санитарно-технические, электротехнические чертежи, чертежи устройства связи и сигнализацииОбозначение: | Типовой проект 214-2-144 | Обозначение англ: | 214-2-144 | Статус: | не определен законодательством | Название рус.: | Альбом I. Архитектурно-строительные, технологические, санитарно-технические, электротехнические чертежи, чертежи устройства связи и сигнализации | Дата добавления в базу: | 01.09.2013 | Дата актуализации: | 05.05.2017 | Дата введения: | 15.12.1978 | Разработан: | ЦНИИЭП граждансельстрой
| Утверждён: | 10.05.1977 Госгражданстрой (Gosgrazhdanstroy 88)
| Расположен в: |
|
                                                        
|