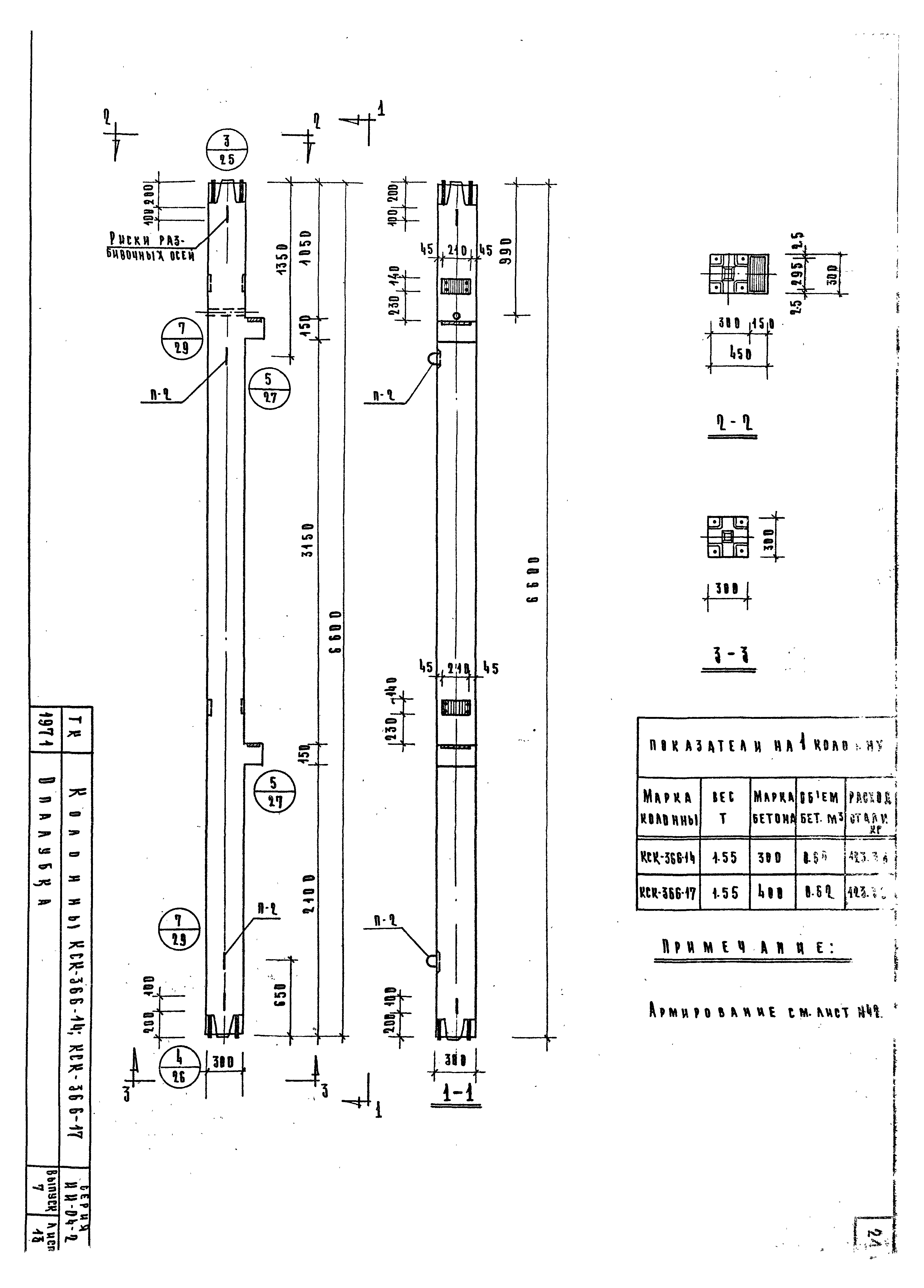
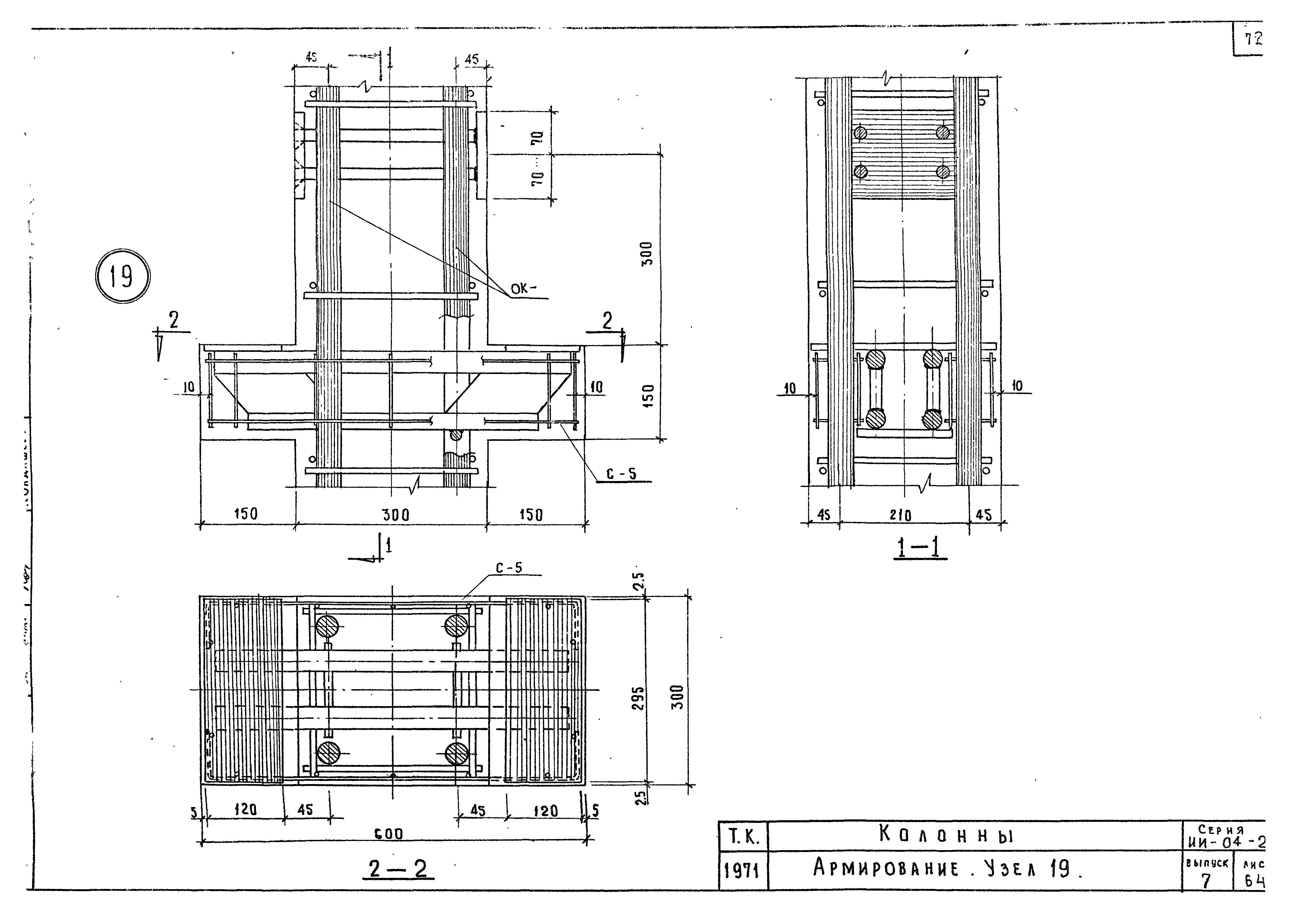
Скачать Серия ИИ-04-2 Выпуск 7. Колонны связевого каркаса сечением 30х30 см для зданий с высотой этажа 3,3 м. Опалубка и армированиеДата актуализации: 10.08.2017 Серия ИИ-04-2
Выпуск 7. Колонны связевого каркаса сечением 30х30 см для зданий с высотой этажа 3,3 м. Опалубка и армирование| Обозначение: | Серия ИИ-04-2 | | Обозначение англ: | Series ИИ-04-2 | | Статус: | не действует | | Название рус.: | Выпуск 7. Колонны связевого каркаса сечением 30х30 см для зданий с высотой этажа 3,3 м. Опалубка и армирование | | Дата добавления в базу: | 01.09.2013 | | Дата актуализации: | 05.05.2017 | | Дата окончания срока действия: | 01.04.1982 | | Разработан: | НИИЖБ Госстроя СССР ЦНИИЭП торгово-бытовых зданий и туристских комплексов
| | Утверждён: | 28.01.1972 Государственный комитет по гражданскому строительству и архитектуре при Госстрое СССР (9)
| | Расположен в: |
| | Чем заменён: | |
                                                                               
|