Информационная система
«Ёшкин Кот»

Скачать базу одним архивом
Скачать обновления
История создания базы
Карта сайта

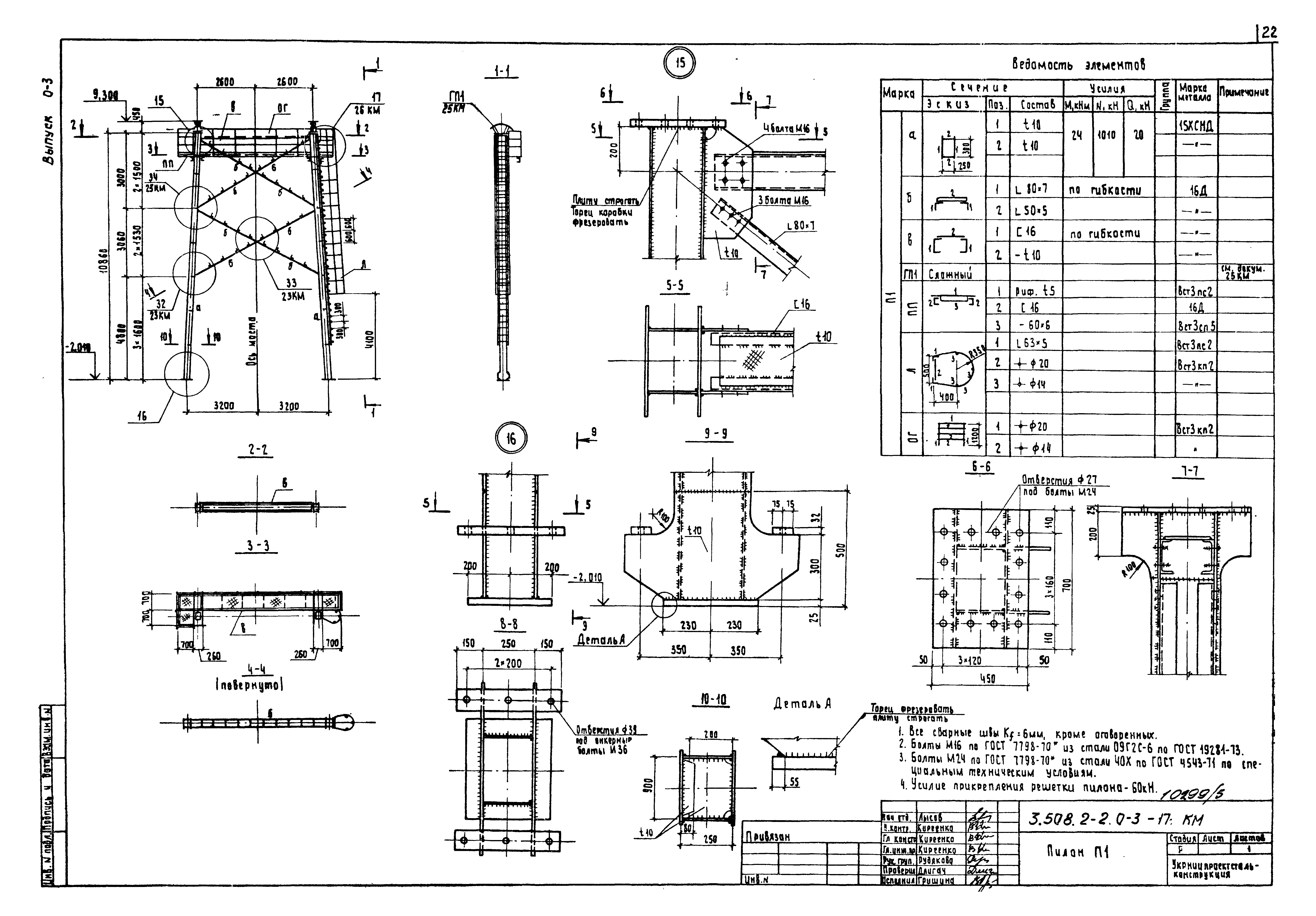
Скачать Серия 3.508.2-2 Выпуск 0-3. Пролетные строения с дощатым настилом пешеходной части. Рабочие чертежи КМ

Дата актуализации: 10.08.2017

Серия 3.508.2-2

Выпуск 0-3. Пролетные строения с дощатым настилом пешеходной части. Рабочие чертежи КМ

Обозначение: Серия 3.508.2-2
Обозначение англ: Series 3.508.2-2
Статус:не определен законодательством
Название рус.:Выпуск 0-3. Пролетные строения с дощатым настилом пешеходной части. Рабочие чертежи КМ
Дата добавления в базу:01.09.2013
Дата актуализации:05.05.2017
Дата введения:10.03.1990
Разработан: Укрниипроектстальконструкция
Утверждён:15.11.1988 Госстрой СССР (Государственный комитет Совета Министров СССР по делам строительства) (USSR Gosstroy 6/6-2354)
Расположен в:Техническая документация Строительство Справочные документы Типовые строительные конструкции, изделия и узлы Общероссийский строительный каталог Строительные конструкции, изделия и узлы зданий и сооружений для всех видов строительства Конструкции и изделия сооружений и оборудования зданий Надземные сооружения Конструкции и сооружения транспорта Пролетные строения мостов, мосты и путепроводы
Серия 3.508.2-2Серия 3.508.2-2Серия 3.508.2-2Серия 3.508.2-2Серия 3.508.2-2Серия 3.508.2-2Серия 3.508.2-2Серия 3.508.2-2Серия 3.508.2-2Серия 3.508.2-2Серия 3.508.2-2Серия 3.508.2-2Серия 3.508.2-2Серия 3.508.2-2Серия 3.508.2-2Серия 3.508.2-2Серия 3.508.2-2Серия 3.508.2-2Серия 3.508.2-2Серия 3.508.2-2Серия 3.508.2-2Серия 3.508.2-2Серия 3.508.2-2Серия 3.508.2-2Серия 3.508.2-2Серия 3.508.2-2Серия 3.508.2-2Серия 3.508.2-2Серия 3.508.2-2Серия 3.508.2-2Серия 3.508.2-2Серия 3.508.2-2Серия 3.508.2-2Серия 3.508.2-2Серия 3.508.2-2Серия 3.508.2-2Серия 3.508.2-2Серия 3.508.2-2Серия 3.508.2-2Серия 3.508.2-2Серия 3.508.2-2Серия 3.508.2-2Серия 3.508.2-2Серия 3.508.2-2Серия 3.508.2-2Серия 3.508.2-2Серия 3.508.2-2Серия 3.508.2-2Серия 3.508.2-2Серия 3.508.2-2Серия 3.508.2-2Серия 3.508.2-2Серия 3.508.2-2Серия 3.508.2-2Серия 3.508.2-2Серия 3.508.2-2Серия 3.508.2-2Серия 3.508.2-2Серия 3.508.2-2Серия 3.508.2-2Серия 3.508.2-2Серия 3.508.2-2Серия 3.508.2-2Серия 3.508.2-2Серия 3.508.2-2Серия 3.508.2-2Серия 3.508.2-2Серия 3.508.2-2Серия 3.508.2-2Серия 3.508.2-2Серия 3.508.2-2Серия 3.508.2-2Серия 3.508.2-2Серия 3.508.2-2Серия 3.508.2-2Серия 3.508.2-2Серия 3.508.2-2Серия 3.508.2-2Серия 3.508.2-2Серия 3.508.2-2

© 2013 Ёшкин Кот :-) Карта сайта