Информационная система
«Ёшкин Кот»

Скачать базу одним архивом
Скачать обновления
История создания базы
Карта сайта

Скачать Типовой проект 902-2-487.92 Альбом 2. Внутренние водопровод и канализация. Отопление и вентиляция. Архитектурные решения. Конструкции железобетонные. Конструкции металлические. Строительные изделия

Дата актуализации: 10.08.2017

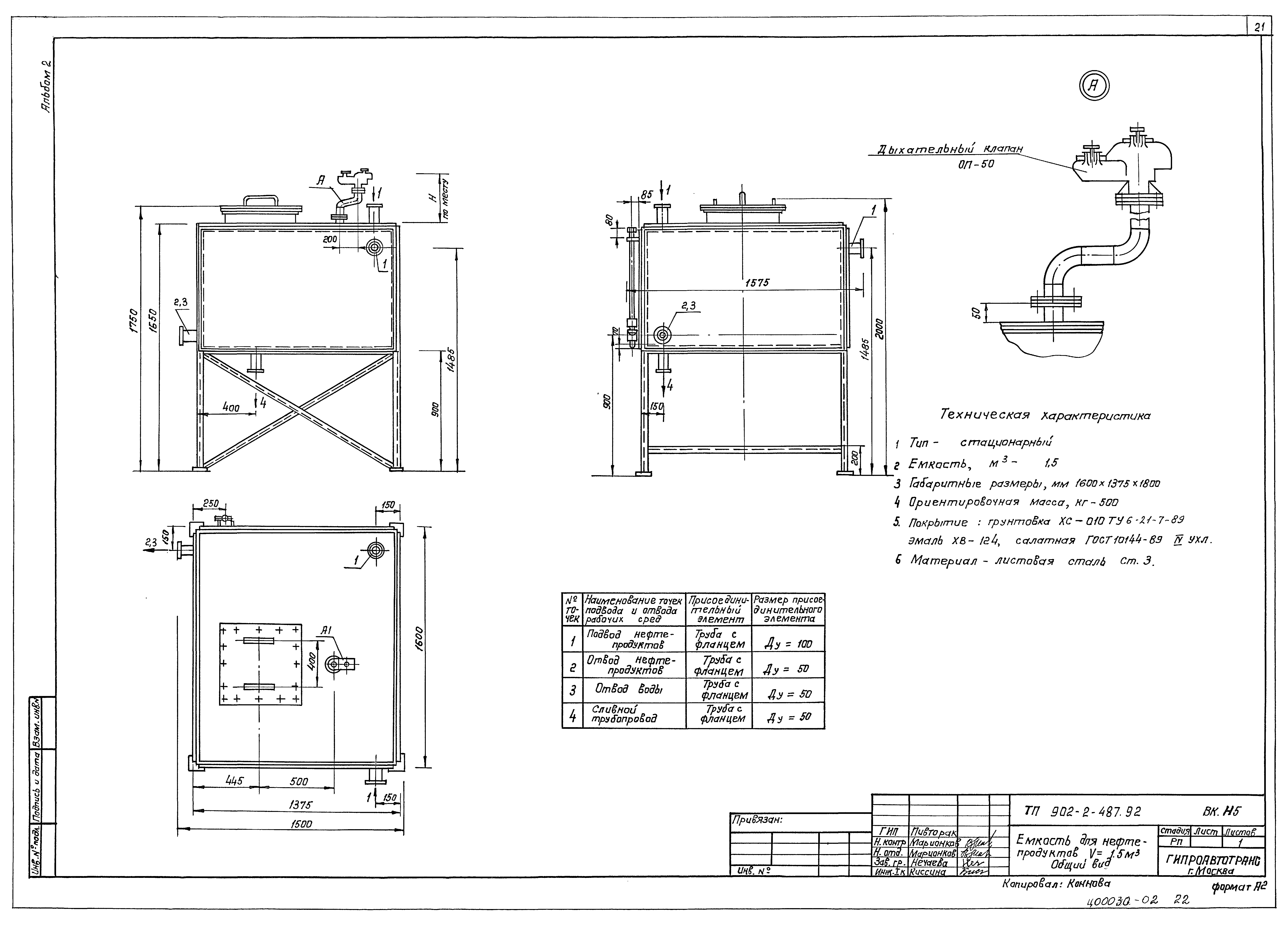
Типовой проект 902-2-487.92

Альбом 2. Внутренние водопровод и канализация. Отопление и вентиляция. Архитектурные решения. Конструкции железобетонные. Конструкции металлические. Строительные изделия

Обозначение: Типовой проект 902-2-487.92
Обозначение англ: 902-2-487.92
Статус:не определен законодательством
Название рус.:Альбом 2. Внутренние водопровод и канализация. Отопление и вентиляция. Архитектурные решения. Конструкции железобетонные. Конструкции металлические. Строительные изделия
Дата добавления в базу:01.09.2013
Дата актуализации:05.05.2017
Дата введения:19.11.1992
Разработан: Гипроавтотранс
Утверждён:19.11.1992 Гипроавтотранс (3-А)
Расположен в:Техническая документация Строительство Справочные документы Типовые строительные конструкции, изделия и узлы Общероссийский строительный каталог Промышленные предприятия, здания и сооружения Здания и сооружения санитарно-технические Канализация Сооружения для очистки производственных сточных вод Сооружения для очистки сточных вод от мойки автомобилей
Заменяет собой:
Типовой проект 902-2-487.92Типовой проект 902-2-487.92Типовой проект 902-2-487.92Типовой проект 902-2-487.92Типовой проект 902-2-487.92Типовой проект 902-2-487.92Типовой проект 902-2-487.92Типовой проект 902-2-487.92Типовой проект 902-2-487.92Типовой проект 902-2-487.92Типовой проект 902-2-487.92Типовой проект 902-2-487.92Типовой проект 902-2-487.92Типовой проект 902-2-487.92Типовой проект 902-2-487.92Типовой проект 902-2-487.92Типовой проект 902-2-487.92Типовой проект 902-2-487.92Типовой проект 902-2-487.92Типовой проект 902-2-487.92Типовой проект 902-2-487.92Типовой проект 902-2-487.92Типовой проект 902-2-487.92Типовой проект 902-2-487.92Типовой проект 902-2-487.92Типовой проект 902-2-487.92Типовой проект 902-2-487.92Типовой проект 902-2-487.92Типовой проект 902-2-487.92Типовой проект 902-2-487.92Типовой проект 902-2-487.92Типовой проект 902-2-487.92Типовой проект 902-2-487.92Типовой проект 902-2-487.92Типовой проект 902-2-487.92Типовой проект 902-2-487.92Типовой проект 902-2-487.92Типовой проект 902-2-487.92Типовой проект 902-2-487.92Типовой проект 902-2-487.92Типовой проект 902-2-487.92Типовой проект 902-2-487.92Типовой проект 902-2-487.92Типовой проект 902-2-487.92Типовой проект 902-2-487.92Типовой проект 902-2-487.92Типовой проект 902-2-487.92Типовой проект 902-2-487.92Типовой проект 902-2-487.92Типовой проект 902-2-487.92Типовой проект 902-2-487.92Типовой проект 902-2-487.92Типовой проект 902-2-487.92Типовой проект 902-2-487.92Типовой проект 902-2-487.92Типовой проект 902-2-487.92

© 2013 Ёшкин Кот :-) Карта сайта