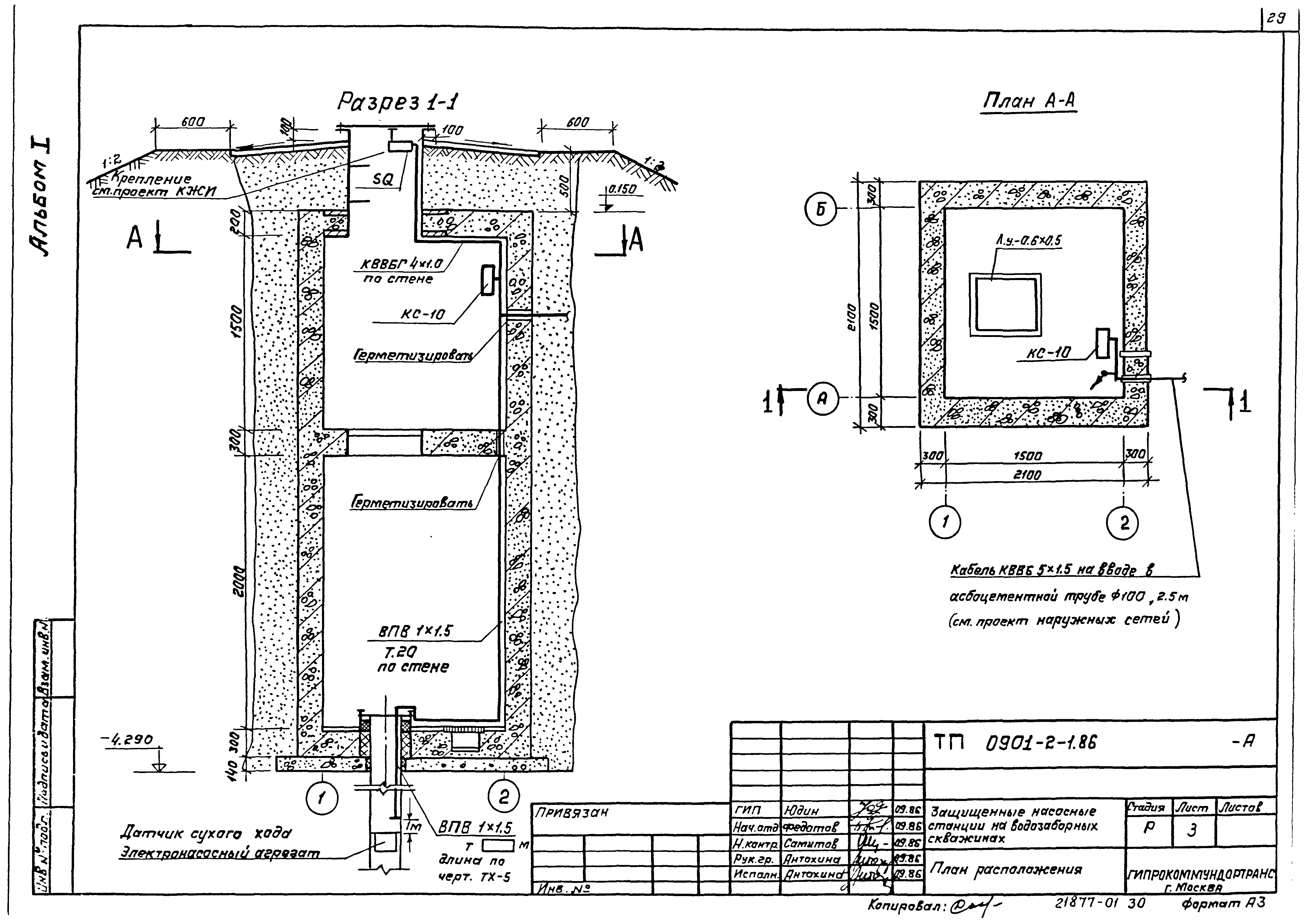
Скачать Типовой проект 0901-2-1.86 Альбом I. Пояснительная записка, генеральный план, архитектурно-строительные решения, конструкции железобетонные, технологическая и электротехническая части, автоматика, ведомости потребности в материалахДата актуализации: 10.08.2017 Типовой проект 0901-2-1.86
Альбом I. Пояснительная записка, генеральный план, архитектурно-строительные решения, конструкции железобетонные, технологическая и электротехническая части, автоматика, ведомости потребности в материалахОбозначение: | Типовой проект 0901-2-1.86 | Обозначение англ: | 0901-2-1.86 | Статус: | не определен законодательством | Название рус.: | Альбом I. Пояснительная записка, генеральный план, архитектурно-строительные решения, конструкции железобетонные, технологическая и электротехническая части, автоматика, ведомости потребности в материалах | Дата добавления в базу: | 01.09.2013 | Дата актуализации: | 05.05.2017 | Дата введения: | 06.11.1986 | Разработан: | Гипрокоммундортранс
| Утверждён: | 04.11.1986 Штаб гражданской обороны СССР (USSR Civil Defense Headquarters 22)
| Расположен в: |
|
                                
|