Информационная система
«Ёшкин Кот»

Скачать базу одним архивом
Скачать обновления
История создания базы
Карта сайта

Скачать Типовой проект 904-1-48 Альбом 3. Автоматизация и КИП

Дата актуализации: 10.08.2017

Типовой проект 904-1-48

Альбом 3. Автоматизация и КИП

Обозначение: Типовой проект 904-1-48
Обозначение англ: 904-1-48
Статус:действует
Название рус.:Альбом 3. Автоматизация и КИП
Дата добавления в базу:01.09.2013
Дата актуализации:05.05.2017
Дата введения:01.01.1982
Оглавление:Содержание альбома
Общие данные
Воздушный тракт. Функциональная схема автоматизации
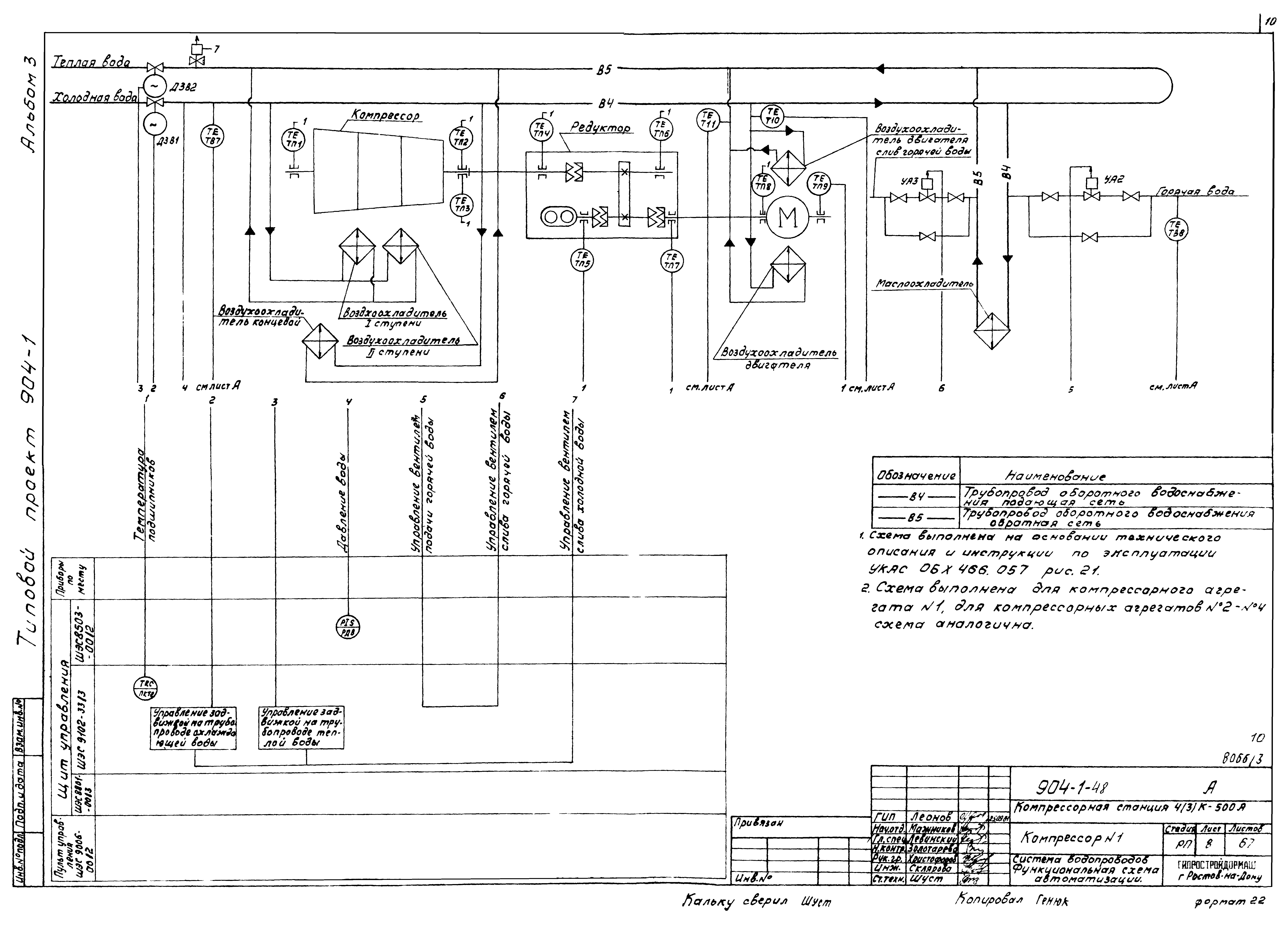
Система водопроводов. Функциональная схема автоматизации
Система маслопроводов. Функциональная схема автоматизации
Общестанционные проводки. Функциональная схема автоматизации
Принципиальная электрическая схема управления двигателем компрессора
Схема автоматизации одиночного агрегата
Принципиальная электрическая схема управления вентилем слива холодной воды
Принципиальная электрическая схема управления вентилем подогрева масла
Принципиальная электрическая схема управления вентилем аварийного слива масла
Принципиальная электрическая схема управления отопительными агрегатами
Принципиальная электрическая схема управления приточной установкой
Компрессор № 1. Схема внешних электрических и трубных проводок
Компрессорная станция. Схема внешних электрических и трубных проводок
Компрессор № 1. Щит 9102-3313 (шкаф 1,2). Схема подключения
Компрессор № 1. Щит 9102-3313 (шкаф 3). Схема подключения
Компрессор № 1. Щит 8503-0012, пульт 9006-0012. Схема подключения
Компрессорная станция. Щит 8801-0013. Схема подключения
Журнал кабельных проводок
Журнал импульсных проводок
Компрессорная станция. План расположения средств автоматизации и проводок
Компрессор № 1. План расположения средств автоматизации и проводок
Кнопочный пост управления ПКУ. Эскиз лицевой стороны панели
Установка звонка ЗВП-220
Установка поста управления ПКУ
Установка звонка ЗВП-220. Сборочный чертеж
Установка поста управления ПКУ. Сборочный чертеж
Разработан: Гипростройдормаш
Утверждён:19.11.1981 Минстройдормаш (Minstroydormash 31/81)
Расположен в:Техническая документация Строительство Справочные документы Типовые строительные конструкции, изделия и узлы Общероссийский строительный каталог Промышленные предприятия, здания и сооружения Здания и сооружения санитарно-технические Воздухоснабжение, вентиляция и кондиционирование воздуха Воздухоснабжение
Типовой проект 904-1-48Типовой проект 904-1-48Типовой проект 904-1-48Типовой проект 904-1-48Типовой проект 904-1-48Типовой проект 904-1-48Типовой проект 904-1-48Типовой проект 904-1-48Типовой проект 904-1-48Типовой проект 904-1-48Типовой проект 904-1-48Типовой проект 904-1-48Типовой проект 904-1-48Типовой проект 904-1-48Типовой проект 904-1-48Типовой проект 904-1-48Типовой проект 904-1-48Типовой проект 904-1-48Типовой проект 904-1-48Типовой проект 904-1-48Типовой проект 904-1-48Типовой проект 904-1-48Типовой проект 904-1-48Типовой проект 904-1-48Типовой проект 904-1-48Типовой проект 904-1-48Типовой проект 904-1-48Типовой проект 904-1-48Типовой проект 904-1-48Типовой проект 904-1-48Типовой проект 904-1-48Типовой проект 904-1-48Типовой проект 904-1-48Типовой проект 904-1-48Типовой проект 904-1-48Типовой проект 904-1-48Типовой проект 904-1-48Типовой проект 904-1-48Типовой проект 904-1-48Типовой проект 904-1-48Типовой проект 904-1-48Типовой проект 904-1-48Типовой проект 904-1-48Типовой проект 904-1-48Типовой проект 904-1-48Типовой проект 904-1-48Типовой проект 904-1-48Типовой проект 904-1-48Типовой проект 904-1-48Типовой проект 904-1-48Типовой проект 904-1-48Типовой проект 904-1-48Типовой проект 904-1-48Типовой проект 904-1-48Типовой проект 904-1-48Типовой проект 904-1-48Типовой проект 904-1-48Типовой проект 904-1-48Типовой проект 904-1-48Типовой проект 904-1-48Типовой проект 904-1-48Типовой проект 904-1-48Типовой проект 904-1-48Типовой проект 904-1-48Типовой проект 904-1-48Типовой проект 904-1-48Типовой проект 904-1-48Типовой проект 904-1-48Типовой проект 904-1-48Типовой проект 904-1-48

© 2013 Ёшкин Кот :-) Карта сайта