Информационная система
«Ёшкин Кот»

Скачать базу одним архивом
Скачать обновления
История создания базы
Карта сайта

Скачать Типовой проект 214-1-254.83 Альбом I. Архитектурно-строительные и технологические чертежи

Дата актуализации: 10.08.2017

Типовой проект 214-1-254.83

Альбом I. Архитектурно-строительные и технологические чертежи

Обозначение: Типовой проект 214-1-254.83
Обозначение англ: 214-1-254.83
Статус:не определен законодательством
Название рус.:Альбом I. Архитектурно-строительные и технологические чертежи
Дата добавления в базу:01.09.2013
Дата актуализации:05.05.2017
Дата введения:25.01.1984
Оглавление:Обложка
Титульный лист
Общие данные (начало)
Общие данные (продолжение)
Общие данные (окончание)
Схемы расположения фундаментов и элементов подпольных каналов
Сечения по фундаментам, продольным каналам и крыльцам
План
Разрез 1-1. Деталь ограждения радиаторов
Фасады А-Б,1-5,Б-А,5-1
Схема расположения перемычек
Схема расположения элементов покрытия
План кровли
Венткамера
Ведомость расхода стали
Фрагмент плана с теневым навесом (вариант)
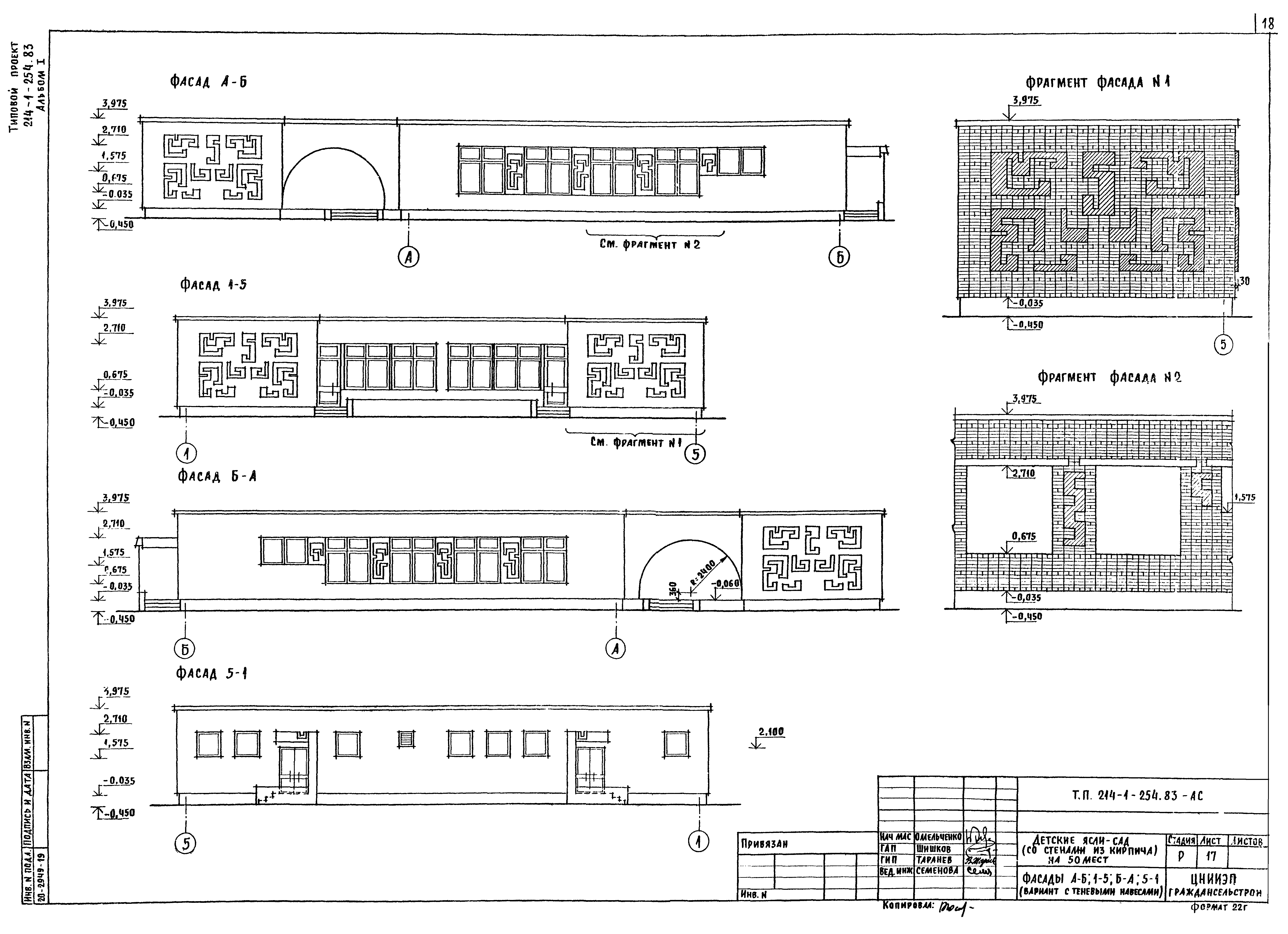
Фасады А-Б,1-5,Б-А,5-1 (вариант с теневыми навесами)
Фасады А-Б,1-5,Б-А,5-1 (вариант с чердачной крышей)
Фасады А-Б,1-5,Б-А,5-1 (вариант с чердачной крышей и теневыми навесами)
Схема расположения чердачной крыши (вариант)
Чертежи марки ТХ
Общие чертежи
Спецификация технологического оборудования
План 1го этажа с расстановкой технологического оборудования
Привязка сантехнических и электротехнических подводов к оборудованию
Разработан: ЦНИИЭП граждансельстрой
Утверждён:29.07.1982 Госгражданстрой (Gosgrazhdanstroy 198)
Расположен в:Техническая документация Строительство Справочные документы Типовые строительные конструкции, изделия и узлы Общероссийский строительный каталог Общественные здания для строительства в сельской местности Детские дошкольные учреждения Детские ясли-сады
Типовой проект 214-1-254.83Типовой проект 214-1-254.83Типовой проект 214-1-254.83Типовой проект 214-1-254.83Типовой проект 214-1-254.83Типовой проект 214-1-254.83Типовой проект 214-1-254.83Типовой проект 214-1-254.83Типовой проект 214-1-254.83Типовой проект 214-1-254.83Типовой проект 214-1-254.83Типовой проект 214-1-254.83Типовой проект 214-1-254.83Типовой проект 214-1-254.83Типовой проект 214-1-254.83Типовой проект 214-1-254.83Типовой проект 214-1-254.83Типовой проект 214-1-254.83Типовой проект 214-1-254.83Типовой проект 214-1-254.83Типовой проект 214-1-254.83Типовой проект 214-1-254.83Типовой проект 214-1-254.83Типовой проект 214-1-254.83Типовой проект 214-1-254.83Типовой проект 214-1-254.83Типовой проект 214-1-254.83

© 2013 Ёшкин Кот :-) Карта сайта