| ||||||||||||||||||||||||||||
Скачать Серия ИИ-04-6 Выпуск 5. Часть 2. Диафрагмы жесткости связевого каркаса. Арматурные изделия. Рабочие чертежиДата актуализации: 10.08.2017
|
| Обозначение: | Серия ИИ-04-6 |
| Обозначение англ: | Series ИИ-04-6 |
| Статус: | не действует |
| Название рус.: | Выпуск 5. Часть 2. Диафрагмы жесткости связевого каркаса. Арматурные изделия. Рабочие чертежи |
| Дата добавления в базу: | 01.09.2013 |
| Дата актуализации: | 05.05.2017 |
| Дата окончания срока действия: | 01.04.1982 |
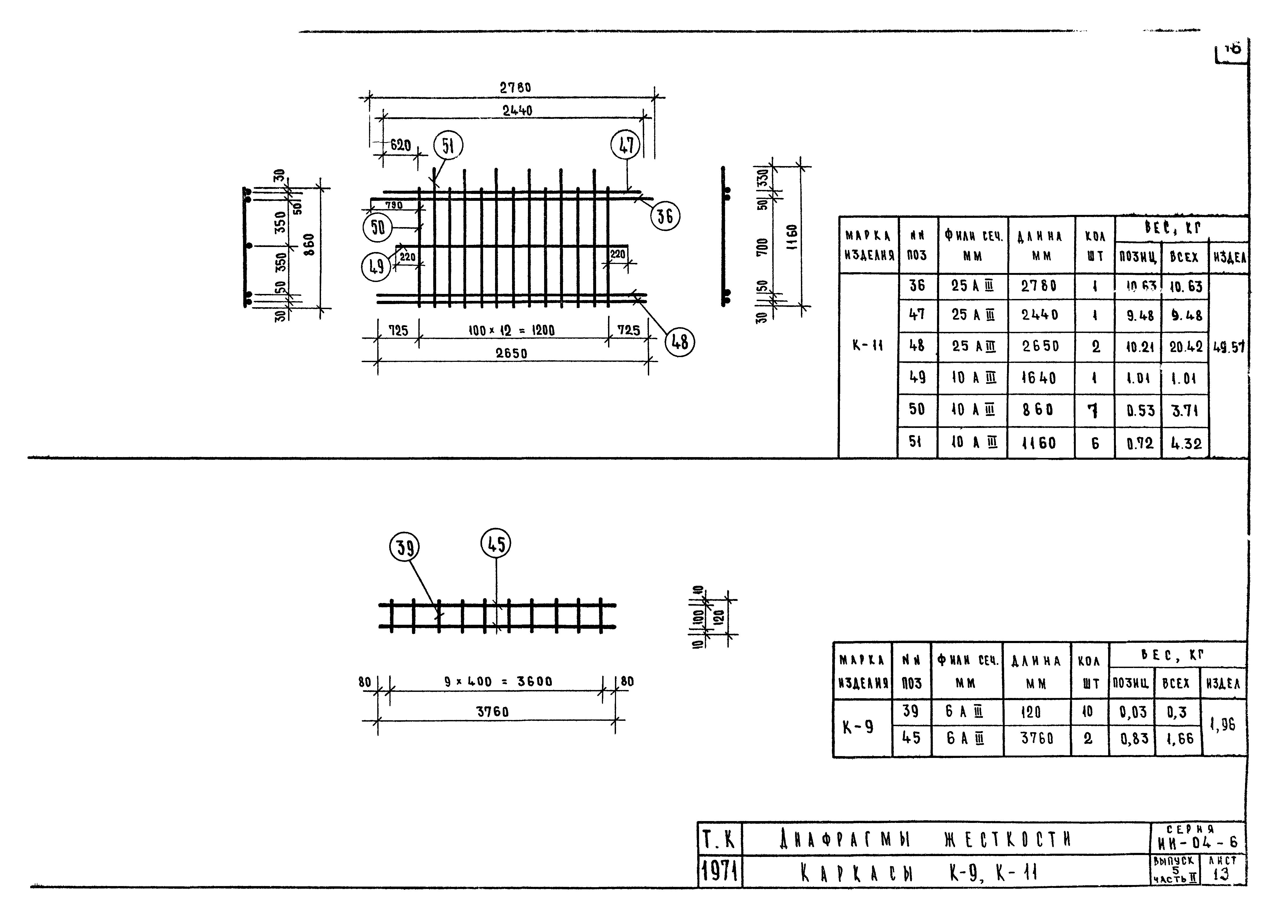
| Оглавление: | Перечень серий и выпусков Содержание Пояснительная записка Сетки С-1,С-2 Сетки С-3,С-4 Сетки С-5,С-6 Сетки С-7,С-8 Сетки С-9,С-10 Сетки С-11,С-12 Сетки С-13л,С-13п,С-14л,С-14п Сетки С-15л,С-15п,С-16л,С-16п Сетки С-17л,С-17п,С-18л,С-18п Каркасы К-1,К-2,К-3,К-4 Каркасы К-5,К-6,К-7,К-8 Каркасы К-9,К-11 Каркасы К-10,К-12,К-13 Каркасы К-14,К-15 Каркасы К-16,К-17 Петли П-4,П-2. Отдельные стержни ОС-1,ОС-2,ОС-3,ОС-4,ОС-5,ОС-6,ОС-7 Объемные каркасы ОК-1 и ОК-2 Объемные каркасы ОК-3 и ОК-4 Объемные каркасы ОК-5 и ОК-6 Объемный каркас ОМД-1 Объемный каркас ОМД-2 Объемный каркас ОМД-3 |
| Разработан: | НИИЖБ Госстроя СССР ЦНИИЭП торгово-бытовых зданий и туристских комплексов |
| Утверждён: | 28.01.1972 Государственный комитет по гражданскому строительству и архитектуре при Госстрое СССР (9) |
| Расположен в: | |
| Чем заменён: |


























