Информационная система
«Ёшкин Кот»

Скачать базу одним архивом
Скачать обновления
История создания базы
Карта сайта

Скачать Шифр 182-82 Выпуск 6-1. Монтажные узлы стен и перекрытий. Рабочие чертежи

Дата актуализации: 10.08.2017

Шифр 182-82

Выпуск 6-1. Монтажные узлы стен и перекрытий. Рабочие чертежи

Обозначение: Шифр 182-82
Обозначение англ: 182-82
Статус:не действует
Название рус.:Выпуск 6-1. Монтажные узлы стен и перекрытий. Рабочие чертежи
Дата добавления в базу:01.09.2013
Дата актуализации:05.05.2017
Область применения:Выпуск содержит монтажные узлы наружных несущих торцевых, самонесущих продольных и внутренних стеновых панелей, панелей перекрытий, предназначенных для применения при проектировании и строительстве вспомогательных зданий промышленных предприятий с высотой этажа 3,0 м и шагом поперечных несущих стен 6,0 м
Оглавление:182-82.6-1-00 Содержание
182-82.6-1-00ТО Техническое описание
182-82.6-1-01 Узлы 1,2,3
182-82.6-1-02 Узлы 4,5
182-82.6-1-03 Узел 6,6н
182-82.6-1-04 Узлы 7,8
182-82.6-1-05 Узлы 9,10
182-82.6-1-06 Узлы 11,12
182-82.6-1-07 Узел 13,13н
182-82.6-1-08 Узлы 14,15,16,17
182-82.6-1-09 Узлы 18,19,20,21
182-82.6-1-10 Узлы 22,23,24
182-82.6-1-11 Узлы 25,26,27,28
182-82.6-1-12 Узлы 29,30
182-82.6-1-13 Узлы 31,32
182-82.6-1-14 Узлы 33,33н,34
182-82.6-1-15 Узлы 35,36
182-82.6-1-16 Узлы 37,38
182-82.6-1-17 Узлы 39,40,41
182-82.6-1-18 Узлы 42,43
182-82.6-1-19 Узлы 44,45
182-82.6-1-20 Узлы 46,47
182-82.6-1-21 Узлы 48,49
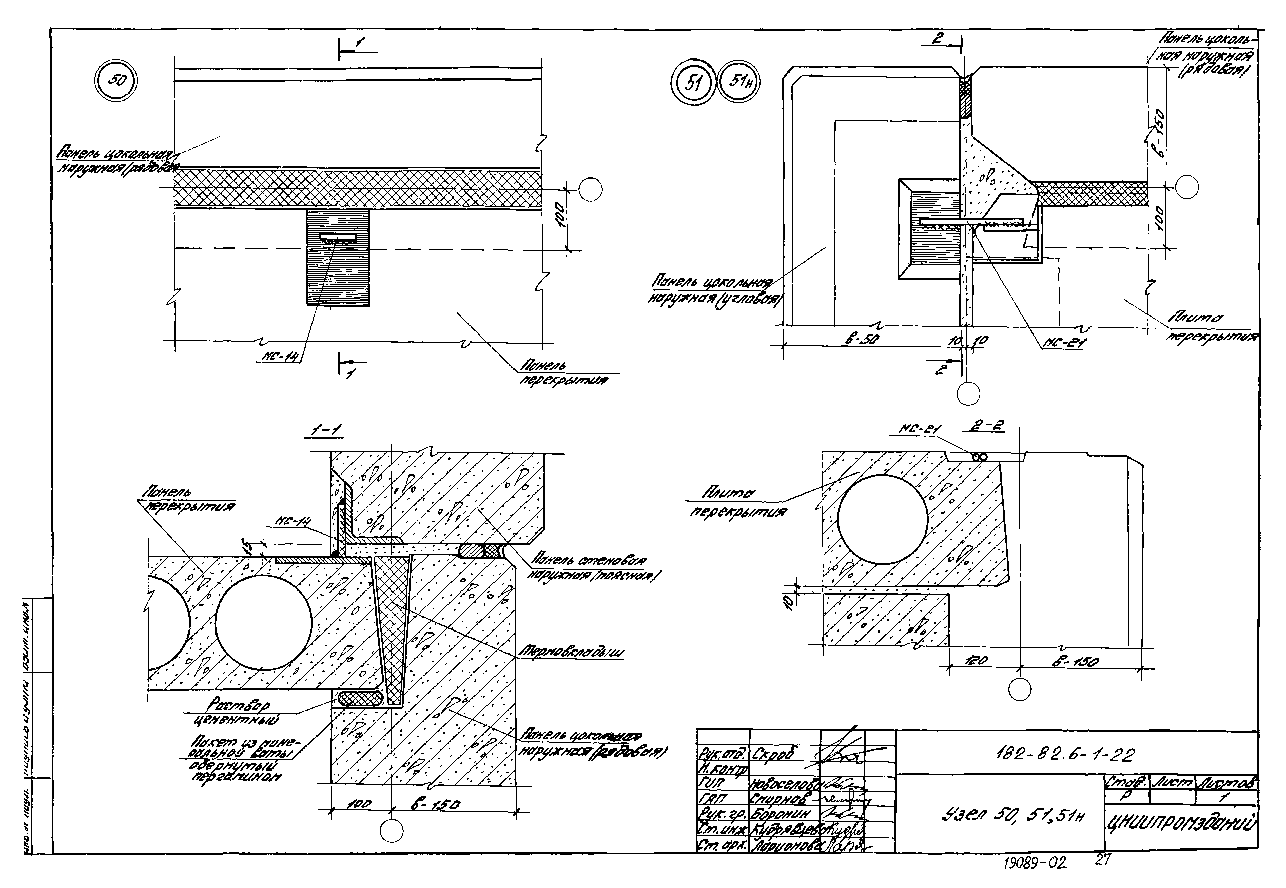
182-82.6-1-22 Узлы 50,51,51н
182-82.6-1-23 Узлы 52,53
182-82.6-1-24 Узлы 54,55,56
182-82.6-1-25 Узлы 57,58,59,60
182-82.6-1-26 Узлы 61,62,63
182-82.6-1-27 Узлы 64,65
182-82.6-1-28 Узлы 66,67,68
182-82.6-1-29 Узлы 69,70,71
182-82.6-1-30 Узлы 72,73
182-82.6-1-31 Узел 74
182-82.6-1-32 Узел 75
182-82.6-1-33 Узлы 76,77,78,79
182-82.6-1-34 Узлы 80,80н,81
182-82.6-1-35 Узлы 82,83,84,85
182-82.6-1-36 Узлы 86,87,88,89
182-82.6-1-37 Узлы 90,91,92
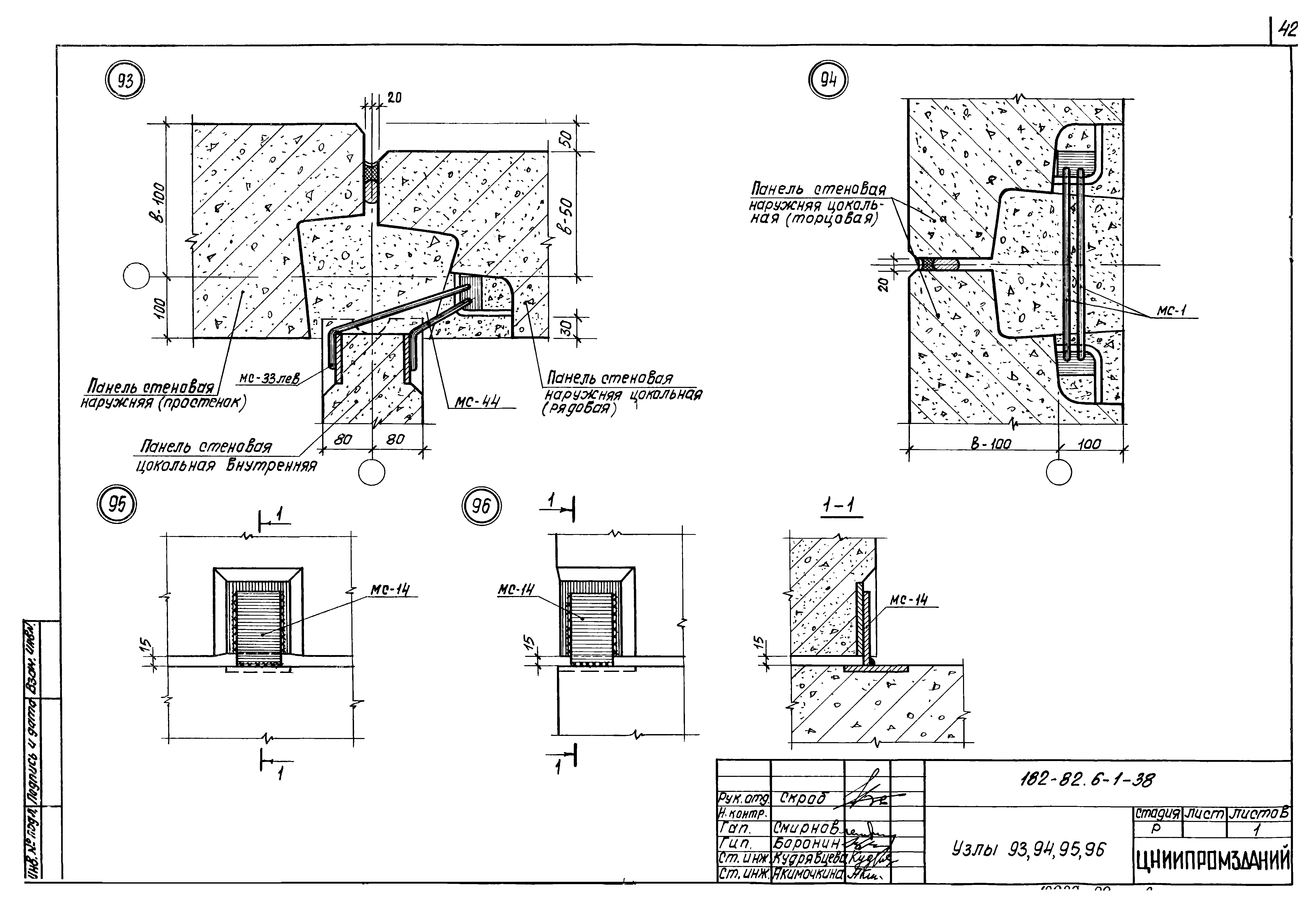
182-82.6-1-38 Узлы 93,94,95,96
182-82.6-1-39 Узлы 97,97н,987,98н,99,100
182-82.6-1-40 Узлы 101,101н,102
182-82.6-1-41 Узлы 103,104
182-82.6-1-42 Узлы 105,105н,106,107,108
182-82.6-1-43 Узлы 109,109н,110
182-82.6-1-44 Узлы 111,112
182-82.6-1-45 Узлы 113,114
182-82.6-1-46 Узлы 115,116,117,118
182-82.6-1-47 Узлы 119,120
182-82.6-1-48 Узлы 121,122
182-82.6-1-49 Герметизация стыков
182-82.6-1-50 Горизонтальный стык при полосовой разрезке наружных стен
182-82.6-1-51 Спецификация на монтажные узлы
Разработан: ЦНИИпромзданий
КБ по железобетону им. А.А. Якушева
Утверждён:31.05.1983 Госстрой СССР (Государственный комитет Совета Министров СССР по делам строительства) (USSR Gosstroy 18)
Расположен в:Техническая документация Строительство Справочные документы Типовые строительные конструкции, изделия и узлы Общероссийский строительный каталог Строительные конструкции, изделия и узлы зданий и сооружений для всех видов строительства Конструкции, изделия и узлы зданий Ограждающие конструкции Стены наружные Панели (бетонные и железобетонные)
Нормативные ссылки:
Шифр 182-82Шифр 182-82Шифр 182-82Шифр 182-82Шифр 182-82Шифр 182-82Шифр 182-82Шифр 182-82Шифр 182-82Шифр 182-82Шифр 182-82Шифр 182-82Шифр 182-82Шифр 182-82Шифр 182-82Шифр 182-82Шифр 182-82Шифр 182-82Шифр 182-82Шифр 182-82Шифр 182-82Шифр 182-82Шифр 182-82Шифр 182-82Шифр 182-82Шифр 182-82Шифр 182-82Шифр 182-82Шифр 182-82Шифр 182-82Шифр 182-82Шифр 182-82Шифр 182-82Шифр 182-82Шифр 182-82Шифр 182-82Шифр 182-82Шифр 182-82Шифр 182-82Шифр 182-82Шифр 182-82Шифр 182-82Шифр 182-82Шифр 182-82Шифр 182-82Шифр 182-82Шифр 182-82Шифр 182-82Шифр 182-82Шифр 182-82Шифр 182-82Шифр 182-82Шифр 182-82Шифр 182-82Шифр 182-82Шифр 182-82Шифр 182-82Шифр 182-82Шифр 182-82Шифр 182-82Шифр 182-82Шифр 182-82Шифр 182-82Шифр 182-82Шифр 182-82Шифр 182-82

© 2013 Ёшкин Кот :-) Карта сайта