Информационная система
«Ёшкин Кот»

Скачать базу одним архивом
Скачать обновления
История создания базы
Карта сайта

Скачать Серия 2.800-2 Выпуск 4. Деревянные конструкции крыш

Дата актуализации: 10.08.2017

Серия 2.800-2

Выпуск 4. Деревянные конструкции крыш

Обозначение: Серия 2.800-2
Обозначение англ: Series 2.800-2
Статус:не действует
Название рус.:Выпуск 4. Деревянные конструкции крыш
Дата добавления в базу:01.09.2013
Дата актуализации:05.05.2017
Дата введения:19.02.1969
Дата окончания срока действия:01.05.1978
Оглавление:Пояснительная записка
КД-1 Стропила. Расчетные и маркировочные схемы. Ключ для подбора стропил и мауэрлатов
КД-2 Стропила. Комплектовочная ведомость и расход материалов
КД-3 Стропила. Марки С7,5-1,С7,5-2,С7,5-3
КД-4 Стропила. Марки Ф3-1,Ф3-2
КД-5 Стропила. Марки Ф4,5-1,Ф4,5-2,Ф4,5-3
КД-6 Стропила. Марки Ф6-1,Ф6-2,Ф6-3
КД-7 Стропила. Марки Ф3-1,5-1
КД-8 Стропила. Марки Ф3-1,5-2,Ф3-1,5-3
КД-9 Стропила. Марки Ф3-1,5-4,Ф3-1,5-5,Ф3-1,5-6
КД-10 Стропила. Марки Ф6-1,5-1,Ф6-1,6-2,Ф6-1,5-3
КД-11 Стропила. Марки Ф3-1,7-1,Ф3-1,7-2,Ф3-1,7-2,Ф3-1,7-3
КД-12 Стропила. Марки Ф6-1,7-1,Ф6-1,7-2,Ф6-1,7-3
КД-13 Стропила. Марки Н3-1,Н3-2,Н3-3,Н3-4,Н4.5-1,Н4.5-2,Н4.5-3,Н4.5-4,Н4.5-5
КД-14 Стропила. Марки Н3-5,Н3-6,Н3-7,Н5.8-1,Н5.8-2,Н5.8-3
КД-15 Стропила. Деревянные элементы
КД-16 Стропила. Деревянные элементы
КД-17 Стропила. Деревянные элементы
КД-18 Стропила. Деревянные элементы
КД-19 Стропила. Деревянные элементы
КД-20 Стропила. Деревянные элементы
КД-21 Стропила. Спецификация деревянных элементов
КД-22 Стропила. Спецификация деревянных элементов
КД-23 Стропила. Спецификация деревянных элементов
КД-24 Стропила. Спецификация деревянных элементов
КД-25 Стропила. Спецификация деревянных элементов
КД-26 Стропила. Спецификация деревянных элементов
КД-27 Стропила. Спецификация стальных элементов
КД-28И Подстропильные конструкции. Маркировочная схема. Ключ для подбора подстропильных конструкций. Расход материалов
КД-29И Подстропильные конструкции. Марки Д1С-1,Д1С-2,Д1С-3,Д1С-4,Д1С-5,Д1С-6,Д1С-7,Д1С-8 и Д1С-9
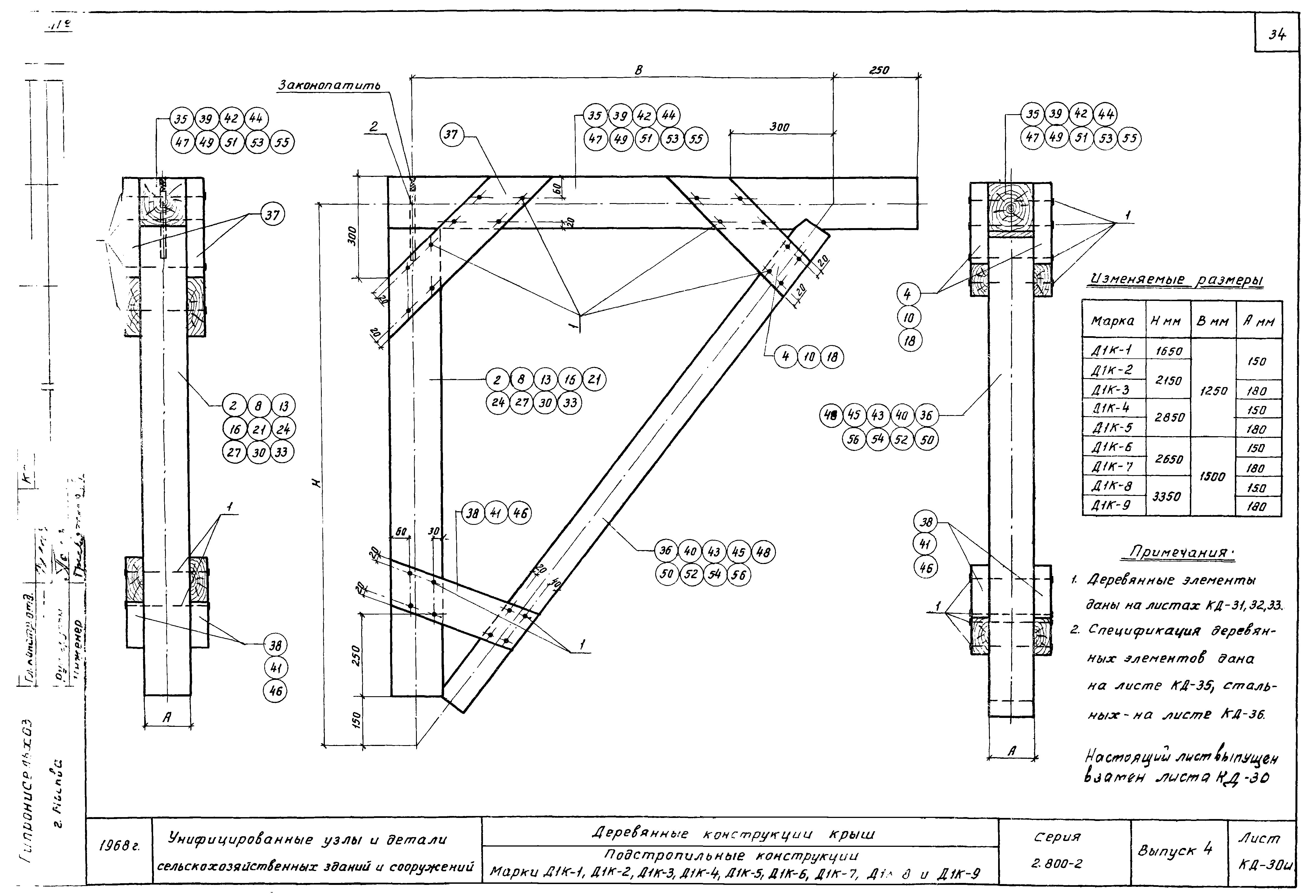
КД-30И Подстропильные конструкции. Марки Д1К-1,Д1К-2,Д1К-3,Д1К-4,Д1К-5,Д1К-6,Д1К-7,Д1К-8 и Д1К-9
КД-31И Подстропильные конструкции. Деревянные элементы
КД-32И Подстропильные конструкции. Деревянные элементы
КД-33И Подстропильные конструкции. Марки Д2-1,Д2-2,Д2-3,Д2-4,Д2-5,Д2-6,Д2-7 и деревянные элементы
КД-34И Подстропильные конструкции. Спецификация деревянных элементов
КД-35И Подстропильные конструкции. Спецификация деревянных элементов
КД-36И Подстропильные конструкции. Спецификация деревянных и стальных элементов
Разработан: ГипроНИсельхоз (Институт Гипронисельхоз )
Утверждён:19.02.1969 Главсельстройпроект Минсельхоза СССР (Glavselstroyproject, USSR Minselkhoz 15)
Расположен в:Техническая документация Строительство Справочные документы Типовые строительные конструкции, изделия и узлы Общероссийский строительный каталог Сельскохозяйственные предприятия, здания и сооружения Разные сельскохозяйственные здания и сооружения Конструкции, изделия, узлы и детали Строительные конструкции, изделия и узлы зданий и сооружений для всех видов строительства Конструкции и изделия сооружений и оборудования зданий Надземные сооружения Узлы и детали сооружений
Серия 2.800-2Серия 2.800-2Серия 2.800-2Серия 2.800-2Серия 2.800-2Серия 2.800-2Серия 2.800-2Серия 2.800-2Серия 2.800-2Серия 2.800-2Серия 2.800-2Серия 2.800-2Серия 2.800-2Серия 2.800-2Серия 2.800-2Серия 2.800-2Серия 2.800-2Серия 2.800-2Серия 2.800-2Серия 2.800-2Серия 2.800-2Серия 2.800-2Серия 2.800-2Серия 2.800-2Серия 2.800-2Серия 2.800-2Серия 2.800-2Серия 2.800-2Серия 2.800-2Серия 2.800-2Серия 2.800-2Серия 2.800-2Серия 2.800-2Серия 2.800-2Серия 2.800-2Серия 2.800-2Серия 2.800-2Серия 2.800-2Серия 2.800-2Серия 2.800-2

© 2013 Ёшкин Кот :-) Карта сайта