Информационная система
«Ёшкин Кот»

Скачать базу одним архивом
Скачать обновления
История создания базы
Карта сайта

Скачать Серия 1.136.5-17 Окна и балконные двери деревянные с тройным остеклением для жилых зданий

Дата актуализации: 10.08.2017

Серия 1.136.5-17

Окна и балконные двери деревянные с тройным остеклением для жилых зданий

Обозначение: Серия 1.136.5-17
Обозначение англ: Series 1.136.5-17
Статус:не действует
Название рус.:Окна и балконные двери деревянные с тройным остеклением для жилых зданий
Дата добавления в базу:01.09.2013
Дата актуализации:05.05.2017
Дата введения:01.07.1981
Дата окончания срока действия:01.06.1989
Оглавление:Содержание
1.136.5-17.00.00.000 ПЗ Пояснительная записка
1.136.5-17.01.00.000 Блок оконный. Спецификация
1.136.5-17.01.00.000 СБ Блок оконный. Сборочный чертеж
1.136.5-17.01.01.000 Коробка. Спецификация
1.136.5-17.01.01.000 СБ Коробка. Сборочный чертеж
1.136.5-17.01.01.100 Рамка. Спецификация
1.136.5-17.01.01.100 СБ Рамка. Сборочный чертеж
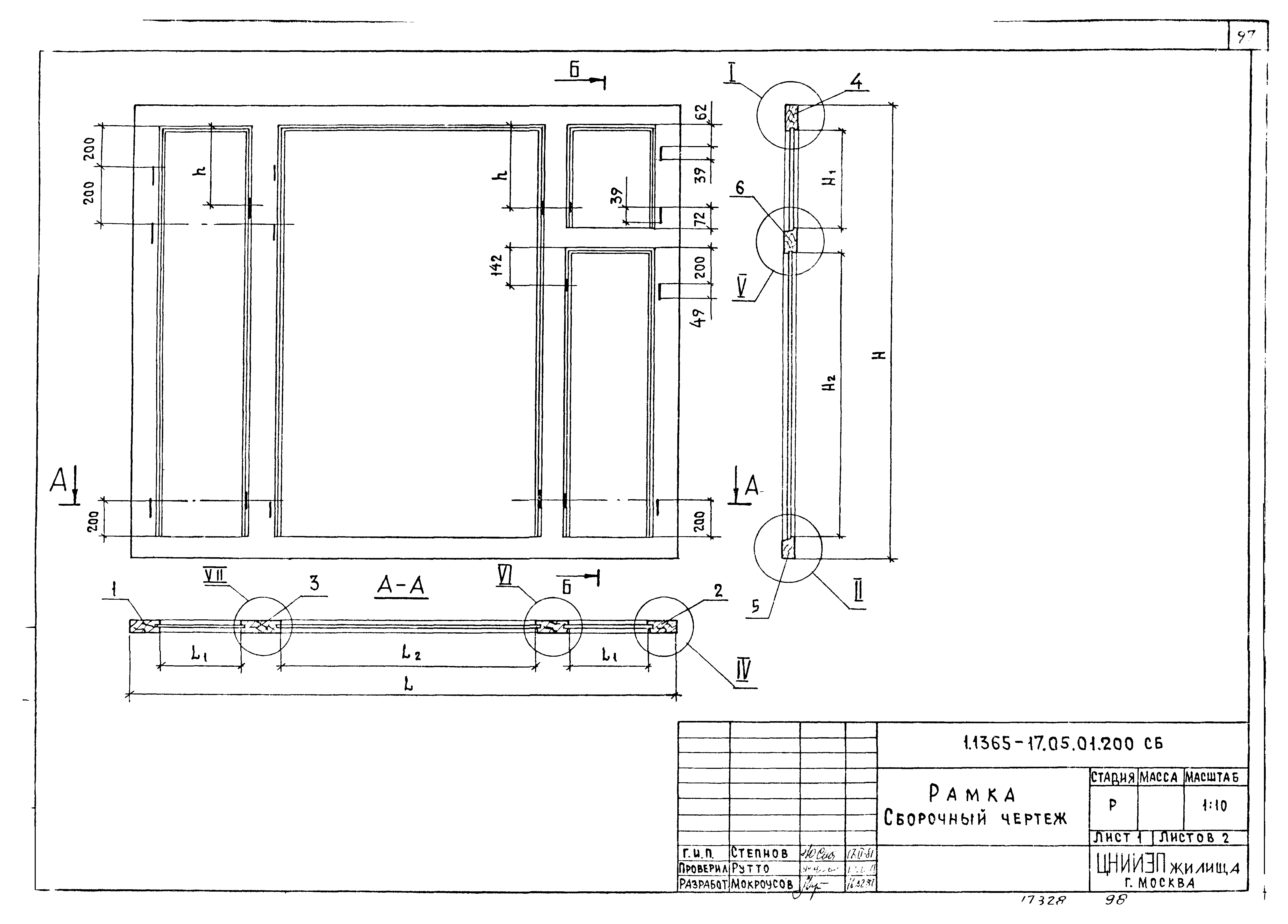
1.136.5-17.01.01.200 Рамка. Спецификация
1.136.5-17.01.01.200 СБ Рамка. Сборочный чертеж
1.136.5-17.01.02.000 Переплет правый. Спецификация
1.136.5-17.01.02.000 СБ Переплет правый. Сборочный чертеж
1.136.5-17.01.03.000 Створка правая. Спецификация
1.136.5-17.01.03.000 СБ Створка правая. Сборочный чертеж
1.136.5-17.02.00.000 Блок оконный. Спецификация
1.136.5-17.02.00.000 СБ Блок оконный. Сборочный чертеж
1.136.5-17.02.01.000 Коробка. Спецификация
1.136.5-17.02.01.000 СБ Коробка. Сборочный чертеж
1.136.5-17.02.01.100 Рамка. Спецификация
1.136.5-17.02.01.100 СБ Рамка. Сборочный чертеж
1.136.5-17.02.01.200 Рамка. Спецификация
1.136.5-17.02.01.200 СБ Рамка. Сборочный чертеж
1.136.5-17.02.02.000 Переплет форточный. Спецификация
1.136.5-17.02.02.000 СБ Переплет форточный. Сборочный чертеж
1.136.5-17.02.03.000 Створка форточная. Спецификация
1.136.5-17.02.03.000 СБ Створка форточная. Сборочный чертеж
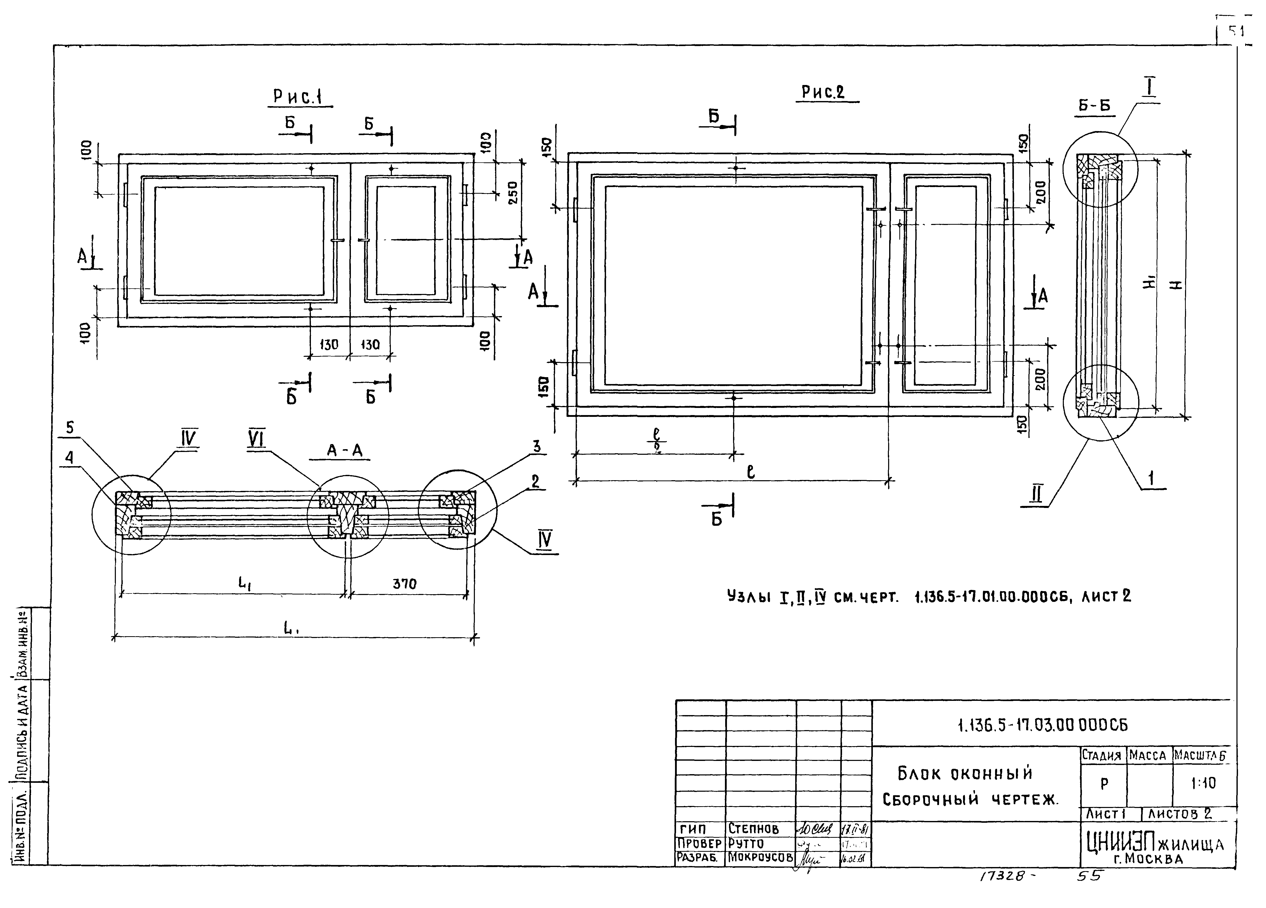
1.136.5-17.03.00.000 Блок оконный. Спецификация
1.136.5-17.03.00.000 СБ Блок оконный. Сборочный чертеж
1.136.5-17.03.01.000 Коробка. Спецификация
1.136.5-17.03.01.000 СБ Коробка. Сборочный чертеж
1.136.5-17.03.01.100 Рамка. Спецификация
1.136.5-17.03.01.100 СБ Рамка. Сборочный чертеж
1.136.5-17.03.01.200 Рамка. Спецификация
1.136.5-17.03.01.200 СБ Рамка. Сборочный чертеж
1.136.5-17.03.02.000 Переплет левый. Спецификация
1.136.5-17.03.02.000 СБ Переплет левый. Сборочный чертеж
1.136.5-17.03.03.000 Створка левая. Спецификация
1.136.5-17.03.03.000 СБ Створка левая. Сборочный чертеж
1.136.5-17.04.00.000 Блок оконный. Спецификация
1.136.5-17.04.00.000 СБ Блок оконный. Сборочный чертеж
1.136.5-17.04.01.000 Коробка. Спецификация
1.136.5-17.04.01.000 СБ Коробка. Сборочный чертеж
1.136.5-17.04.01.100 Рамка. Спецификация
1.136.5-17.04.01.100 СБ Рамка. Сборочный чертеж
1.136.5-17.04.01.200 Рамка. Спецификация
1.136.5-17.04.01.200 СБ Рамка. Сборочный чертеж
1.136.5-17.05.00.000 Блок оконный. Спецификация
1.136.5-17.05.00.000 СБ Блок оконный. Сборочный чертеж
1.136.5-17.05.01.000 Коробка. Спецификация
1.136.5-17.05.01.000 СБ Коробка. Сборочный чертеж
1.136.5-17.05.01.100 Рамка. Спецификация
1.136.5-17.05.01.100 СБ Рамка. Сборочный чертеж
1.136.5-17.05.01.200 Рамка. Спецификация
1.136.5-17.05.01.200 СБ Рамка. Сборочный чертеж
1.136.5-17.06.00.000 Дверь балконная. Спецификация
1.136.5-17.06.00.000 СБ Дверь балконная. Сборочный чертеж
1.136.5-17.06.01.000 Коробка. Спецификация
1.136.5-17.06.01.000 СБ Коробка. Сборочный чертеж
1.136.5-17.06.01.100 Рамка. Спецификация
1.136.5-17.06.01.100 СБ Рамка. Сборочный чертеж
1.136.5-17.06.01.200 Рамка. Спецификация
1.136.5-17.06.01.200 СБ Рамка. Сборочный чертеж
1.136.5-17.06.02.000 Полотно. Спецификация
1.136.5-17.06.02.000 СБ Полотно. Сборочный чертеж
1.136.5-17.06.03.000 Полотно. Спецификация
1.136.5-17.06.03.000 СБ Полотно. Сборочный чертеж
Разработан: ЦНИИЭП жилища
Утверждён:16.06.1981 Госкомитет по гражданскому строительству и архитектуре при Госстрое СССР (National Committee on Nonindustrial Construction and Architecture, USSR Gosstroy 186)
Расположен в:Техническая документация Строительство Справочные документы Типовые строительные конструкции, изделия и узлы Общероссийский строительный каталог Строительные конструкции, изделия и узлы зданий и сооружений для всех видов строительства Конструкции, изделия и узлы зданий Ограждающие конструкции Окна и балконные двери
Чем заменён:
Серия 1.136.5-17Серия 1.136.5-17Серия 1.136.5-17Серия 1.136.5-17Серия 1.136.5-17Серия 1.136.5-17Серия 1.136.5-17Серия 1.136.5-17Серия 1.136.5-17Серия 1.136.5-17Серия 1.136.5-17Серия 1.136.5-17Серия 1.136.5-17Серия 1.136.5-17Серия 1.136.5-17Серия 1.136.5-17Серия 1.136.5-17Серия 1.136.5-17Серия 1.136.5-17Серия 1.136.5-17Серия 1.136.5-17Серия 1.136.5-17Серия 1.136.5-17Серия 1.136.5-17Серия 1.136.5-17Серия 1.136.5-17Серия 1.136.5-17Серия 1.136.5-17Серия 1.136.5-17Серия 1.136.5-17Серия 1.136.5-17Серия 1.136.5-17Серия 1.136.5-17Серия 1.136.5-17Серия 1.136.5-17Серия 1.136.5-17Серия 1.136.5-17Серия 1.136.5-17Серия 1.136.5-17Серия 1.136.5-17Серия 1.136.5-17Серия 1.136.5-17Серия 1.136.5-17Серия 1.136.5-17Серия 1.136.5-17Серия 1.136.5-17Серия 1.136.5-17Серия 1.136.5-17Серия 1.136.5-17Серия 1.136.5-17Серия 1.136.5-17Серия 1.136.5-17Серия 1.136.5-17Серия 1.136.5-17Серия 1.136.5-17Серия 1.136.5-17Серия 1.136.5-17Серия 1.136.5-17Серия 1.136.5-17Серия 1.136.5-17Серия 1.136.5-17Серия 1.136.5-17Серия 1.136.5-17Серия 1.136.5-17Серия 1.136.5-17Серия 1.136.5-17Серия 1.136.5-17Серия 1.136.5-17Серия 1.136.5-17Серия 1.136.5-17Серия 1.136.5-17Серия 1.136.5-17Серия 1.136.5-17Серия 1.136.5-17Серия 1.136.5-17Серия 1.136.5-17Серия 1.136.5-17Серия 1.136.5-17Серия 1.136.5-17Серия 1.136.5-17Серия 1.136.5-17Серия 1.136.5-17Серия 1.136.5-17Серия 1.136.5-17Серия 1.136.5-17Серия 1.136.5-17Серия 1.136.5-17Серия 1.136.5-17Серия 1.136.5-17Серия 1.136.5-17Серия 1.136.5-17Серия 1.136.5-17Серия 1.136.5-17Серия 1.136.5-17Серия 1.136.5-17Серия 1.136.5-17Серия 1.136.5-17Серия 1.136.5-17Серия 1.136.5-17Серия 1.136.5-17Серия 1.136.5-17Серия 1.136.5-17Серия 1.136.5-17Серия 1.136.5-17Серия 1.136.5-17Серия 1.136.5-17Серия 1.136.5-17Серия 1.136.5-17Серия 1.136.5-17Серия 1.136.5-17Серия 1.136.5-17Серия 1.136.5-17Серия 1.136.5-17Серия 1.136.5-17Серия 1.136.5-17Серия 1.136.5-17Серия 1.136.5-17

© 2013 Ёшкин Кот :-) Карта сайта