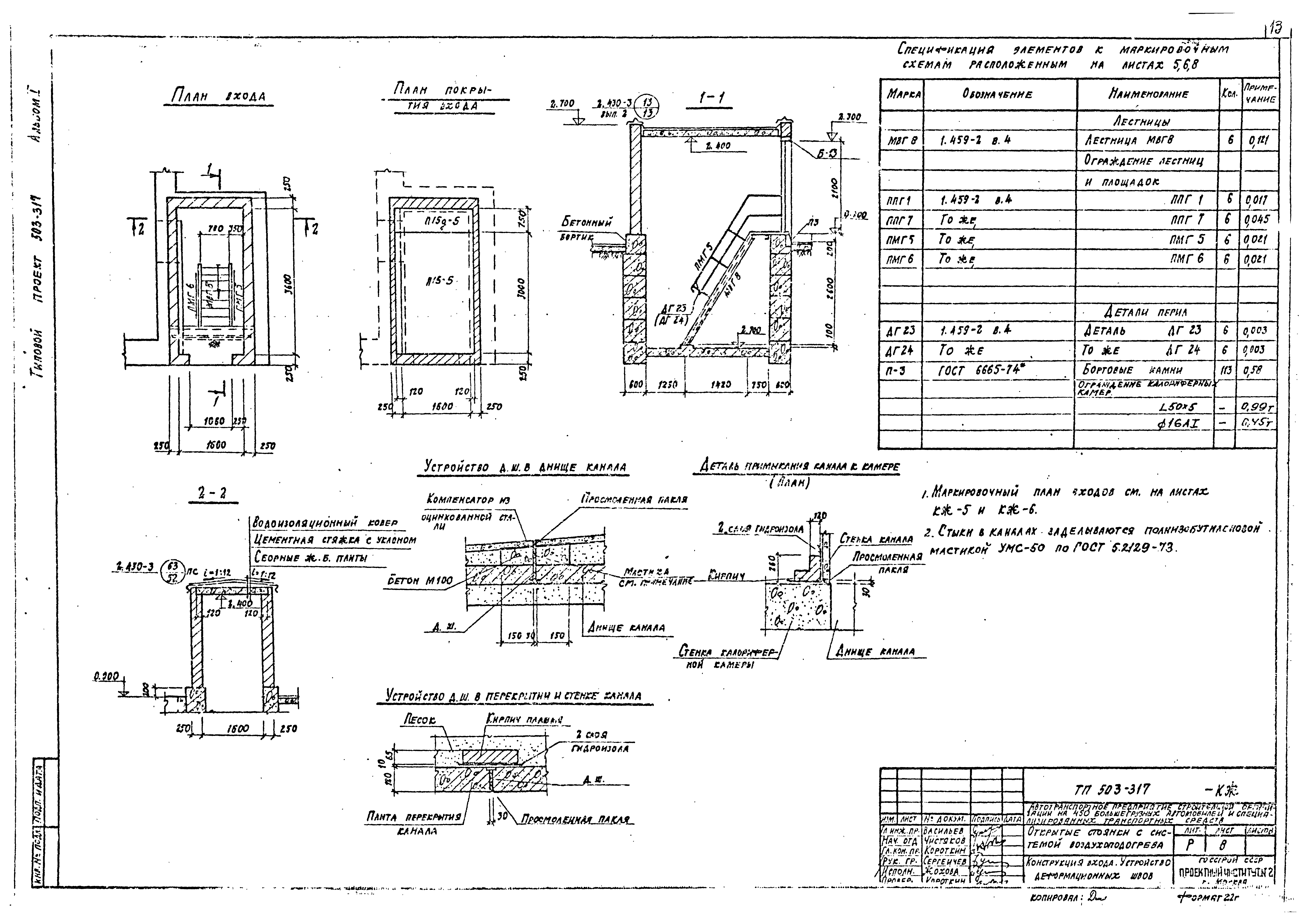
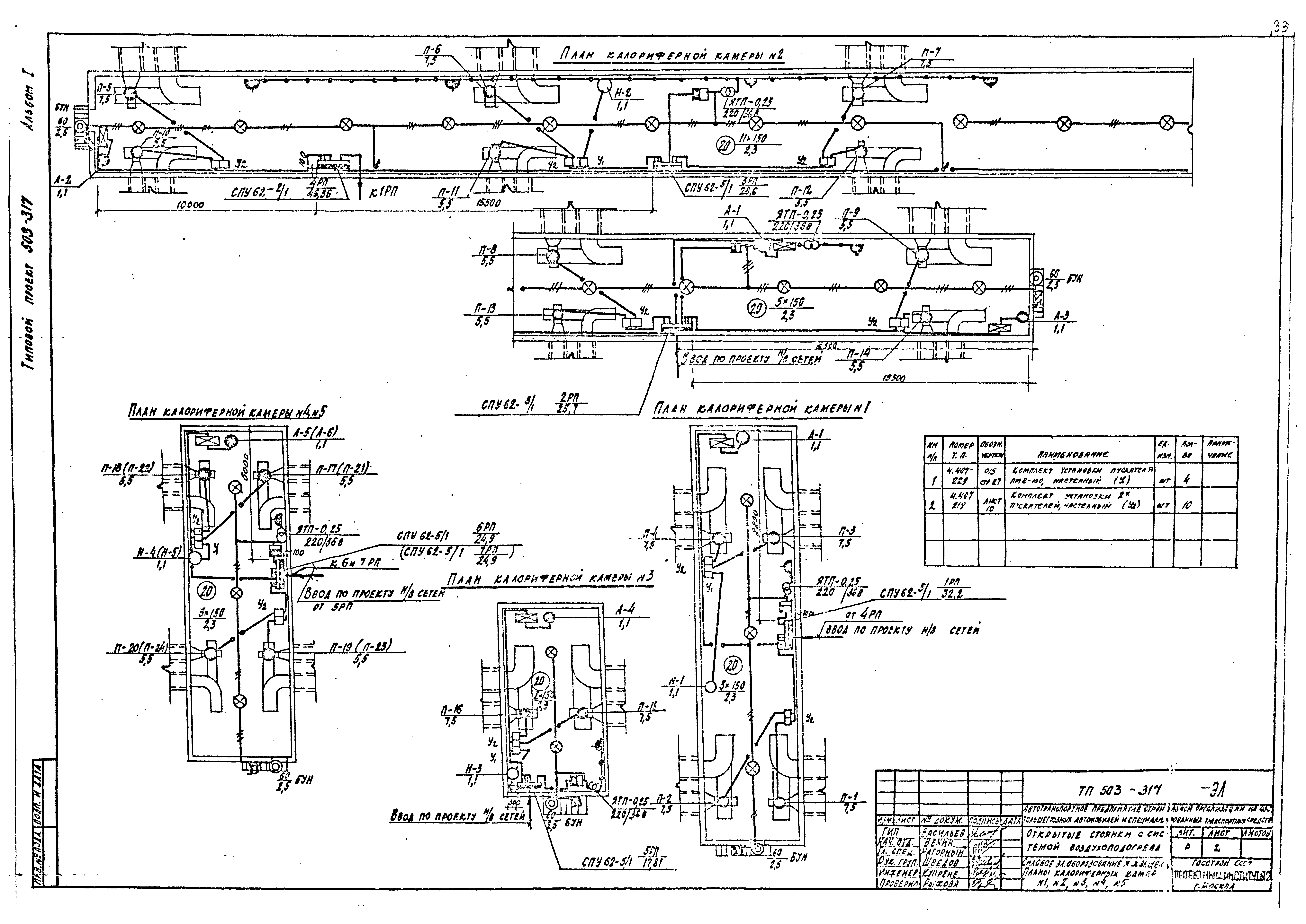
Скачать Типовой проект 503-317 Альбом I. Технологические решения, конструкции железобетонные, санитарно-техническая часть, электротехническая часть, автоматикаДата актуализации: 10.08.2017 Типовой проект 503-317
Альбом I. Технологические решения, конструкции железобетонные, санитарно-техническая часть, электротехническая часть, автоматикаОбозначение: | Типовой проект 503-317 | Обозначение англ: | 503-317 | Статус: | не действует | Название рус.: | Альбом I. Технологические решения, конструкции железобетонные, санитарно-техническая часть, электротехническая часть, автоматика | Дата добавления в базу: | 01.09.2013 | Дата актуализации: | 05.05.2017 | Дата введения: | 01.03.1983 | Разработан: | Проектный институт № 2 Госстроя СССР
| Утверждён: | 25.06.1979 Госстрой СССР (Государственный комитет Совета Министров СССР по делам строительства) (USSR Gosstroy 27)
| Расположен в: |
|
                                                       
|