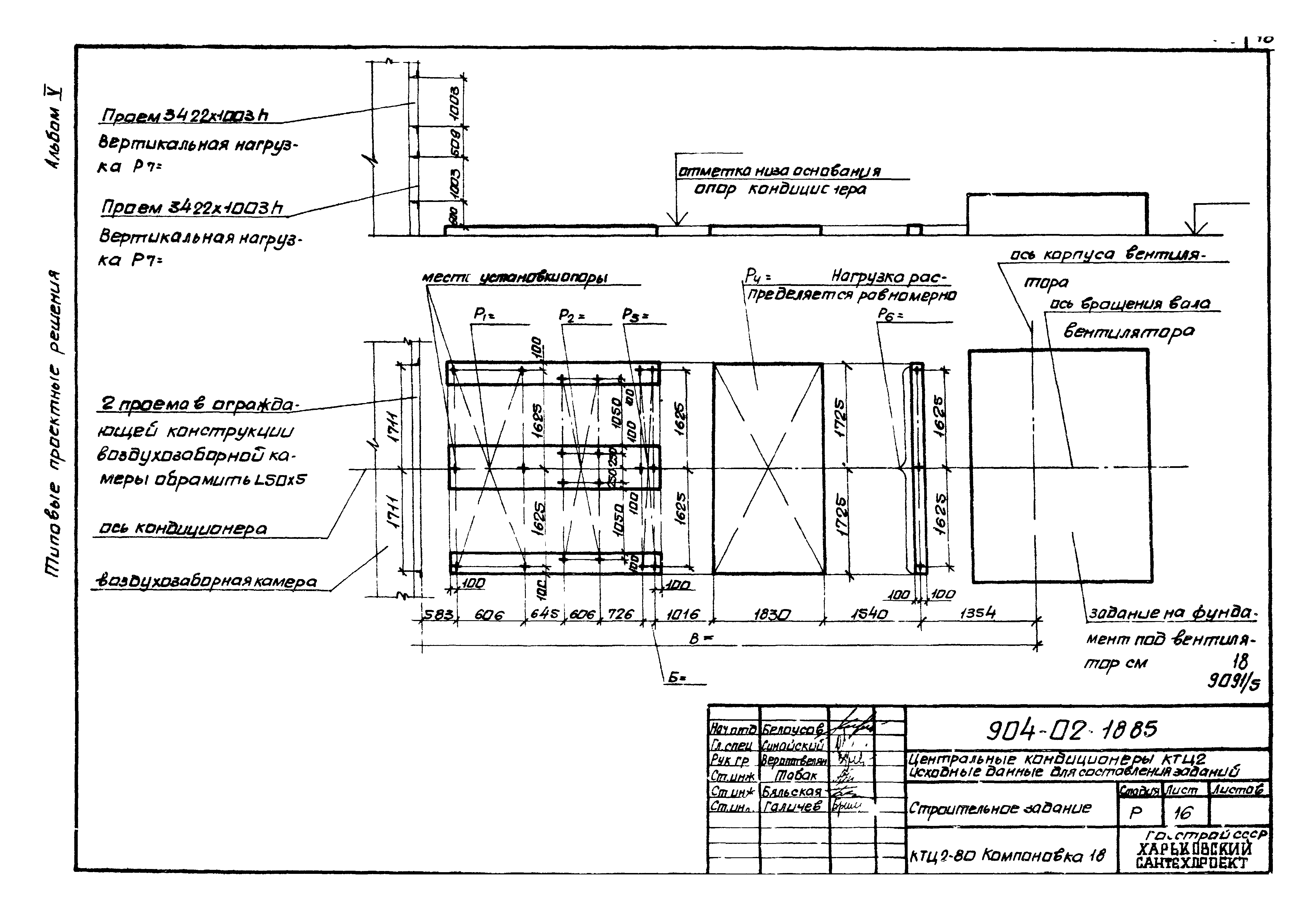
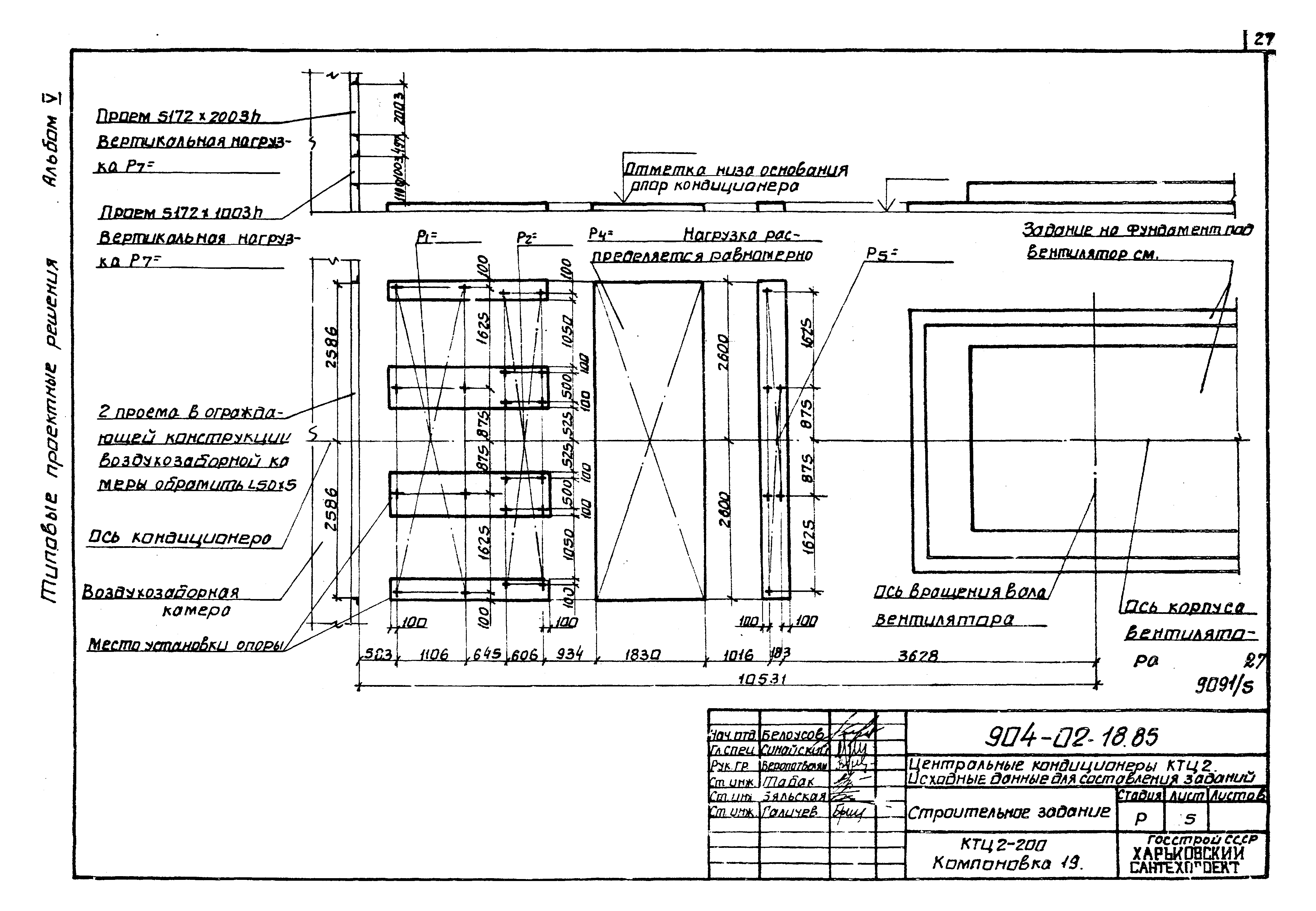
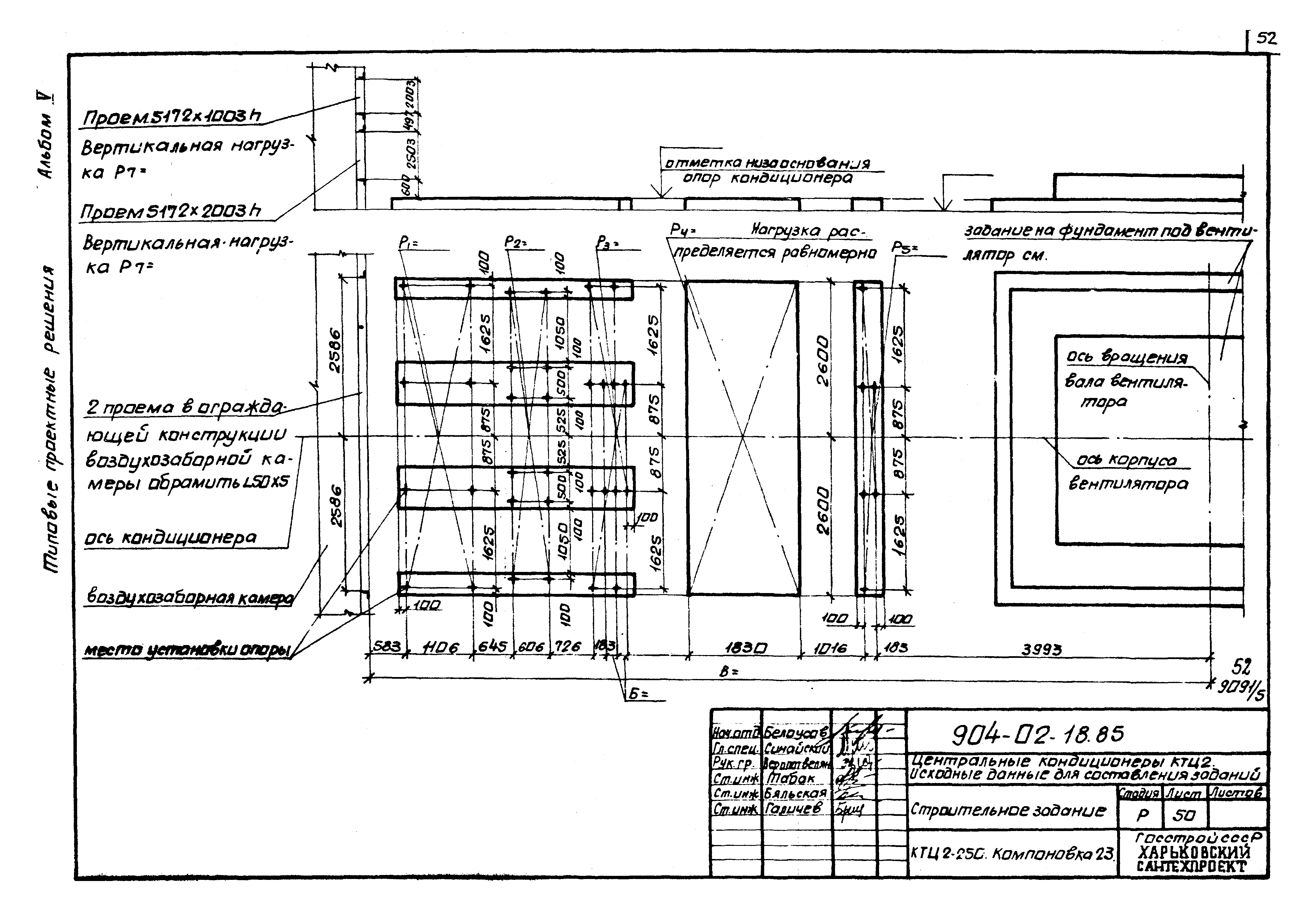
Скачать Типовые проектные решения 904-02-18.85 Альбом V. Строительные задания на секции кондиционеров модификаций базовых схем 5, 6 и базовой схемы 7Дата актуализации: 10.08.2017 Типовые проектные решения 904-02-18.85
Альбом V. Строительные задания на секции кондиционеров модификаций базовых схем 5, 6 и базовой схемы 7Обозначение: | Типовые проектные решения 904-02-18.85 | Обозначение англ: | 904-02-18.85 | Статус: | cправочные материалы, мп, тпр | Название рус.: | Альбом V. Строительные задания на секции кондиционеров модификаций базовых схем 5, 6 и базовой схемы 7 | Дата добавления в базу: | 01.09.2013 | Дата актуализации: | 05.05.2017 | Разработан: | Харьковский Сантехниипроект
| Утверждён: | 01.01.1984 Главпромстройпроект Госстроя СССР
| Расположен в: |
|
                                                                     
|