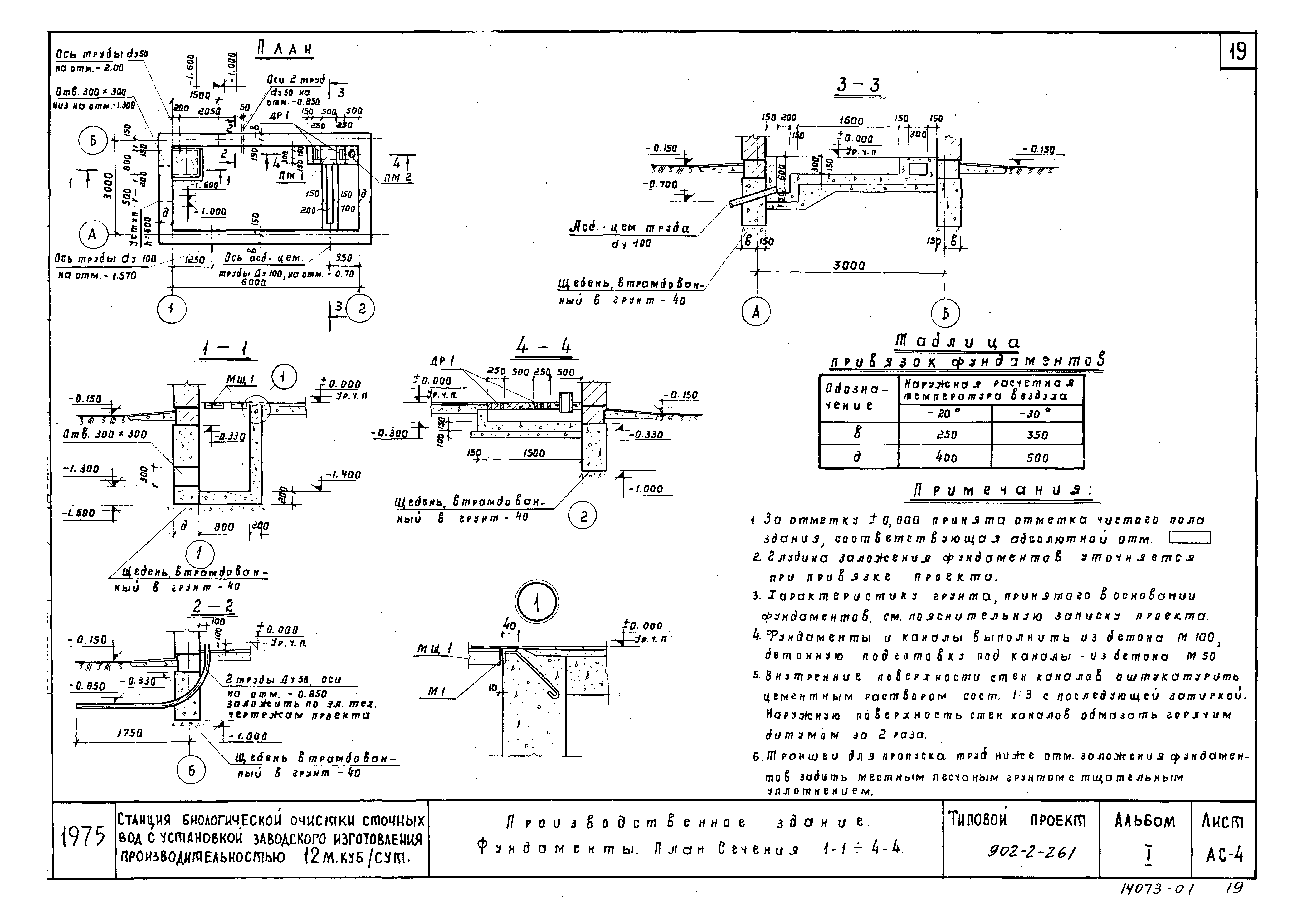
Скачать Типовой проект 902-2-261 Альбом I. Пояснительная записка. Генплан. Чертежи производственного здания и сооруженийДата актуализации: 10.08.2017 Типовой проект 902-2-261
Альбом I. Пояснительная записка. Генплан. Чертежи производственного здания и сооруженийОбозначение: | Типовой проект 902-2-261 | Обозначение англ: | 902-2-261 | Статус: | действует | Название рус.: | Альбом I. Пояснительная записка. Генплан. Чертежи производственного здания и сооружений | Дата добавления в базу: | 01.09.2013 | Дата актуализации: | 05.05.2017 | Разработан: | Гипрокоммунводоканал Минжилкомхоза РСФСР
| Утверждён: | 30.12.1975 МЖКХ РСФСР (23-ТД)
| Расположен в: |
|
                                          
|