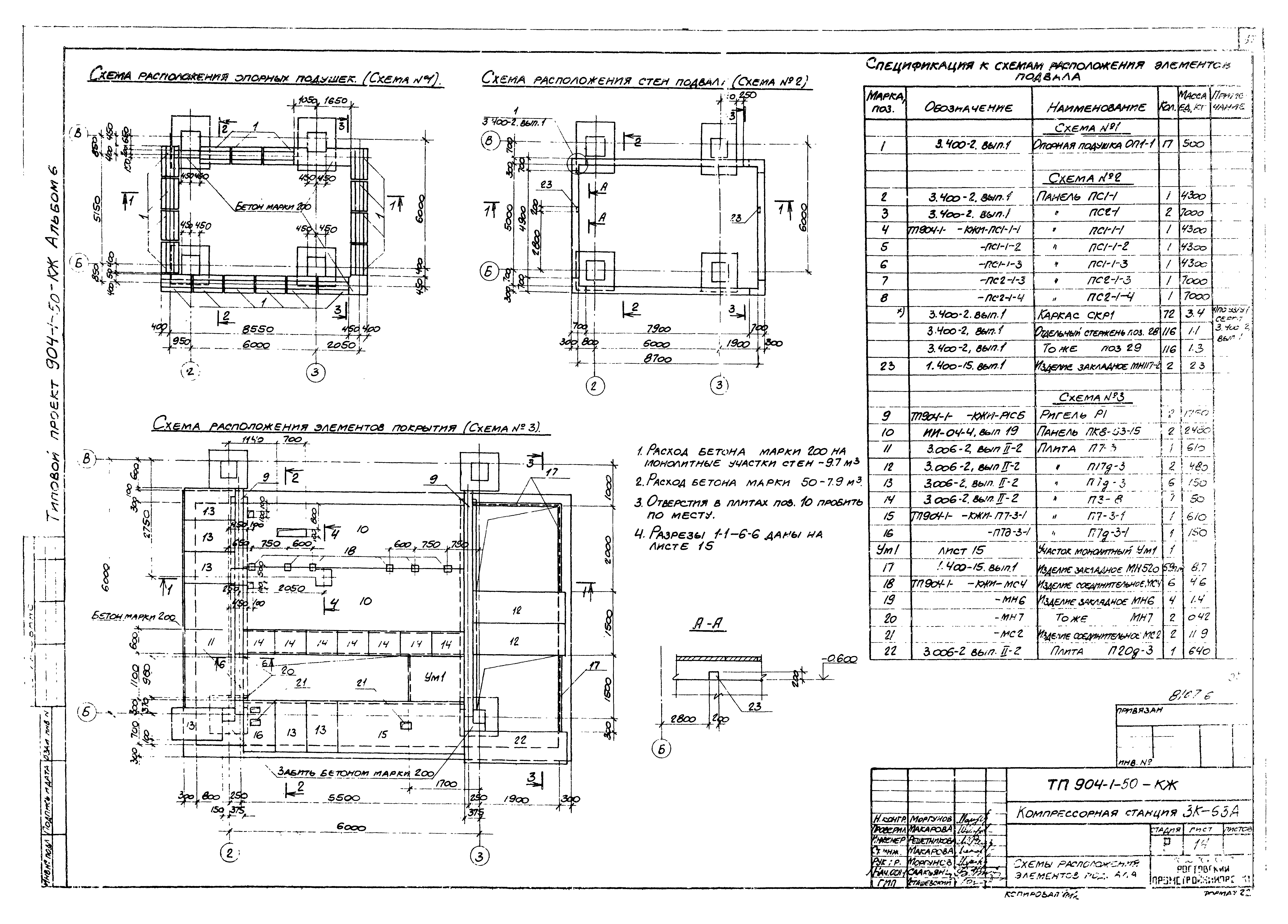
Скачать Типовой проект 904-1-50 Альбом 6. Архитектурно-строительная и сантехническая части для 3 компрессоровДата актуализации: 10.08.2017 Типовой проект 904-1-50
Альбом 6. Архитектурно-строительная и сантехническая части для 3 компрессоровОбозначение: | Типовой проект 904-1-50 | Обозначение англ: | 904-1-50 | Статус: | не действует | Название рус.: | Альбом 6. Архитектурно-строительная и сантехническая части для 3 компрессоров | Дата добавления в базу: | 01.09.2013 | Дата актуализации: | 05.05.2017 | Разработан: | Ростовский Промстройниипроект Госстроя СССР
| Утверждён: | 30.03.1982 Минстройдормаш (Minstroydormash 1/82)
| Расположен в: |
|
                                                                            
|