Скачать ГОСТ Р МЭК 60917-2-3-2009 Конструкции несущие базовые радиоэлектронных средств. Координационные размеры интерфейса для базовых несущих конструкций с шагом 25 мм. Размеры для блочных каркасов, шасси, объединительных плат, передних панелей и вставных блоковДата актуализации: 10.08.2017 ГОСТ Р МЭК 60917-2-3-2009
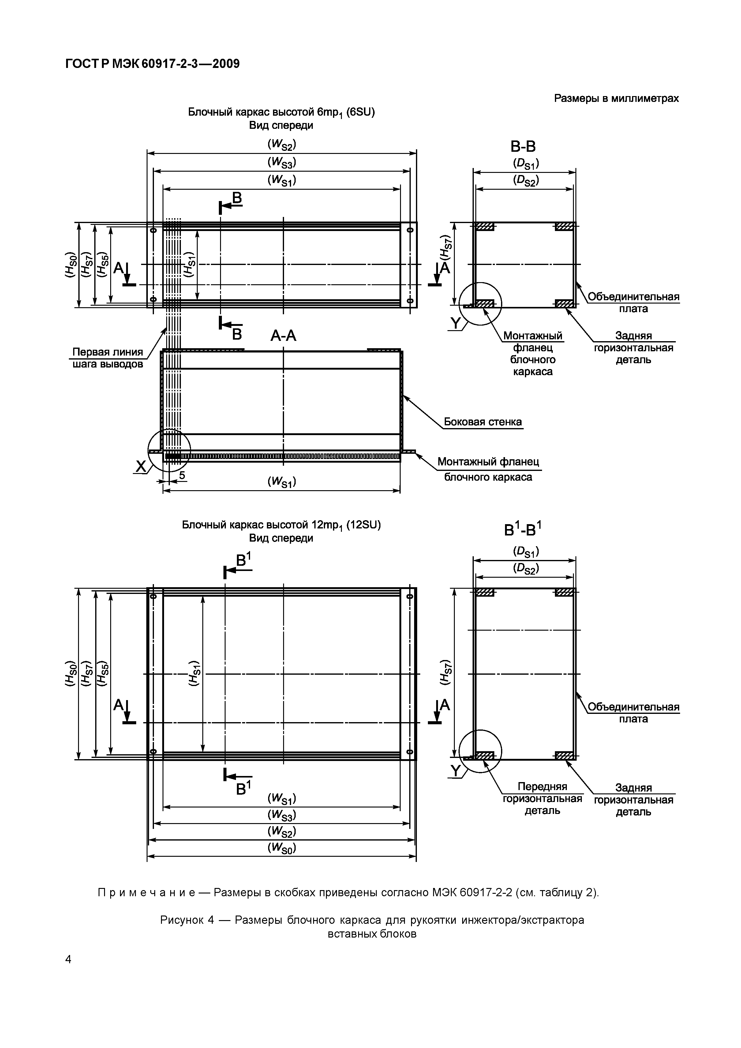
Конструкции несущие базовые радиоэлектронных средств. Координационные размеры интерфейса для базовых несущих конструкций с шагом 25 мм. Размеры для блочных каркасов, шасси, объединительных плат, передних панелей и вставных блоковОбозначение: | ГОСТ Р МЭК 60917-2-3-2009 | Обозначение англ: | GOST R IEC 60917-2-3-2009 | Статус: | действует | Название рус.: | Конструкции несущие базовые радиоэлектронных средств. Координационные размеры интерфейса для базовых несущих конструкций с шагом 25 мм. Размеры для блочных каркасов, шасси, объединительных плат, передних панелей и вставных блоков | Название англ.: | Modular order for the development of mechanical structures for electronic equipment practices. Interface co-ordination dimensions for the 25 mm equipment practice. Dimensions for subracks, chassis, backplanes, front panels and plug-in units | Дата добавления в базу: | 01.09.2013 | Дата актуализации: | 05.05.2017 | Дата введения: | 01.12.2010 | Область применения: | Стандарт устанавливает дополнительные размеры для модульного ряда блочных каркасов и связанных с ними вставных блоков, построенных по МЭК 60917-2-2. Типовой блочный каркас состоит из рамочной конструкции с монтажными размерами для установки в стойки или шкафы согласно МЭК 60917-2-1. Стандарт предназначен для применения при определении размеров проема, соответствующих монтажным размерам передних вставных блоков. Стандарт содержит: - дополнительные размеры для блочных каркасов и связанных с ними вставных блоков с рукояткой инжектора/экстрактора; - размеры для основных средств электромагнитного экранирования; - размеры ловителя для установки на передней панели и вставного блока; - размеры средств защиты от электростатического разряда; - размеры вставных блоков, монтируемых на заднюю поверхность. | Оглавление: | Введение 1 Область применения 2 Нормативные ссылки 3 Термины и определения 4 Общая компоновка 5 Размеры блочного каркаса для рукоятки инжектора/экстрактора вставных блоков 5.1 Размеры блочного каркаса 6 Размеры рукоятки инжектора/экстрактора для вставных блоков 6.1 Размеры рукоятки инжектора/экстрактора 6.2 Фиксация рукоятки 7 Блочный каркас и вставные блоки со средствами электромагнитного экранирования 7.1 Размеры блочного каркаса для средств электромагнитного экранирования 7.2 Размеры передней панели вставного блока 8 Система ключей кодирования для блочного каркаса и вставных блоков 8.1 Общие положения 8.2 Размеры блочного каркаса. Система ключей кодирования на направляющих вставных блоков 8.3 Размеры ключей. Система ключей кодирования на направляющих вставных блоков 8.4 Программирование ключей. Система ключей кодирования на направляющих блочного каркаса 8.5 Контрольные размеры установки ключей. Система ключей кодирования на направляющих вставных блоков 9 Центрирующий ловитель для установки и/или обеспечения электрического контакта передних панелей и вставных блоков 9.1 Общие положения 9.2 Центрирующие ловители и планки с гнездами под них на горизонтальных деталях блочного каркаса 9.3 Центрирующий ловитель для установки и/или обеспечения электрического контакта и гнезда на направляющих для вставного блока в блочном каркасе 9.3.1 Общие положения 9.3.2 Размеры блочного каркаса. Центрирующий ловитель для установки и/или обеспечения электрического контакта и гнезда на направляющих для вставного блока в блочном каркасе 9.3.3 Размеры вставного блока. Центрирующий ловитель для установки и/или обеспечения электрического контакта и гнезда на направляющих для вставного блока в блочном каркасе 9.3.4 Области применения гнезд и ловителей для обеспечения электрического контакта . . 10 Средства защиты от электростатического разряда для вставных блоков и блочных каркасов . . 10.1 Общие положения 10.2 Размеры контактирующих элементов для защиты от электростатического разряда 10.3 Размеры проводящего элемента для защиты от электростатического разряда на печатной плате 10.4 Размеры блочных каркасов и вставных блоков на основе МЭК 60917-2-2 11 Размеры блочного каркаса для задних вставных блоков Приложение А (справочное) Размеры блочного каркаса, вставного блока и объединительной платы для применения метрических разъемов Приложение ДА (справочное) Сведения о соответствии ссылочных международных стандартов ссылочным национальным стандартам Российской Федерации | Разработан: | ЗАО Авангард-ТехСт
| Утверждён: | 10.12.2009 Федеральное агентство по техническому регулированию и метрологии (687-ст)
| Издан: | Стандартинформ (2011 г. )
| Расположен в: |
| Нормативные ссылки: | |
                              
|