Скачать Альбом ПС-213 Подвески подземных коммуникаций при пересечении их со строящимися инженерными сооружениями и коммуникациями. Материалы для проектированияДата актуализации: 10.08.2017 Альбом ПС-213
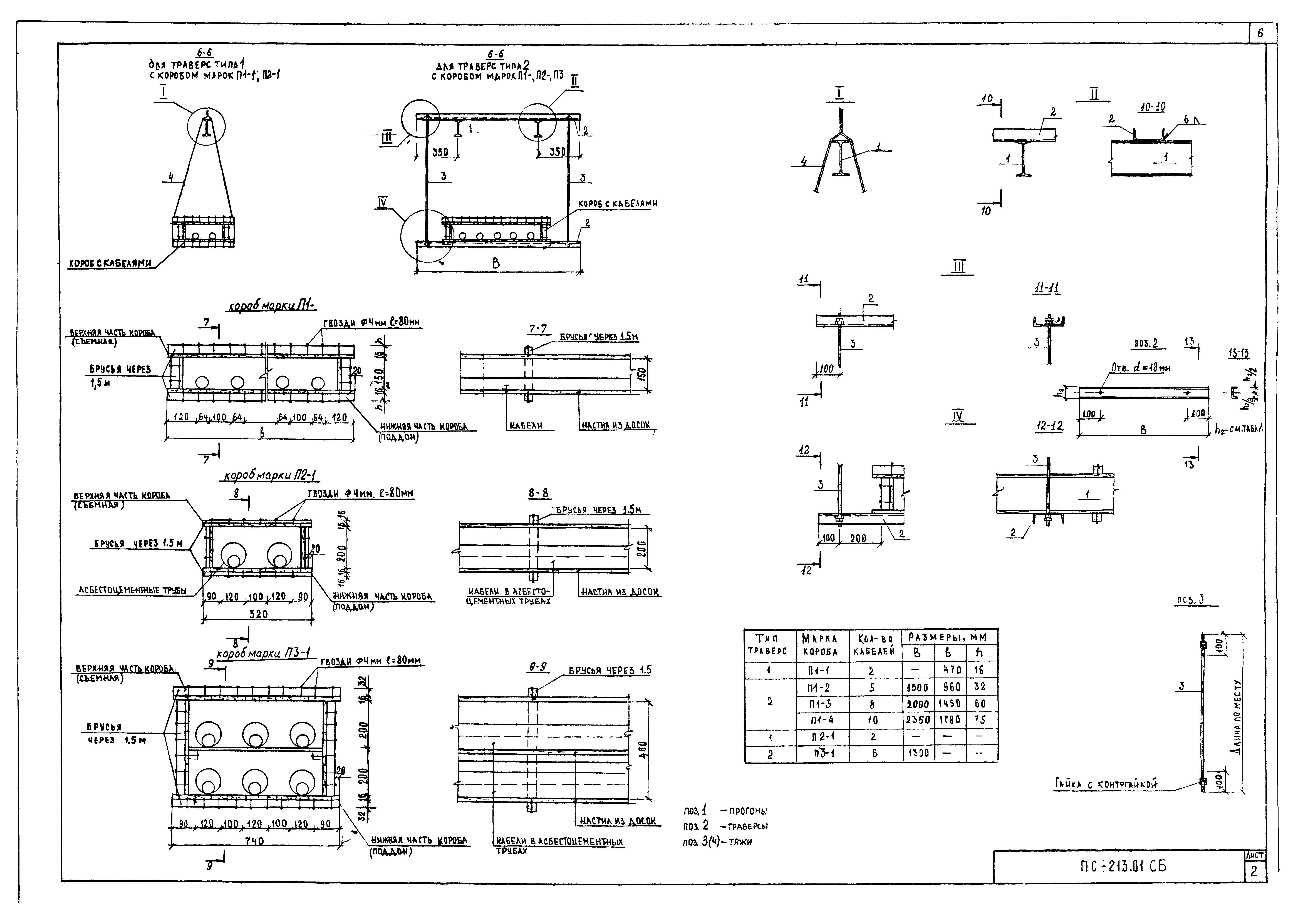
Подвески подземных коммуникаций при пересечении их со строящимися инженерными сооружениями и коммуникациями. Материалы для проектированияОбозначение: | Альбом ПС-213 | Обозначение англ: | ПС-213 | Статус: | не определен законодательством | Название рус.: | Подвески подземных коммуникаций при пересечении их со строящимися инженерными сооружениями и коммуникациями. Материалы для проектирования | Дата добавления в базу: | 01.09.2013 | Дата актуализации: | 05.05.2017 | Дата введения: | 23.02.1987 | Разработан: | МосинжНИИпроект
| Утверждён: | 23.02.1987 Мосинжпроект (Mosinzhproject )
| Расположен в: |
|
                                       
|