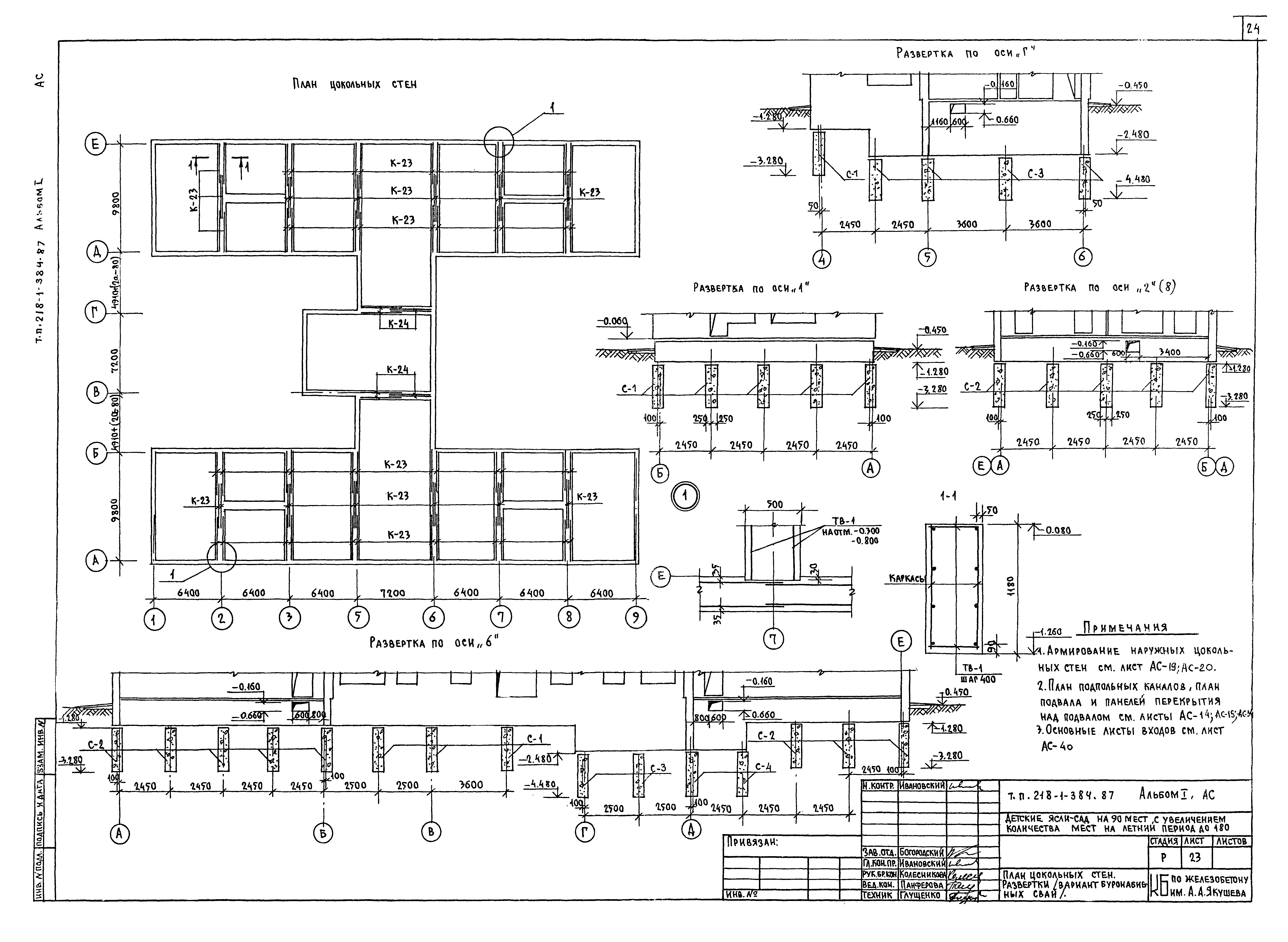
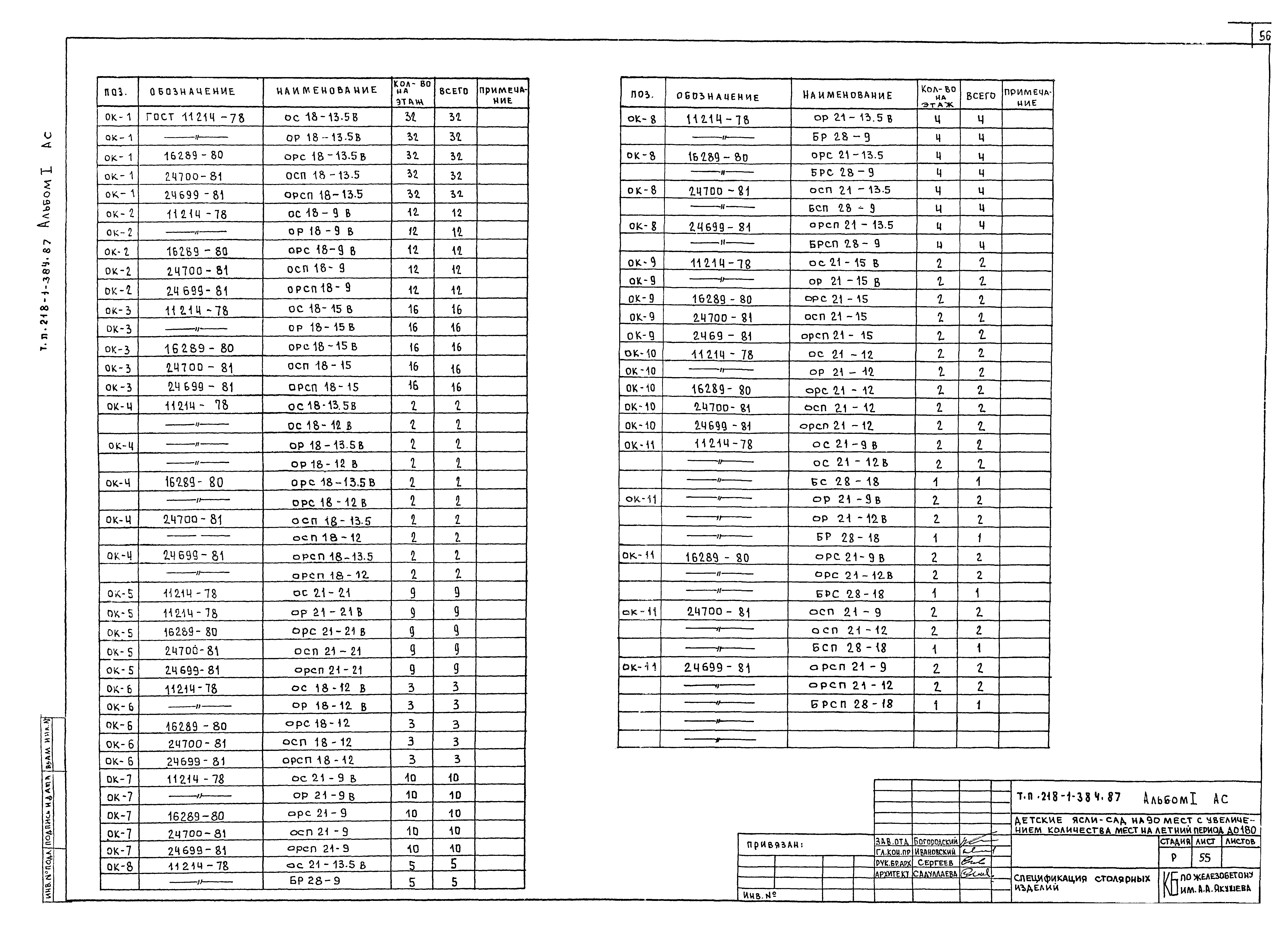
Скачать Типовой проект 218-1-384.87 Альбом I. Архитектурно-строительные, технологические чертежиДата актуализации: 10.08.2017 Типовой проект 218-1-384.87
Альбом I. Архитектурно-строительные, технологические чертежиОбозначение: | Типовой проект 218-1-384.87 | Обозначение англ: | 218-1-384.87 | Статус: | не определен законодательством | Название рус.: | Альбом I. Архитектурно-строительные, технологические чертежи | Дата добавления в базу: | 01.09.2013 | Дата актуализации: | 05.05.2017 | Дата введения: | 19.11.1986 | Разработан: | КБ по железобетону им. А.А. Якушева
| Утверждён: | 19.02.1986 Госстрой РСФСР (Russian Federation Gosstroy 17-12/1492)
| Расположен в: |
|
                                                                  
|