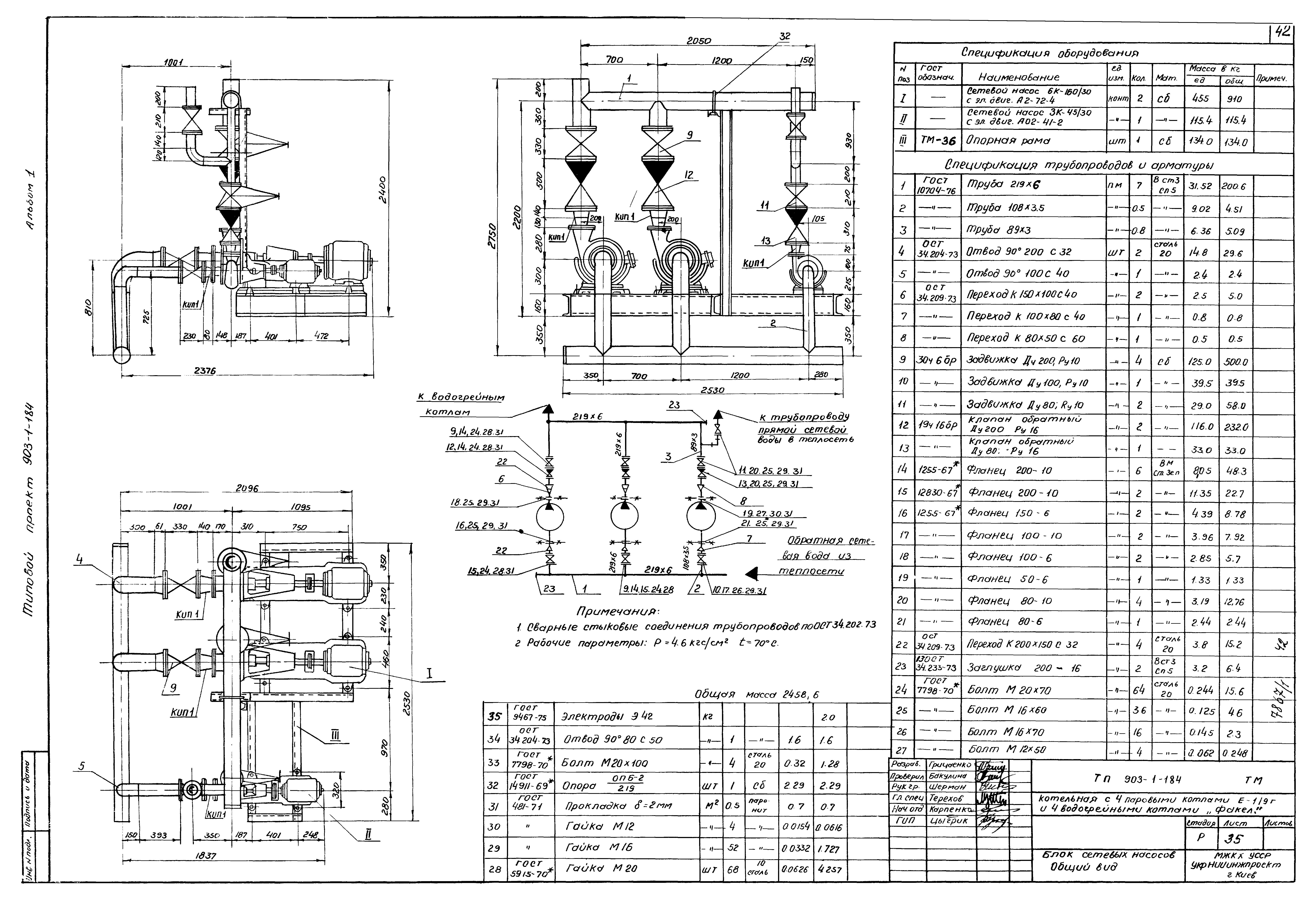
Скачать Типовой проект 903-1-184 Альбом I. Тепломеханическая частьДата актуализации: 10.08.2017 Типовой проект 903-1-184
Альбом I. Тепломеханическая частьОбозначение: | Типовой проект 903-1-184 | Обозначение англ: | 903-1-184 | Статус: | не действует | Название рус.: | Альбом I. Тепломеханическая часть | Дата добавления в базу: | 01.09.2013 | Дата актуализации: | 05.05.2017 | Разработан: | УкрНИИинжпроект Минжилкомхоза УССР
| Утверждён: | 11.04.1980 Институт УкрНИИинжпроект (51)
| Расположен в: |
|
                                                               
|