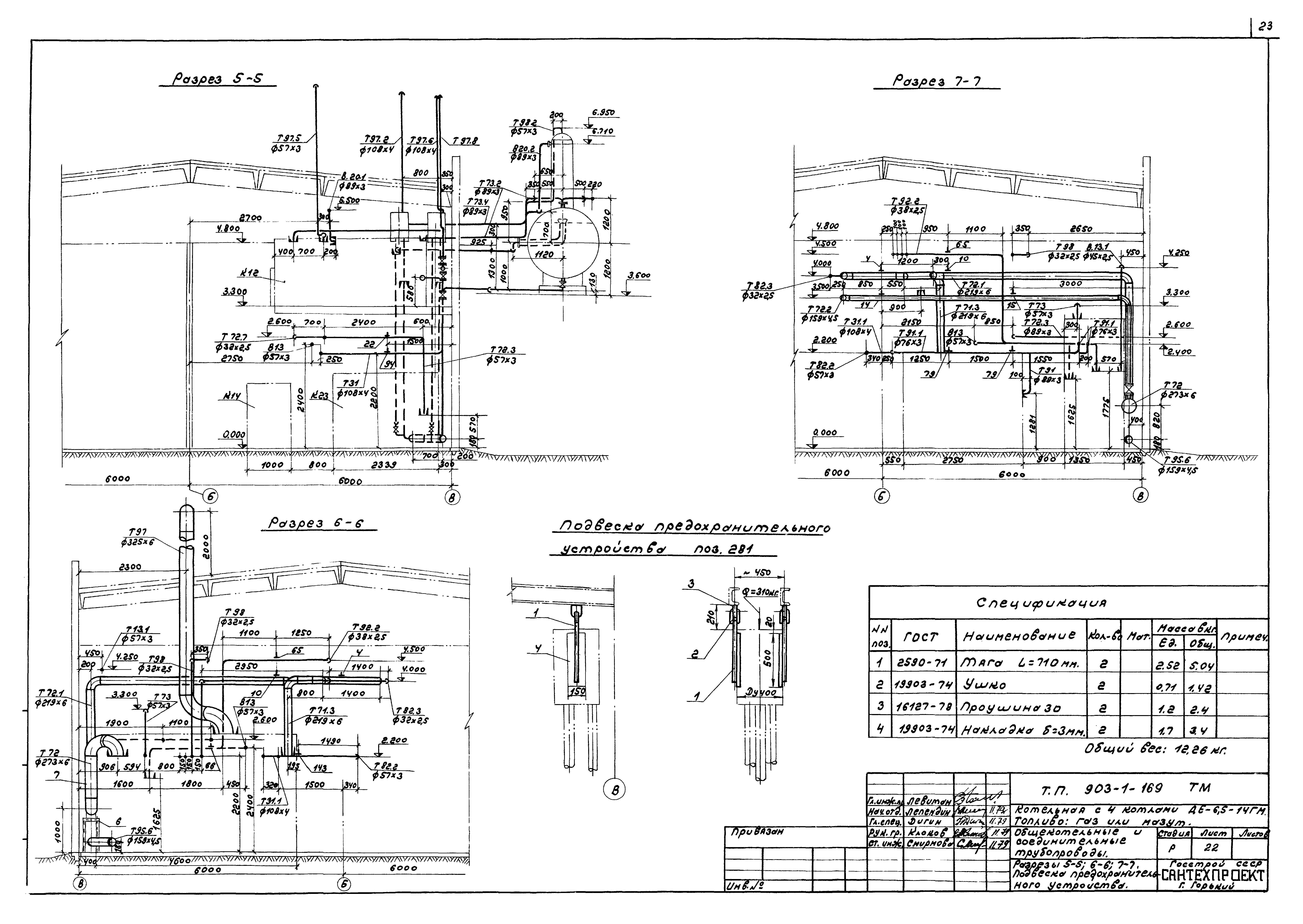
Скачать Типовой проект 903-1-169 Альбом II. Сборочные чертежи котельной. ТрубопроводыДата актуализации: 10.08.2017 Типовой проект 903-1-169
Альбом II. Сборочные чертежи котельной. ТрубопроводыОбозначение: | Типовой проект 903-1-169 | Обозначение англ: | 903-1-169 | Статус: | действует | Название рус.: | Альбом II. Сборочные чертежи котельной. Трубопроводы | Дата добавления в базу: | 01.09.2013 | Дата актуализации: | 05.05.2017 | Дата введения: | 15.02.1980 | Разработан: | Горьковское отделение Сантехпроекта
| Утверждён: | 15.11.1979 ГПИ Сантехпроект (176)
| Расположен в: |
|
                                                          
|