Информационная система
«Ёшкин Кот»

Скачать базу одним архивом
Скачать обновления
История создания базы
Карта сайта

Скачать Типовой проект 135-0368.88 ОВ.1-1. Отопление и вентиляция на расчетные температуры от минус 20 до минус 40 градусов Цельсия

Дата актуализации: 10.08.2017

Типовой проект 135-0368.88

ОВ.1-1. Отопление и вентиляция на расчетные температуры от минус 20 до минус 40 градусов Цельсия

Обозначение: Типовой проект 135-0368.88
Обозначение англ: 135-0368.88
Статус:не определен законодательством
Название рус.:ОВ.1-1. Отопление и вентиляция на расчетные температуры от минус 20 до минус 40 градусов Цельсия
Дата добавления в базу:01.09.2013
Дата актуализации:05.05.2017
Дата введения:31.08.1988
Оглавление:Общие данные (начало)
Общие данные (продолжение)
Общие данные (окончание)
План техподполья
План 1 этажа (основное планировочное решение)
План 1 этажа (вариант с колясочной электрощитовой)
План 2-9 этажей
План чердачного помещения
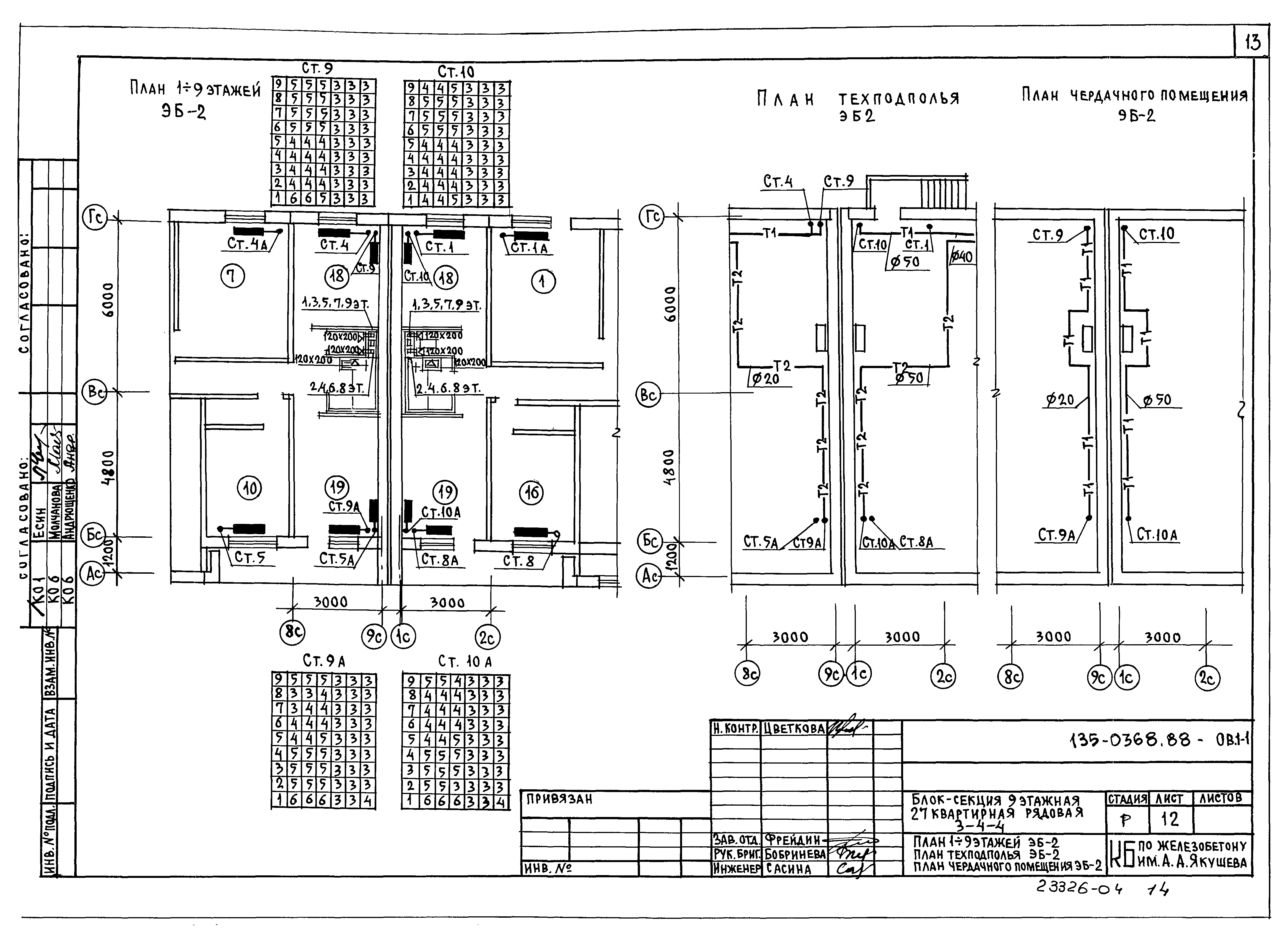
План 1-9 этажей ЭБ2. План техподполья ЭБ2. План чердачного помещения ЭБ2
Схема системы отопления
Схема стояков отопления
Узел управления
Разработан: КБ по железобетону им. А.А. Якушева
Утверждён:21.04.1986 Госстрой РСФСР (Russian Federation Gosstroy 40)
Расположен в:Техническая документация Строительство Справочные документы Типовые строительные конструкции, изделия и узлы Общероссийский строительный каталог Жилые здания для строительства в городах и поселках городского типа Обычные условия Жилые дома панельные Серия 135
Типовой проект 135-0368.88Типовой проект 135-0368.88Типовой проект 135-0368.88Типовой проект 135-0368.88Типовой проект 135-0368.88Типовой проект 135-0368.88Типовой проект 135-0368.88Типовой проект 135-0368.88Типовой проект 135-0368.88Типовой проект 135-0368.88Типовой проект 135-0368.88Типовой проект 135-0368.88Типовой проект 135-0368.88Типовой проект 135-0368.88Типовой проект 135-0368.88Типовой проект 135-0368.88Типовой проект 135-0368.88Типовой проект 135-0368.88

© 2013 Ёшкин Кот :-) Карта сайта