Информационная система
«Ёшкин Кот»

Скачать базу одним архивом
Скачать обновления
История создания базы
Карта сайта

Скачать Типовой проект 135-0368.88 АС.0. Общие архитектурно-строительные решения

Дата актуализации: 10.08.2017

Типовой проект 135-0368.88

АС.0. Общие архитектурно-строительные решения

Обозначение: Типовой проект 135-0368.88
Обозначение англ: 135-0368.88
Статус:не определен законодательством
Название рус.:АС.0. Общие архитектурно-строительные решения
Дата добавления в базу:01.09.2013
Дата актуализации:05.05.2017
Дата введения:31.08.1988
Оглавление:Общие данные
Состав проекта (начало)
Состав проекта (продолжение)
Состав проекта (окончание)
Ведомость вариантов проектных решений
Секция 3-4-4. План 1 этажа. Основное планировочное решение
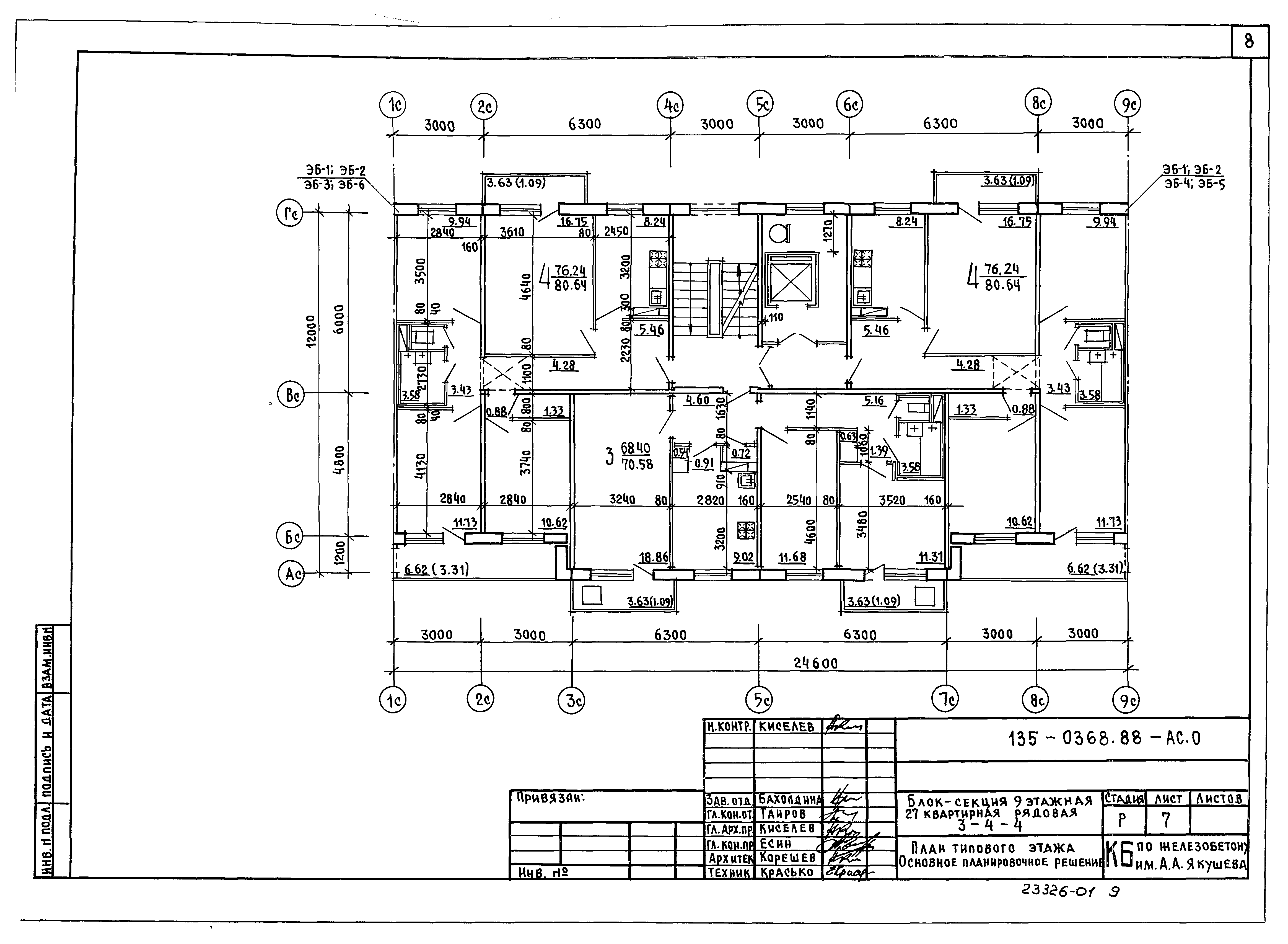
Секция 3-4-4. План типового этажа. Основное планировочное решение
Секция 3-4-4. План 1 этажа. Планировочное решение с колясочной
Разрез 1-1
Фасады в осях 1с-9с;9с-1с
Фасады в осях 1с-9с;9с-1с (вариант). Схемы компоновок фасадов
Фрагмент фасада
Элементы блокировки ЭБ-1,ЭБ-2,ЭБ-3,ЭБ-4
Элементы блокировки ЭБ-5,ЭБ-6
Чертеж-заготовка схем: фасадов, планов 1 этажа, техподполья, крыши. Таблица объемно-планировочных показателей
Разработан: КБ по железобетону им. А.А. Якушева
Утверждён:21.04.1986 Госстрой РСФСР (Russian Federation Gosstroy 40)
Расположен в:Техническая документация Строительство Справочные документы Типовые строительные конструкции, изделия и узлы Общероссийский строительный каталог Жилые здания для строительства в городах и поселках городского типа Обычные условия Жилые дома панельные Серия 135
Типовой проект 135-0368.88Типовой проект 135-0368.88Типовой проект 135-0368.88Типовой проект 135-0368.88Типовой проект 135-0368.88Типовой проект 135-0368.88Типовой проект 135-0368.88Типовой проект 135-0368.88Типовой проект 135-0368.88Типовой проект 135-0368.88Типовой проект 135-0368.88Типовой проект 135-0368.88Типовой проект 135-0368.88Типовой проект 135-0368.88Типовой проект 135-0368.88Типовой проект 135-0368.88Типовой проект 135-0368.88

© 2013 Ёшкин Кот :-) Карта сайта