Информационная система
«Ёшкин Кот»

Скачать базу одним архивом
Скачать обновления
История создания базы
Карта сайта

Скачать Типовой проект 221-1-706.92 Альбом 4. Электроснабжение. Связь и сигнализация. Автоматика

Дата актуализации: 10.08.2017

Типовой проект 221-1-706.92

Альбом 4. Электроснабжение. Связь и сигнализация. Автоматика

Обозначение: Типовой проект 221-1-706.92
Обозначение англ: 221-1-706.92
Статус:не определен законодательством
Название рус.:Альбом 4. Электроснабжение. Связь и сигнализация. Автоматика
Дата добавления в базу:01.09.2013
Дата актуализации:05.05.2017
Дата введения:30.06.1992
Оглавление:Содержание альбома
Электрооборудование
Общие данные
Однолинейная расчетная схема питающей сети
Электроосвещение
Блок "А". План тхподполья
Блок "Б". План тхподполья
Блок "В". План тхподполья
Блок "Г". План тхподполья
Блок "Д". План 1 этажа
Блок "Б". План 1 этажа
Блок "В". План 1 и 2 этажей
Блок "Г". План 1 этажа
Блок "Д". План 2 этажа
Блок "Б". План 2 этажа
Блок "Г". План 2 этажа
Блок "В". Блок "Б". План 3 этажа
Блок "А". План чердака
Блок "Б". План чердака
Блок "В". План чердака
Блок "Г". План чердака
Силовое электрооборудование
План силовой сети техподполья в осях 1-16;Л-Х
План силовой сети техподполья в осях 1-7;В-Л
План силовой сети техподполья в осях 1-14;А-Л
План силовой сети 1го этажа в осях 1-16;Л-Ф
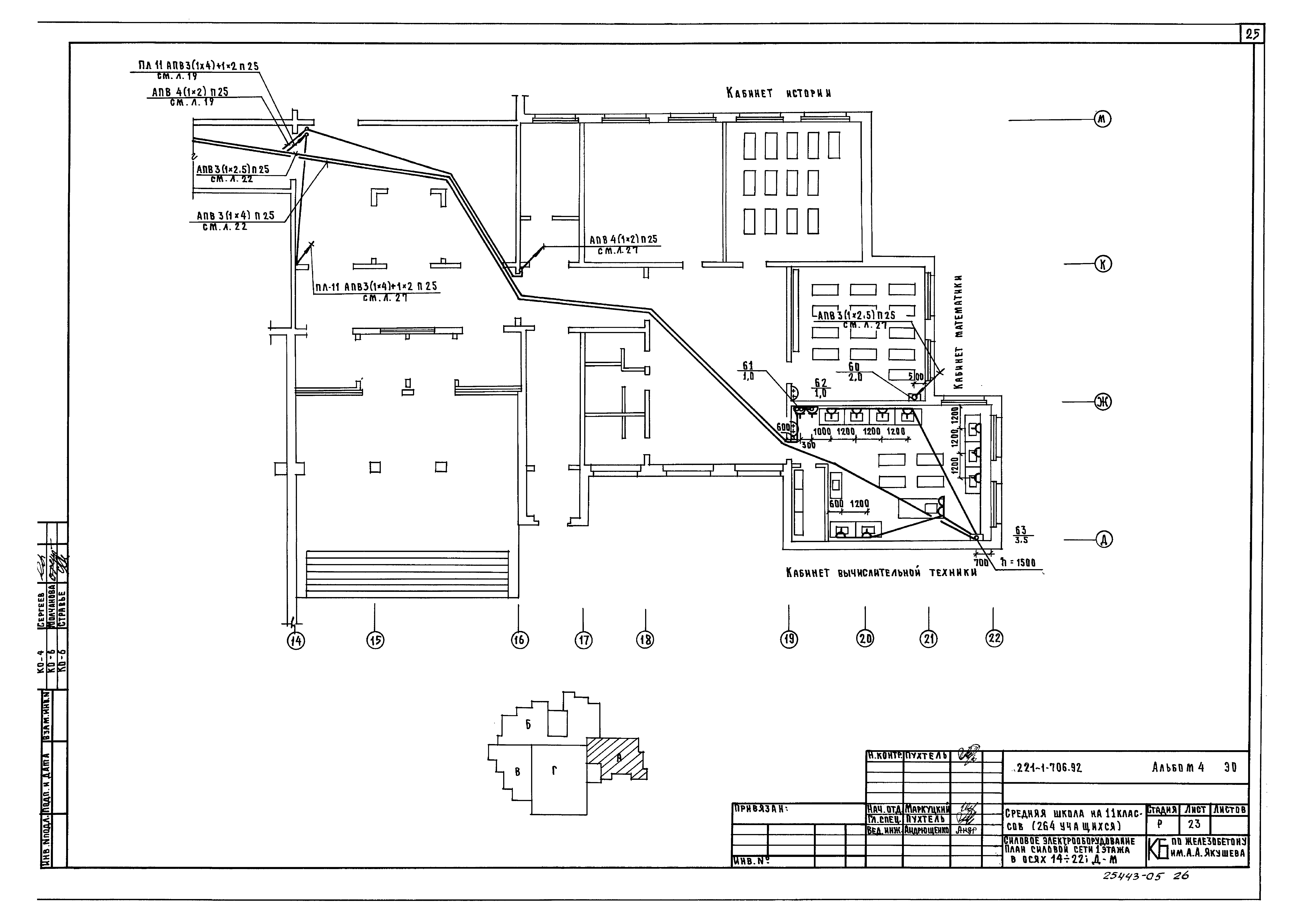
План силовой сети 1го этажа в осях 14-22;Д-М
План силовой сети 1го этажа в осях 7-14;А-Л 2 этажа в осях 7-9;Б-Л
План силовой сети столовой
План силовой сети 2 этажа в осях 1-8;В-Т
План силовой сети 2 этажа в осях 14-22;Д-М
План силовой сети 3 этажа в осях 1-9;В-Т
План силовой сети чердака в осях 5-15 м;М-С;7-14;А-Л
План силовой сети чердака в осях 1-7;В-Л;16-22;Д-М
Схема расчетная распределительной сети 1ШР
Схема расчетная распределительной сети 2ШР;3ШР
Схема расчетная распределительной сети 4ШР;5ШР (начало)
Схема расчетная распределительной сети 4ШР;5ШР (окончание). 6ШР (начало)
Схема расчетная распределительной сети 5ШР (окончание)
Схема расчетная распределительной сети 7ШР;8ШР
ЭО-ОЛ Опросный лист
Автоматизация
Общие данные
П-3;В-7;В-8 (П-1;П-2;П-5;П-6;П-7;В-12;П-8;В-14). Схема автоматизации
П-1(П-2,П-3,П-5-П-8). Схема электрическая принципиальная управления
П-1(П-2,П-3,П-5-П-8). Схема электрическая принципиальная регулирования
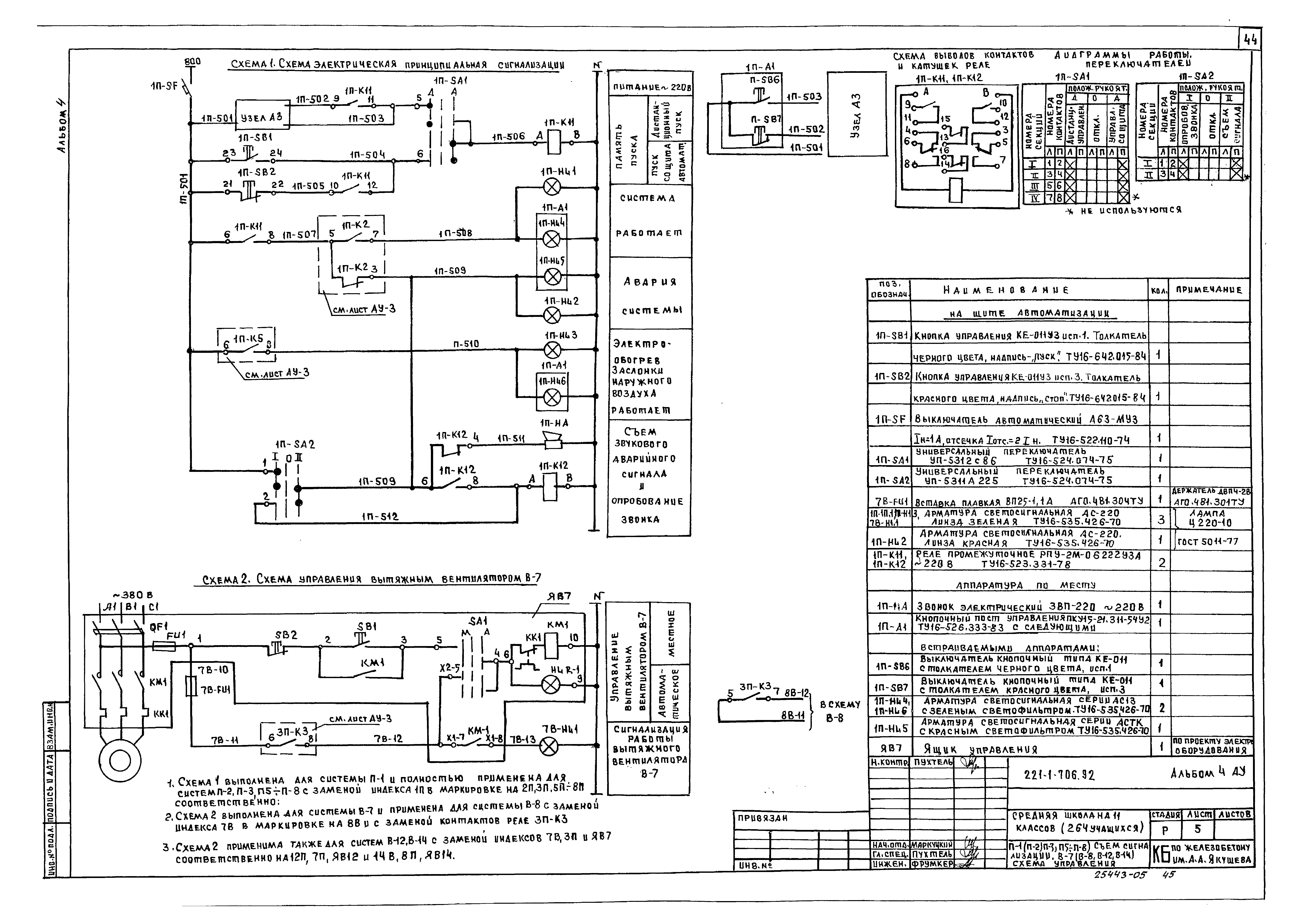
П-1(П-2,П-3,П-5-П-8). Схема сигнализации
П-3,В-7,В-8(П-1,П-2,П-5,П-6,П-7,В-12,П-8,В-14). Схема внешних электрических проводок
П-4. Схемы автоматизации, электрическая, принципиальная, внешних проводок
Задвижка З-1(З-2,З-3). Схема электрическая принципиальная, внешних проводок
П1-П3. План трасс автоматизации
П-4-П-8,З-1-З-3. План трасс автоматизации
Общие данные (начало)
Общие данные (окончание)
Схемы соединений (начало)
Схемы соединений (продолжение)
Схемы соединений (окончание)
Блок "А". План 1 этажа
Блок "А". План 2-го этажа
Блок "Б". План 1-го этажа
Блок "Б". План 2-го этажа
Блок "А". План 1-го этажа
Блок "В". План 2-го этажа
Блок "Б","В". Планы 3-го этажа
Блок "Г". План 1-го этажа
Блок "Г". План 2-го этажа
Блоки "Б","Г". Планы техподполья и подвала
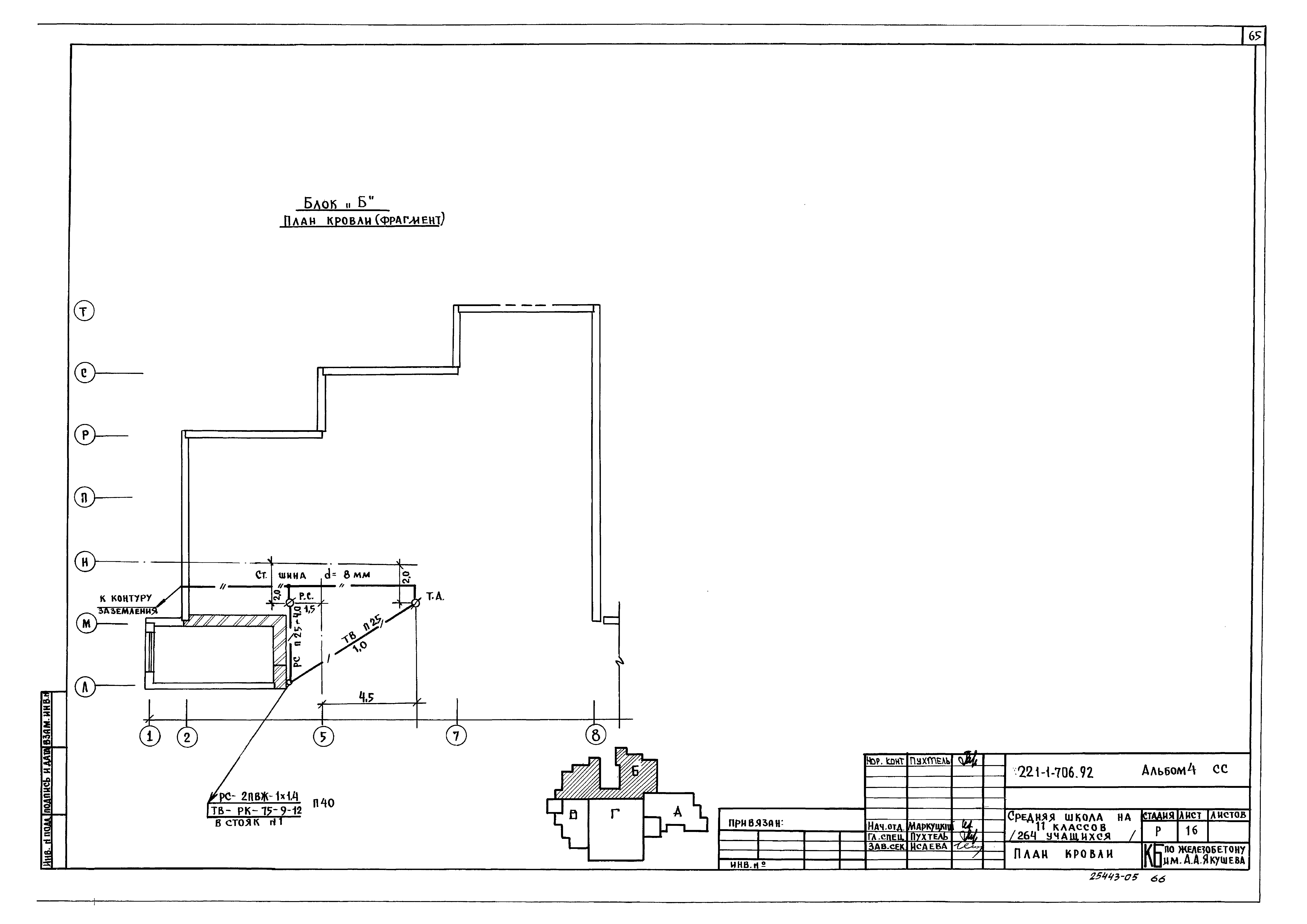
План кровли
Подпольная коробка
Блокировка окон и дверей
Разработан: КБ по железобетону им. А.А. Якушева
Утверждён:14.04.1989 Госкомархстрой РСФСР (Russian Federation Goskomarkhstroy 108)
Расположен в:Техническая документация Строительство Справочные документы Типовые строительные конструкции, изделия и узлы Общероссийский строительный каталог Общественные здания в городах и поселках городского типа Школы и внешкольные учреждения Общеобразовательные школы
Типовой проект 221-1-706.92Типовой проект 221-1-706.92Типовой проект 221-1-706.92Типовой проект 221-1-706.92Типовой проект 221-1-706.92Типовой проект 221-1-706.92Типовой проект 221-1-706.92Типовой проект 221-1-706.92Типовой проект 221-1-706.92Типовой проект 221-1-706.92Типовой проект 221-1-706.92Типовой проект 221-1-706.92Типовой проект 221-1-706.92Типовой проект 221-1-706.92Типовой проект 221-1-706.92Типовой проект 221-1-706.92Типовой проект 221-1-706.92Типовой проект 221-1-706.92Типовой проект 221-1-706.92Типовой проект 221-1-706.92Типовой проект 221-1-706.92Типовой проект 221-1-706.92Типовой проект 221-1-706.92Типовой проект 221-1-706.92Типовой проект 221-1-706.92Типовой проект 221-1-706.92Типовой проект 221-1-706.92Типовой проект 221-1-706.92Типовой проект 221-1-706.92Типовой проект 221-1-706.92Типовой проект 221-1-706.92Типовой проект 221-1-706.92Типовой проект 221-1-706.92Типовой проект 221-1-706.92Типовой проект 221-1-706.92Типовой проект 221-1-706.92Типовой проект 221-1-706.92Типовой проект 221-1-706.92Типовой проект 221-1-706.92Типовой проект 221-1-706.92Типовой проект 221-1-706.92Типовой проект 221-1-706.92Типовой проект 221-1-706.92Типовой проект 221-1-706.92Типовой проект 221-1-706.92Типовой проект 221-1-706.92Типовой проект 221-1-706.92Типовой проект 221-1-706.92Типовой проект 221-1-706.92Типовой проект 221-1-706.92Типовой проект 221-1-706.92Типовой проект 221-1-706.92Типовой проект 221-1-706.92Типовой проект 221-1-706.92Типовой проект 221-1-706.92Типовой проект 221-1-706.92Типовой проект 221-1-706.92Типовой проект 221-1-706.92Типовой проект 221-1-706.92Типовой проект 221-1-706.92Типовой проект 221-1-706.92Типовой проект 221-1-706.92Типовой проект 221-1-706.92Типовой проект 221-1-706.92Типовой проект 221-1-706.92Типовой проект 221-1-706.92Типовой проект 221-1-706.92Типовой проект 221-1-706.92

© 2013 Ёшкин Кот :-) Карта сайта