Информационная система
«Ёшкин Кот»

Скачать базу одним архивом
Скачать обновления
История создания базы
Карта сайта

Скачать Типовой проект 221-1-706.92 Альбом 2. Часть 1. Архитектурно-строительные чертежи выше отм. 0.000

Дата актуализации: 10.08.2017

Типовой проект 221-1-706.92

Альбом 2. Часть 1. Архитектурно-строительные чертежи выше отм. 0.000

Обозначение: Типовой проект 221-1-706.92
Обозначение англ: 221-1-706.92
Статус:не определен законодательством
Название рус.:Альбом 2. Часть 1. Архитектурно-строительные чертежи выше отм. 0.000
Дата добавления в базу:01.09.2013
Дата актуализации:05.05.2017
Дата введения:30.06.1992
Оглавление:Содержание
Ссылочные документы
Фасады в осях "1-22";"К-А"
Фасады в осях "22-1";"А-Ф"
Фасады в осях "1-22";"Х-А" (вариант)
Фасады в осях "22-1";"А-Ф" (вариант)
Блок "А". Фрагмент плана 1 этажа
Блок "А". Фрагмент плана 2 этажа
Блок "Б". Фрагмент плана 1го этажа
Блок "Б". План 2 этажа
Блок "В". Фрагмент плана 1 этажа. Фрагмент плана 1 этажа
Блок "В". Фрагмент плана 3 этажа. Блок "Г". Фрагмент плана 3 этажа
Блок "Г". Фрагмент плана 1 этажа
Блок "Г". Фрагмент плана 2 этажа. Лестница в артистической
План кровли
Разрез 1-1
Разрез 2-2
Разрез 3-3
Разрез 4-4
Ведомость отделки помещений
Ведомость отделки помещений. Экспликация полов (начало)
Экспликация полов (окончание). Жалюзийная решетка ЖР-2;ЖР-3
Спецификация столярных изделий. Жалюзийная решетка ЖР-1
Ведомость заполнения проемов
Установка гардеробных стоек ГС-1;ГС-2;ГС-3
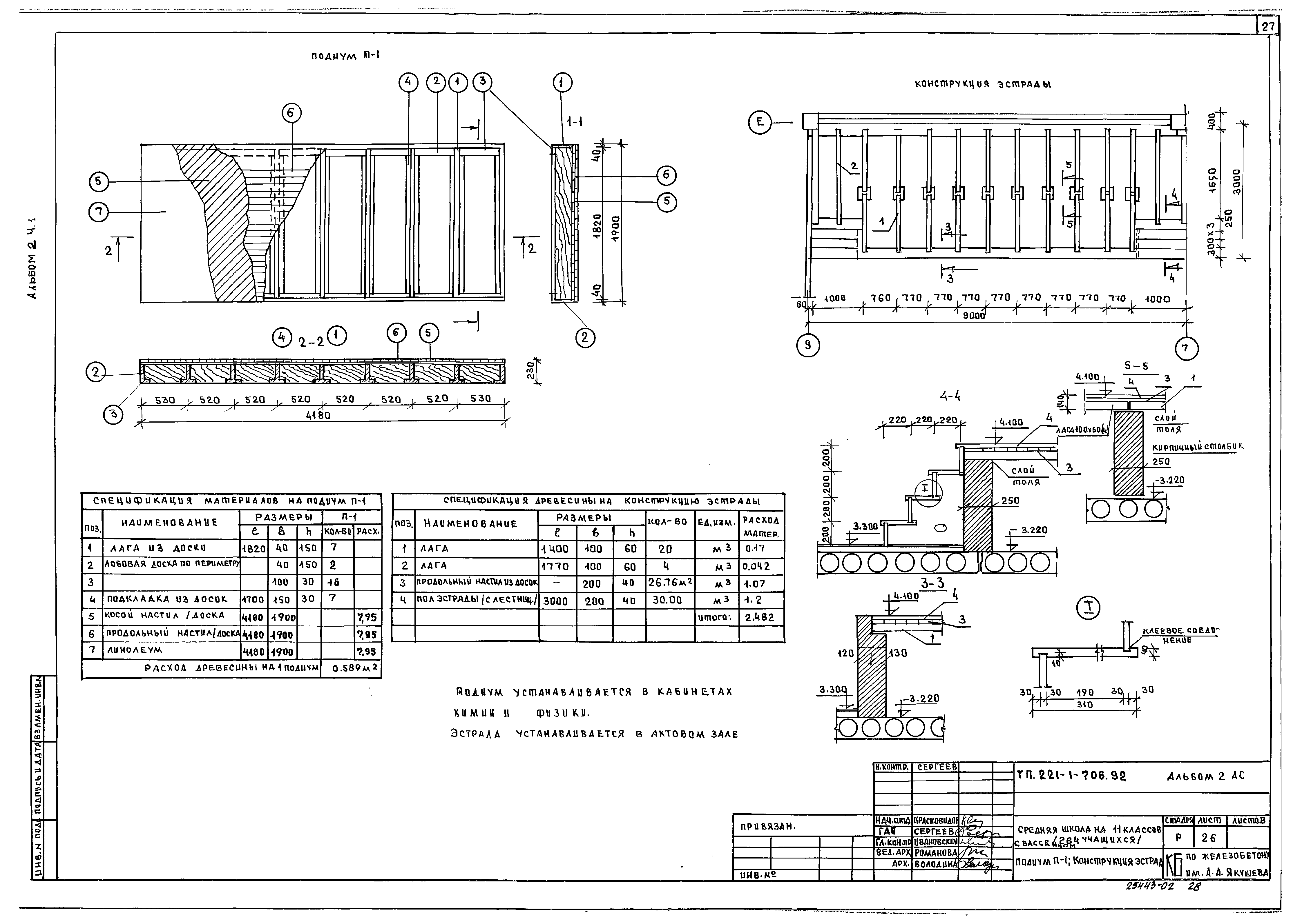
Подиум П-1. Конструкция эстакады
Ограждение радиаторов ОР-1;ОР-2
Ограждение радиаторов ОР-3;ОР-4;ОР-5
Развертки стен актового зала
Сечение 1-1 и 2-2. Фрагмент декоративного щита. Обшивка зрительного зала
Блоки "А","Б","В". Развертки наружных стен
Блок "А". Монтажный план стен 1 этажа
Блок "А". Монтажный план стен 2 этажа
Блок "Б". Монтажный план стен 1 этажа
Блок "Б". Монтажный план стен 2 этажа
Блок "Б". Монтажный план стен 3 этажа. Бассейн для пуска моделей
Блок "В". Монтажный план стен 1 этажа. План раскладки балок
Блок "В". Монтажный план стен 2 и 3 этажей
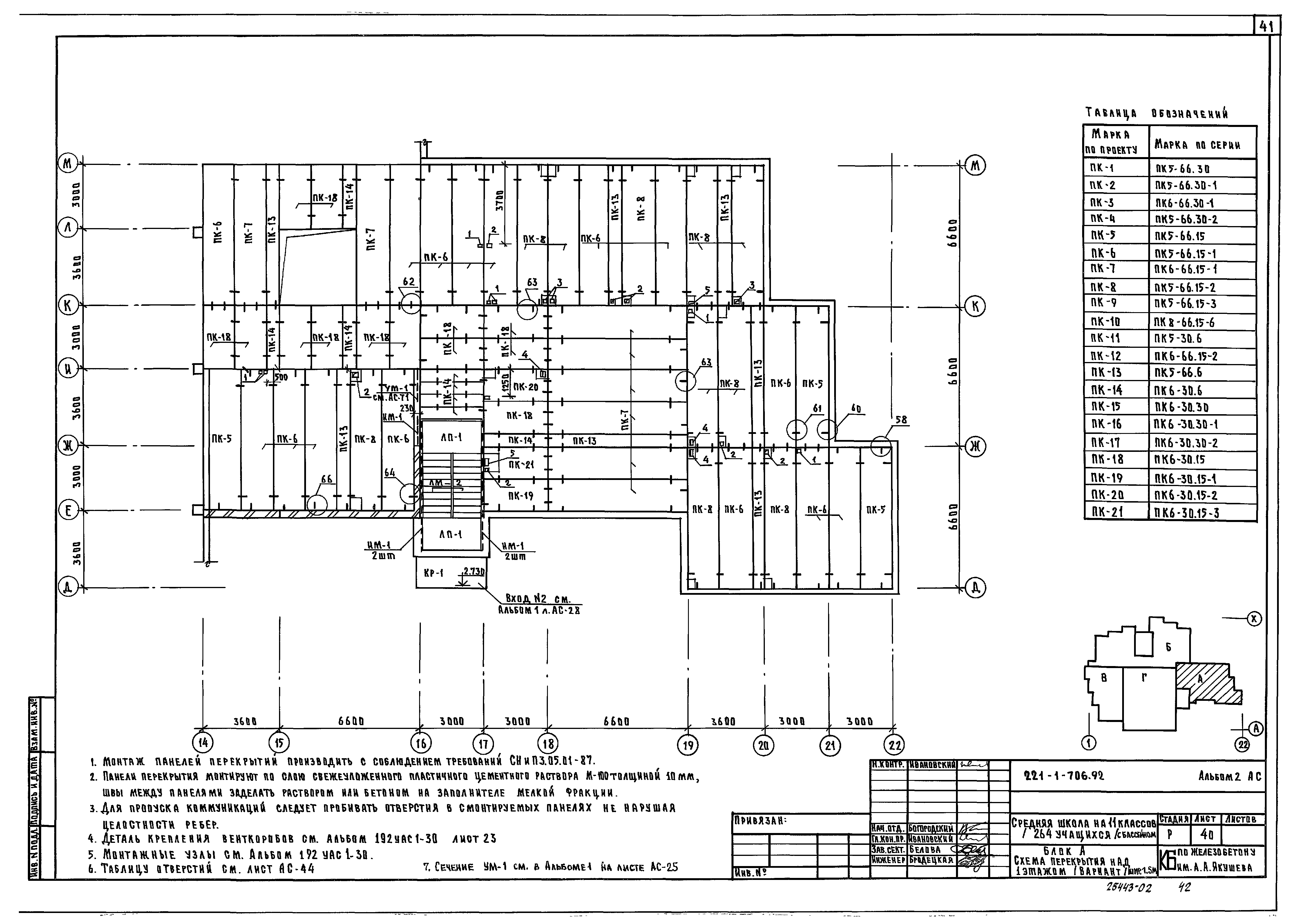
Блок "А". Схема перекрытия над 1 этажом
Блок "А". Схема перекрытия над 1 этажом (вариант)
Блок "А". Схема покрытия
Блок "А". Схема покрытия (вариант)
Блок "Б". Схема перекрытия над 1 этажом
Блок "Б". Схема перекрытия над 1 этажом (вариант)
Блок "Б". Схема перекрытия над 2 этажом
Блок "Б". Схема перекрытия над 2 этажом (вариант)
Блок "Б". Схемы покрытия
Блок "В". Схемы перекрытия над 1 этажом
Блок "В". Схемы перекрытия над 2 этажом
Блок "В". Схемы покрытия
Разрезы лестничной клетки. Разрез 1-1;2-2. Сечение 1-1 - 6-6
Узел А;Б;В. Деталь установки столика. Сечение
Ограждение лестницы ОЛ-1-ОЛ-3. Закладные детали ИМ-9;ИМ-11-ИМ-13. Балка металлическая Б-1. Каркас ИМ-16
Узлы 1-24
Блок "А". Монтажный план парапетных панелей
Блок "А". План расположения стоек прогонов, подкосов, раскосов
Блок "А". План расположения стропильных ног
Разрезы 1-1 - 8-8. Узлы 1-3
Блок "Б". План парапетных панелей
Блок "Б". План расположения стоек, прогонов, раскосов, подкосов
Блок "Б". План расположения стропильных ног
Блок "В". Монтажный план парапетных панелей. План расположения стропильных ног
Блок "В". План расположения стоек, прогонов, раскосов, подкосов. Разрезы 1-1 - 4-4. Сечение а-а
Блоки "А","Б","В". Спецификация древесины на крышу. Разрезы "10-10 - 12-12"
Блок "Г". План раскладки стропильных ног. План расположения вентшахт
Блок "Г". План расположения стоек, раскосов, подкосов, прогонов. Разрезы 1-1 - 3-3
Блок "Г". Разрезы 4-4 - 5-5. Сводная спецификация древесины
Сводная спецификация выше отм. 0.000 (начало)
Сводная спецификация выше отм. 0.000 (продолжение)
Сводная спецификация выше отм. 0.000 (окончание)
Блок "Г". Монтажный план 1 этажа
Блок "Г". Монтажный план стен 2 и 3 этажей
Блок "Г". Монтажный план перекрытия над 1 этажом
Блок "Г". Монтажный план покрытия над 2,3 этажом
Блок "Г". Монтажная схема перекрытия над 1 этажом (вариант)
Блок "Г". Монтажная схема покрытия над 2,3 этажом
Монтажные фасады по осям "А";"7";"14"
Сечения 1-1 - 7-7
Узлы 1-3. Сечения 1-1 - 3-3
Узлы 4-9. Сечения 4-4
Узлы 10-14. Сечения 5-5 - 11-11
Узлы 15,16,21. Сечения 12-12 - 15-15
Узлы 17-20
Блок "Г". Ограждение окон спортзала. План спортзала
Блок "Г". Сводная спецификация выше отм. 0.000
Разработан: КБ по железобетону им. А.А. Якушева
Утверждён:14.04.1989 Госкомархстрой РСФСР (Russian Federation Goskomarkhstroy 108)
Расположен в:Техническая документация Строительство Справочные документы Типовые строительные конструкции, изделия и узлы Общероссийский строительный каталог Общественные здания в городах и поселках городского типа Школы и внешкольные учреждения Общеобразовательные школы
Типовой проект 221-1-706.92Типовой проект 221-1-706.92Типовой проект 221-1-706.92Типовой проект 221-1-706.92Типовой проект 221-1-706.92Типовой проект 221-1-706.92Типовой проект 221-1-706.92Типовой проект 221-1-706.92Типовой проект 221-1-706.92Типовой проект 221-1-706.92Типовой проект 221-1-706.92Типовой проект 221-1-706.92Типовой проект 221-1-706.92Типовой проект 221-1-706.92Типовой проект 221-1-706.92Типовой проект 221-1-706.92Типовой проект 221-1-706.92Типовой проект 221-1-706.92Типовой проект 221-1-706.92Типовой проект 221-1-706.92Типовой проект 221-1-706.92Типовой проект 221-1-706.92Типовой проект 221-1-706.92Типовой проект 221-1-706.92Типовой проект 221-1-706.92Типовой проект 221-1-706.92Типовой проект 221-1-706.92Типовой проект 221-1-706.92Типовой проект 221-1-706.92Типовой проект 221-1-706.92Типовой проект 221-1-706.92Типовой проект 221-1-706.92Типовой проект 221-1-706.92Типовой проект 221-1-706.92Типовой проект 221-1-706.92Типовой проект 221-1-706.92Типовой проект 221-1-706.92Типовой проект 221-1-706.92Типовой проект 221-1-706.92Типовой проект 221-1-706.92Типовой проект 221-1-706.92Типовой проект 221-1-706.92Типовой проект 221-1-706.92Типовой проект 221-1-706.92Типовой проект 221-1-706.92Типовой проект 221-1-706.92Типовой проект 221-1-706.92Типовой проект 221-1-706.92Типовой проект 221-1-706.92Типовой проект 221-1-706.92Типовой проект 221-1-706.92Типовой проект 221-1-706.92Типовой проект 221-1-706.92Типовой проект 221-1-706.92Типовой проект 221-1-706.92Типовой проект 221-1-706.92Типовой проект 221-1-706.92Типовой проект 221-1-706.92Типовой проект 221-1-706.92Типовой проект 221-1-706.92Типовой проект 221-1-706.92Типовой проект 221-1-706.92Типовой проект 221-1-706.92Типовой проект 221-1-706.92Типовой проект 221-1-706.92Типовой проект 221-1-706.92Типовой проект 221-1-706.92Типовой проект 221-1-706.92Типовой проект 221-1-706.92Типовой проект 221-1-706.92Типовой проект 221-1-706.92Типовой проект 221-1-706.92Типовой проект 221-1-706.92Типовой проект 221-1-706.92Типовой проект 221-1-706.92Типовой проект 221-1-706.92Типовой проект 221-1-706.92Типовой проект 221-1-706.92Типовой проект 221-1-706.92Типовой проект 221-1-706.92Типовой проект 221-1-706.92Типовой проект 221-1-706.92Типовой проект 221-1-706.92Типовой проект 221-1-706.92Типовой проект 221-1-706.92Типовой проект 221-1-706.92Типовой проект 221-1-706.92Типовой проект 221-1-706.92Типовой проект 221-1-706.92

© 2013 Ёшкин Кот :-) Карта сайта