Информационная система
«Ёшкин Кот»

Скачать базу одним архивом
Скачать обновления
История создания базы
Карта сайта

Скачать Типовой проект 221-1-706.92 Альбом 1. Архитектурно-строительные чертежи ниже отм. 0.000

Дата актуализации: 10.08.2017

Типовой проект 221-1-706.92

Альбом 1. Архитектурно-строительные чертежи ниже отм. 0.000

Обозначение: Типовой проект 221-1-706.92
Обозначение англ: 221-1-706.92
Статус:не определен законодательством
Название рус.:Альбом 1. Архитектурно-строительные чертежи ниже отм. 0.000
Дата добавления в базу:01.09.2013
Дата актуализации:05.05.2017
Дата введения:30.06.1992
Оглавление:Содержание. Общие данные (начало)
Общие данные (продолжение)
Общие данные (окончание)
Блок "А". План фундаментов
Блок "Б". План фундаментов
Блок "В". План фундаментов
Блок "Б". План цокольных стен
Блок "В". План цокольных стен. Конструкция венткамеры № 3
Блок А и Б. Развертки стен
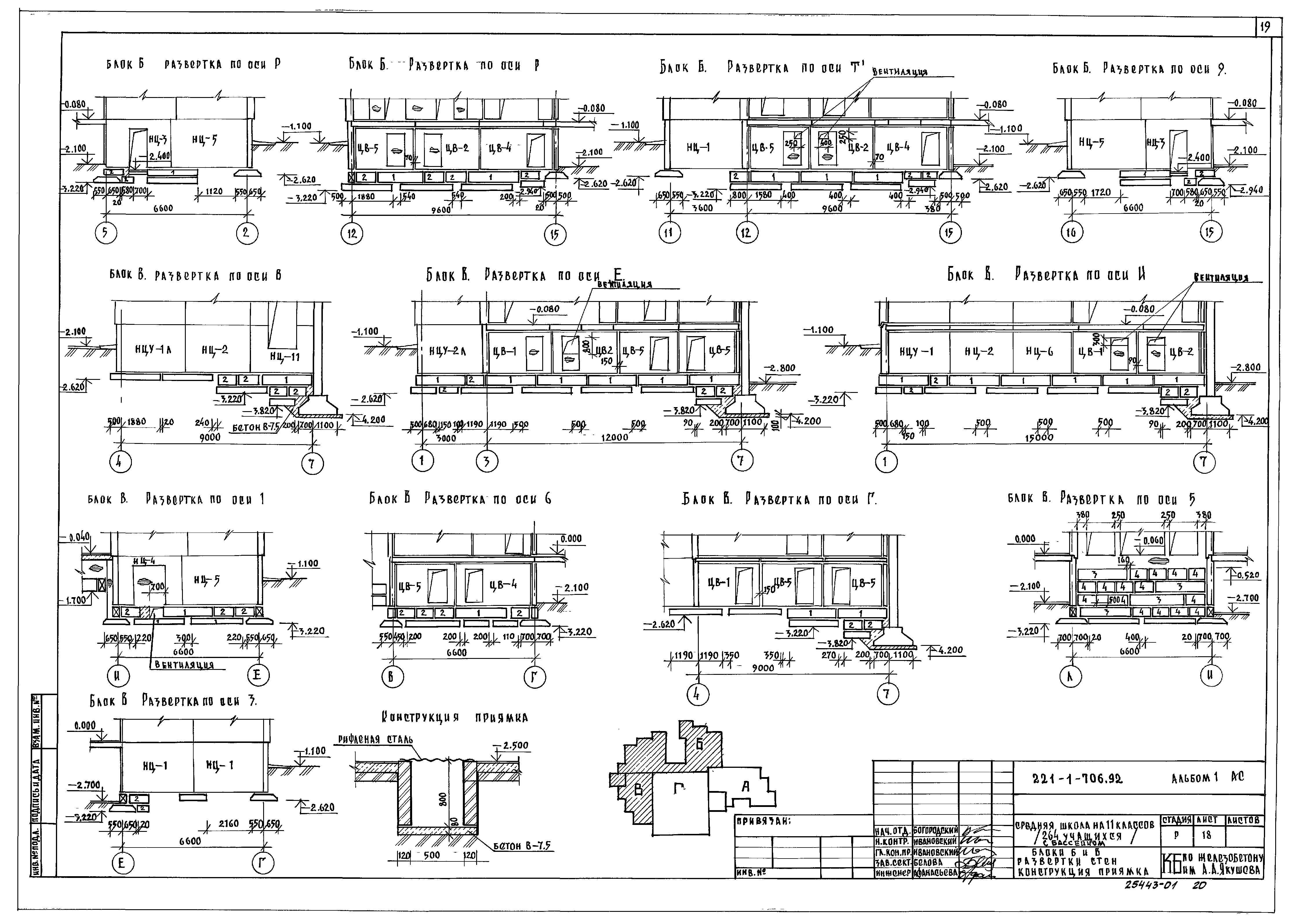
Блоки Б и В. Развертки стен. Конструкция приямка
Конструкция воздухозаборной шахты и венткамеры № 1
Конструкция венткамеры № 2
Блок "А". Схема перекрытия над техподпольем
Блок "А". Схема перекрытия над техподпольем (вариант)
Блок "Б". Схема перекрытия над техподпольем
Блок "Б". Схема перекрытия над техподпольем (вариант)
Блок "В". Схема перекрытия над техподпольем
Вход № 1,2. Фрагмент фасада. Сечение 1-1
Вход № 1,2 (фрагмент плана). Сечение 3-3 (вход № 2). Вход № 12. Фрагмент фасада. План, сечение 4-4
Конструкция входов № 1, № 2
Вход № 4. Фрагмент фасада, плана. Фрагмент фасада, плана
Конструкция входов № 4, № 5 и входа в техподполье
Вход № 8. Фрагмент плана, фасада, сечения
Вход № 10, фрагмент фасада, план
Конструкция входов № 6 и № 8
Конструкция входов № 10,№ 11
Монтажные узлы 1-14
Сводная спецификация ниже отм. 0.000 (начало)
Сводная спецификация ниже отм. 0.000 (продолжение)
Сводная спецификация ниже отм. 0.000 (окончание)
Блок "Г". План подвала
Блок "Г". План фундаментов
Блок "Г". План наружных и внутренних стен техподполья
Монтажный план колонн техподполья. Разрезы 1-1 - 3-3
Монтажный план колонн верхних этажей. Разрезы 4-4 - 6-6
Блок "Г". Фрагмент плана техподполья. Ведомость перемычек. Развертка А-А
Блок "Г". Развертка стен по оси "А". Сечения 1-1 - 6-6
Блок "Г". Развертка по осям 9,10,А,Г. Сечение 7-7
Блок "Г". Развертки стен по осям 7,9,14. Сечения 8-8,9-9
Блок "Г". Схема перекрытия над техподпольем
Блок "Г". Схема перекрытия над техподпольем (вариант)
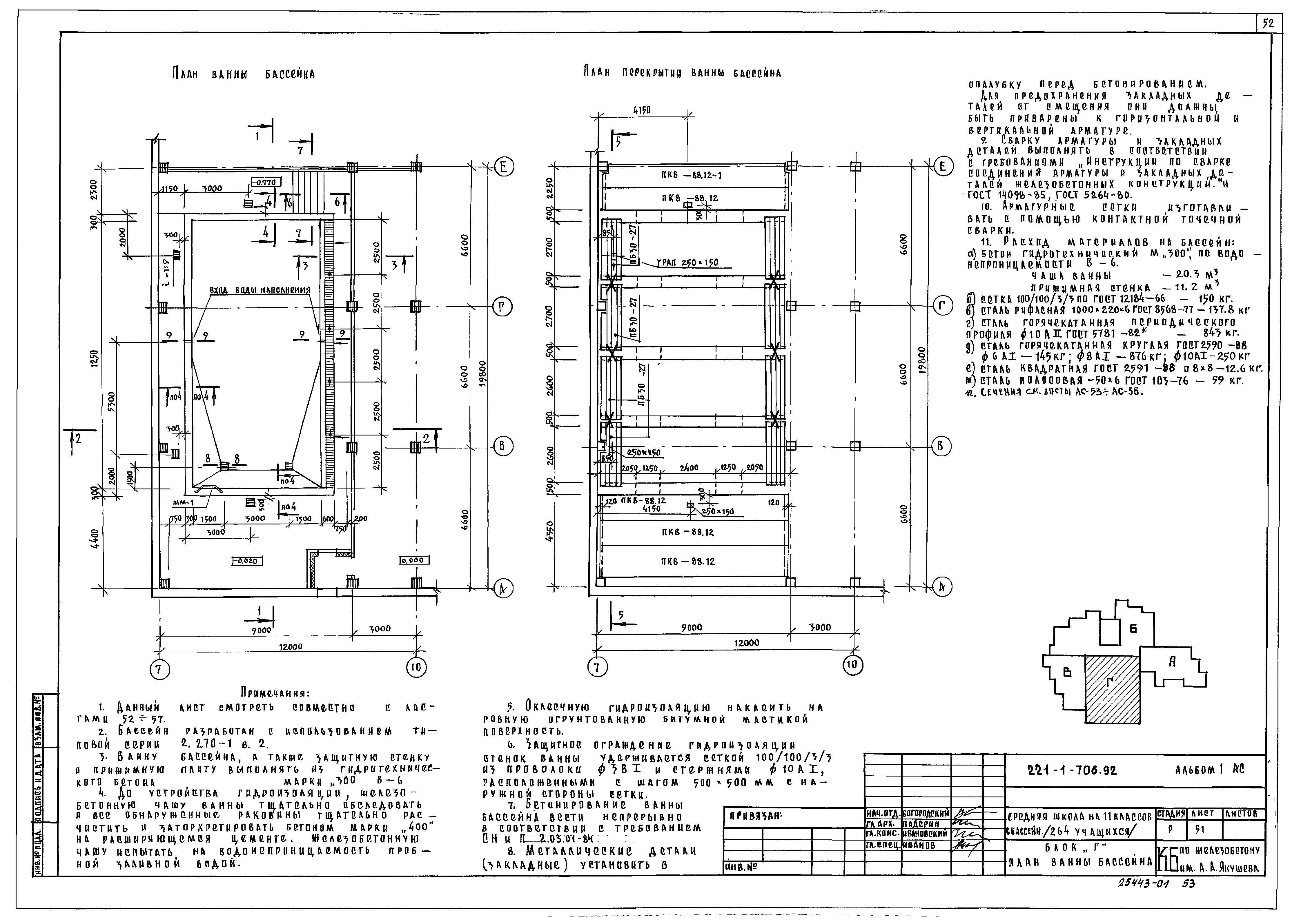
Блок "Г". План ванны бассейна
Блок "Г". План фундаментов под ванну бассейна. Сечения 1-1 - 6-6
Блок "Г". Сечения 1-1 - 6-6
Блок "Г". Разрезы 1-1 - 5-5
Блок "Г". Разрезы 2-2 - 4-4;6-6;7-7
Блок "Г". Монтажный план перемычек ф-та ванны бассейна
Блок "Г". Армирование ванны бассейна
Блок "Г". Арматурные сетки С-1-С-13
Блок "Г". Сечения 8-8,9-9. Детали М-3,М-4,ИМ-2,ММ-3
Блок "Г". Закладные детали М-1И,М-2И,ММ-1И
Блок "Г". Конструкция входа № 12 и входа в техподполье
Блок "Г". Сводная спецификация ниже отм. 0.000 (начало)
Блок "Г". Сводная спецификация ниже отм. 0.000 (окончание)
Разработан: КБ по железобетону им. А.А. Якушева
Утверждён:14.04.1989 Госкомархстрой РСФСР (Russian Federation Goskomarkhstroy 108)
Расположен в:Техническая документация Строительство Справочные документы Типовые строительные конструкции, изделия и узлы Общероссийский строительный каталог Общественные здания в городах и поселках городского типа Школы и внешкольные учреждения Общеобразовательные школы
Типовой проект 221-1-706.92Типовой проект 221-1-706.92Типовой проект 221-1-706.92Типовой проект 221-1-706.92Типовой проект 221-1-706.92Типовой проект 221-1-706.92Типовой проект 221-1-706.92Типовой проект 221-1-706.92Типовой проект 221-1-706.92Типовой проект 221-1-706.92Типовой проект 221-1-706.92Типовой проект 221-1-706.92Типовой проект 221-1-706.92Типовой проект 221-1-706.92Типовой проект 221-1-706.92Типовой проект 221-1-706.92Типовой проект 221-1-706.92Типовой проект 221-1-706.92Типовой проект 221-1-706.92Типовой проект 221-1-706.92Типовой проект 221-1-706.92Типовой проект 221-1-706.92Типовой проект 221-1-706.92Типовой проект 221-1-706.92Типовой проект 221-1-706.92Типовой проект 221-1-706.92Типовой проект 221-1-706.92Типовой проект 221-1-706.92Типовой проект 221-1-706.92Типовой проект 221-1-706.92Типовой проект 221-1-706.92Типовой проект 221-1-706.92Типовой проект 221-1-706.92Типовой проект 221-1-706.92Типовой проект 221-1-706.92Типовой проект 221-1-706.92Типовой проект 221-1-706.92Типовой проект 221-1-706.92Типовой проект 221-1-706.92Типовой проект 221-1-706.92Типовой проект 221-1-706.92Типовой проект 221-1-706.92Типовой проект 221-1-706.92Типовой проект 221-1-706.92Типовой проект 221-1-706.92Типовой проект 221-1-706.92Типовой проект 221-1-706.92Типовой проект 221-1-706.92Типовой проект 221-1-706.92Типовой проект 221-1-706.92Типовой проект 221-1-706.92Типовой проект 221-1-706.92Типовой проект 221-1-706.92Типовой проект 221-1-706.92Типовой проект 221-1-706.92Типовой проект 221-1-706.92Типовой проект 221-1-706.92Типовой проект 221-1-706.92Типовой проект 221-1-706.92Типовой проект 221-1-706.92Типовой проект 221-1-706.92Типовой проект 221-1-706.92Типовой проект 221-1-706.92Типовой проект 221-1-706.92Типовой проект 221-1-706.92

© 2013 Ёшкин Кот :-) Карта сайта