Информационная система
«Ёшкин Кот»

Скачать базу одним архивом
Скачать обновления
История создания базы
Карта сайта

Скачать Типовой проект 806-2-33.89 Альбом 2. Нестандартизированное оборудование

Дата актуализации: 10.08.2017

Типовой проект 806-2-33.89

Альбом 2. Нестандартизированное оборудование

Обозначение: Типовой проект 806-2-33.89
Обозначение англ: 806-2-33.89
Статус:не определен законодательством
Название рус.:Альбом 2. Нестандартизированное оборудование
Дата добавления в базу:01.09.2013
Дата актуализации:05.05.2017
Дата введения:12.01.1989
Оглавление:ТХ.НЧ-00.00.000ВС Блок песцовый. Ведомость спецификаций
ТХ.НЧ-00.00.000 Блок песцовый. Спецификация
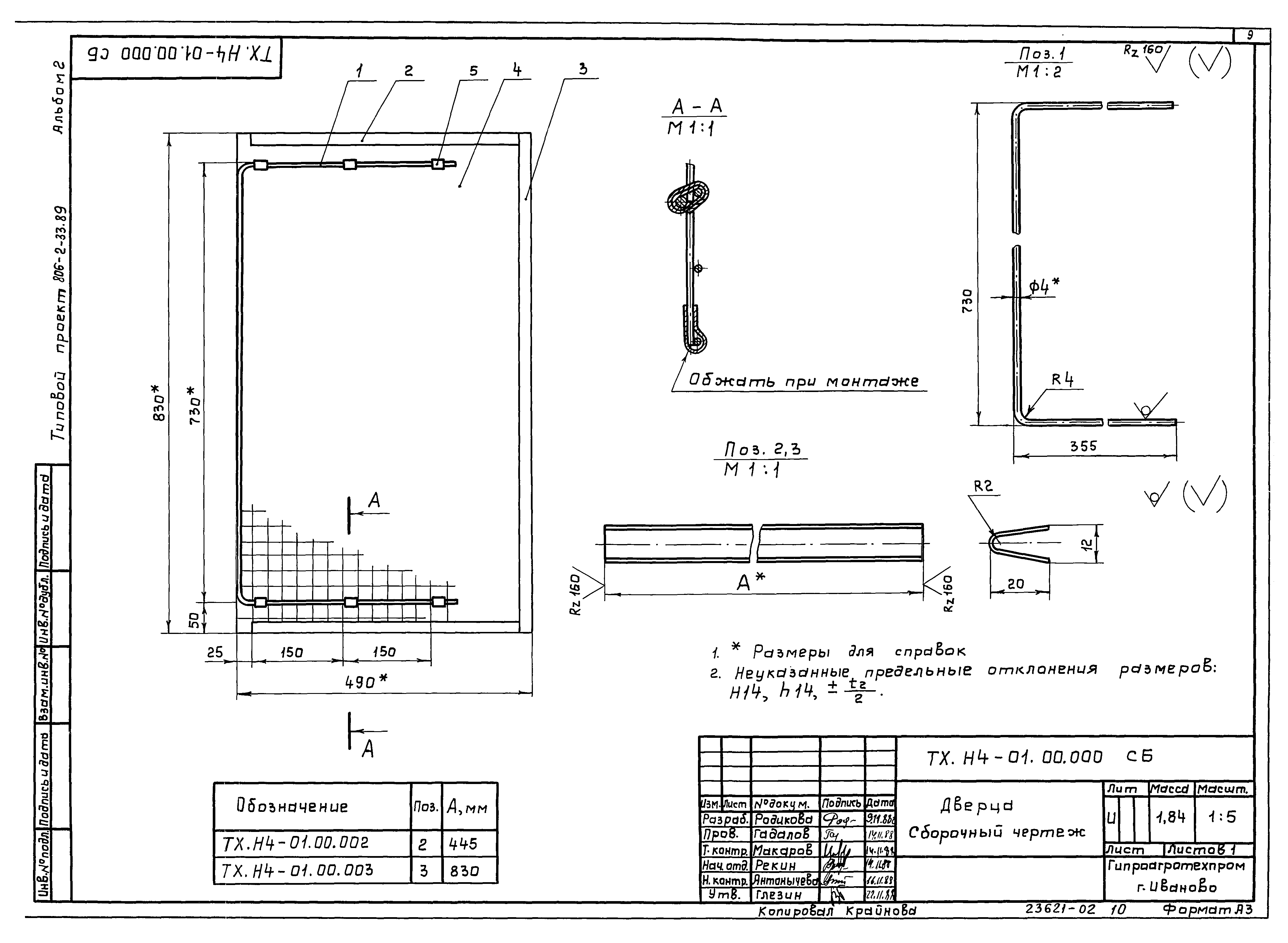
ТХ.НЧ-01.00.000 Дверца. Спецификация
ТХ.НЧ-02.00.000 Полка кормовая. Спецификация
ТХ.НЧ-00.00.000 СБ Блок песцовый. Сборочный чертеж
ТХ.НЧ-01.00.000 СБ Дверца. Сборочный чертеж
ТХ.НЧ-02.00.000 СБ Полка кормовая. Сборочный чертеж
Разработан: ОАО Институт Гипроагротехпром
Утверждён:12.01.1989 Гипроагротехпром (13)
Расположен в:Техническая документация Строительство Справочные документы Типовые строительные конструкции, изделия и узлы Общероссийский строительный каталог Сельскохозяйственные предприятия, здания и сооружения Предприятия звероводческие и кролиководческие Здания и сооружения
Типовой проект 806-2-33.89Типовой проект 806-2-33.89Типовой проект 806-2-33.89Типовой проект 806-2-33.89Типовой проект 806-2-33.89Типовой проект 806-2-33.89Типовой проект 806-2-33.89Типовой проект 806-2-33.89Типовой проект 806-2-33.89Типовой проект 806-2-33.89Типовой проект 806-2-33.89

© 2013 Ёшкин Кот :-) Карта сайта