Информационная система
«Ёшкин Кот»

Скачать базу одним архивом
Скачать обновления
История создания базы
Карта сайта

Скачать Типовой проект 211-1-534.92 Альбом 1. Архитектурно-строительные чертежи ниже и выше отм. 0.000. Технологические чертежи

Дата актуализации: 10.08.2017

Типовой проект 211-1-534.92

Альбом 1. Архитектурно-строительные чертежи ниже и выше отм. 0.000. Технологические чертежи

Обозначение: Типовой проект 211-1-534.92
Обозначение англ: 211-1-534.92
Статус:не определен законодательством
Название рус.:Альбом 1. Архитектурно-строительные чертежи ниже и выше отм. 0.000. Технологические чертежи
Дата добавления в базу:01.09.2013
Дата актуализации:05.05.2017
Дата введения:10.01.1993
Оглавление:Состав проекта
Общие данные (начало)
Общие данные (окончание)
Генплан. Технико-экономические показатели
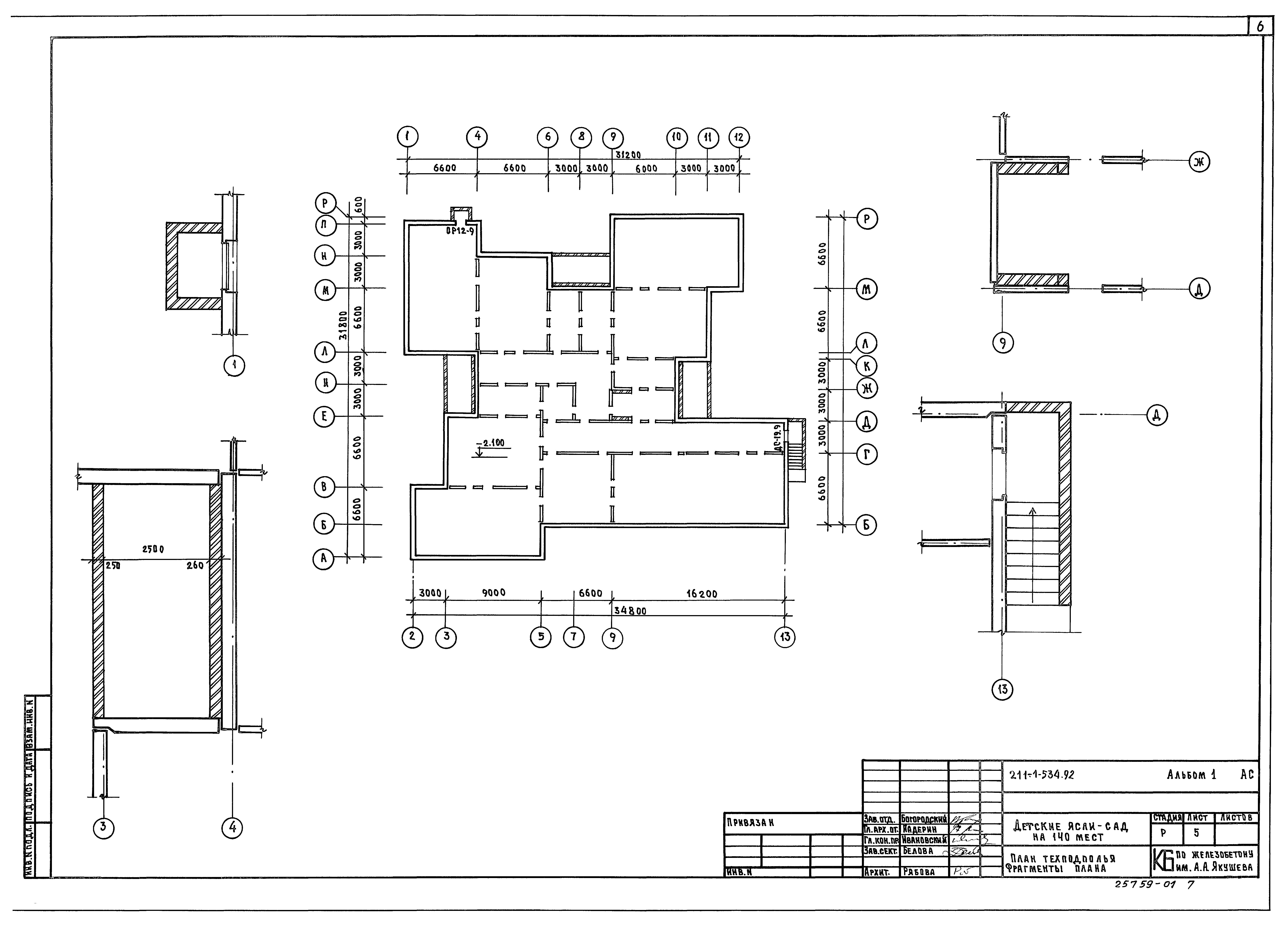
План техподполья
План фундаментов
План фундаментов веранды (вариант). Сечения 1-1-9-9. Развертки стен ниже отм. 0.000
Монтажный план стен ниже отм. 0.000
Схема панелей перекрытия над техподпольем шир. 3.0 м
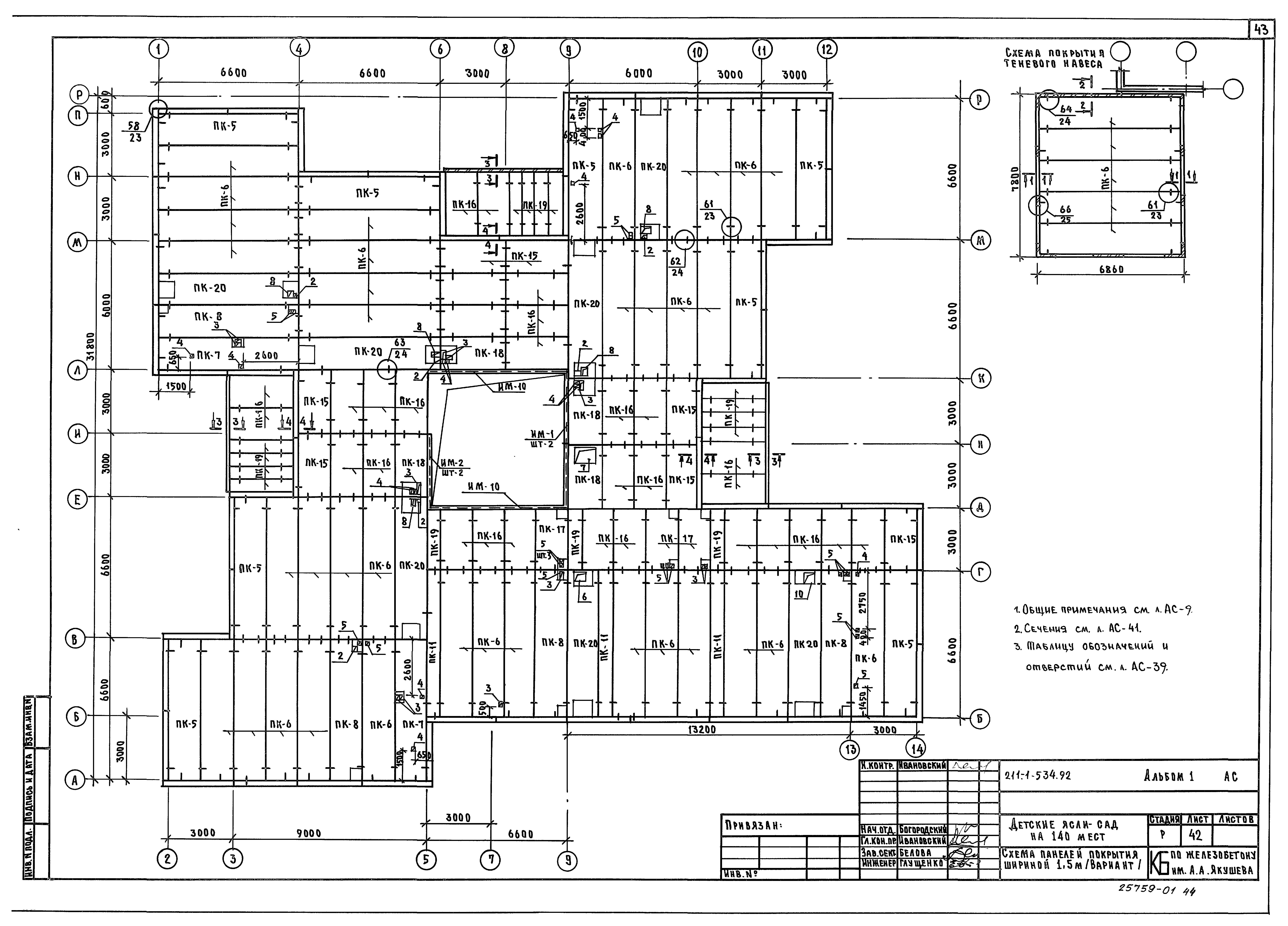
Схема панелей перекрытия над техподпольем шир. 1.5 м (вариант)
Теневой навес (вариант). Вход № 1
Вход № 3. Вход в техподполье
Конструкция пожарной лестницы (начало)
Конструкция пожарной лестницы (окончание)
Конструкция воздухозаборной шахты, венткамеры
Сводная спецификация ниже отм. 0.000 (начало)
Сводная спецификация ниже отм. 0.000 (окончание)
Фасады 13-1,А-Р
Фасад 1-13. Разрез 1-1
Фасады 13-1,А-Р (вариант)
План 1 этажа
План 2 этажа
Фрагмент плана 1 этажа. Остекленная перегородка
План отделочных работ 1 этажа
План отделочных работ 2 этажа
Ведомость отделки помещений. Экспликация полов
Спецификация столярных изделий
Ограждение радиаторов ОР-1;ОР-2
Ограждение ИМ-1,ИМ-16
Устройство входа № 2. Ограждение ИМ-14
Вход № 1. Фрагмент фасада. Наличники окон. Наличники окон (вариант)
Вход № 1 (вариант) с теневым навесом
Вход № 3. Фрагменты плана фасада. Вход № 4. Фрагмент плана фасада. Сечения. Узлы. Спецификация
Порядовка наружных стен входа № 1
Порядовка наружных стен теневого навеса
Развертки наружных стен. Узлы 1,1а,2,2а
Монтажный план стен 1 этажа
Монтажный план стен 2 этажа
Схема панелей перекрытия над 1 этажом шириной 3.0 м
Схема панелей перекрытия над 1 этажом шириной 1.5 м (вариант)
Схема панелей покрытия шириной 3.0 м
Схема панелей покрытия шириной 1.5 м (вариант)
План раскладки парапетных панелей
План расположения стоек, прогонов, подкосов, раскосов
План расположения стропильных ног
Разрезы 1-1 - 3-3. Узлы 7-10
Узлы по крыши 1-6
Щиты утепления ЩУ-1,ЩУ-2. Шиты покрытия ЩП-1,ЩП-2
Крыша. Спецификация. Узлы
Узлы соединения внутренних стеновых панелей
Разрез лестничной клетки. Разрезы 1-1;2-2. Сечения 1-1 - 7-7
Узлы 1-3. Детали крепления ограждения
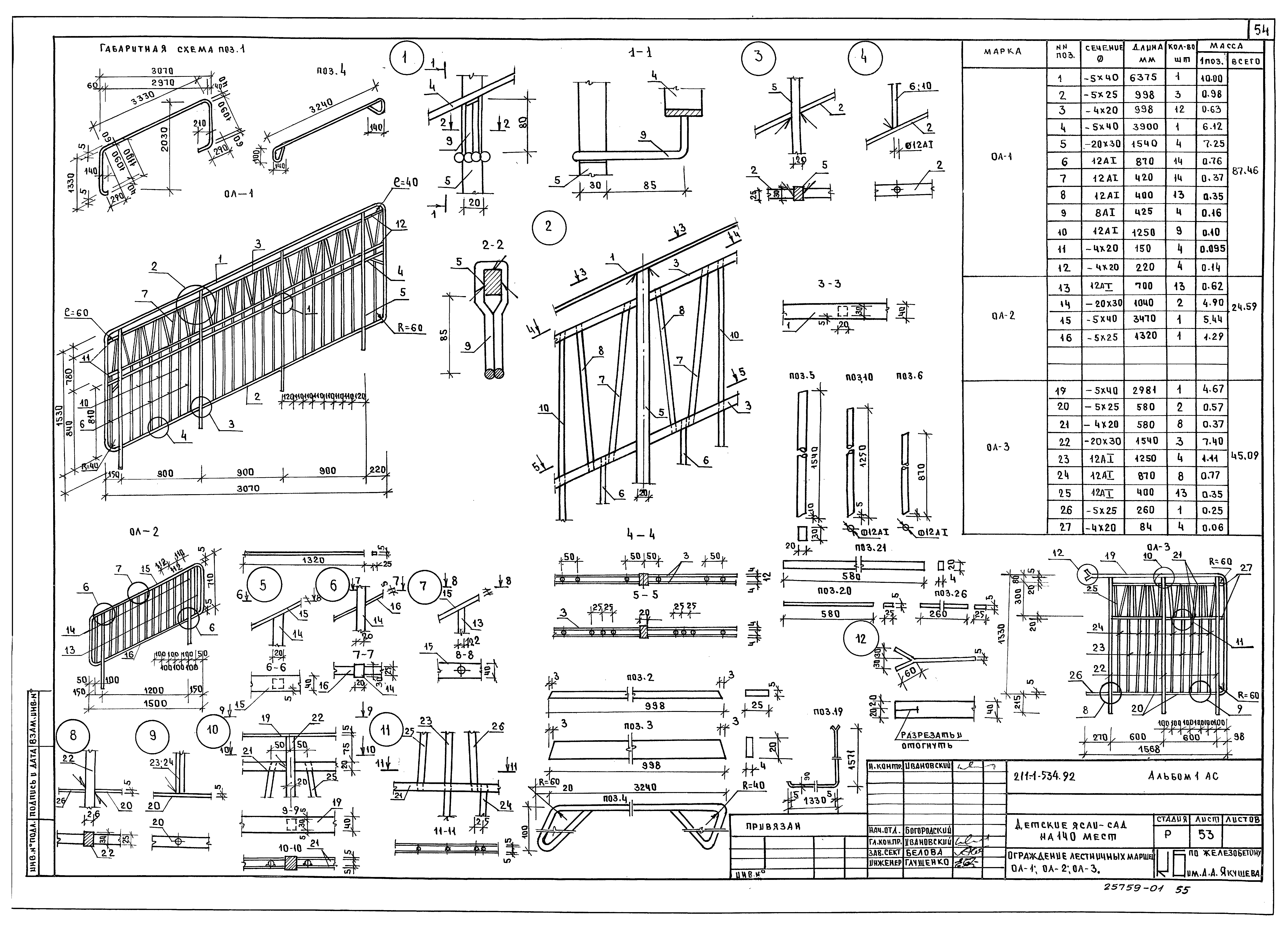
Ограждение лестничных маршей ОЛ-1;ОЛ-2;ОЛ-3
Сводная спецификация выше отм. 0.000 (начало)
Сводная спецификация выше отм. 0.000 (окончание)
Технологическое оборудование
Общие данные
План 1 этажа с размещением технологического оборудования
План 2 этажа с размещением технологического оборудования
Фрагмент плана 1 этажа. Привязка подводок коммуникаций к технологическому оборудованию
ТХ.СО Спецификация технологического оборудования
Разработан: КБ по железобетону им. А.А. Якушева
Утверждён:01.11.1989 Госстрой РСФСР (Russian Federation Gosstroy 150)
Расположен в:Техническая документация Строительство Справочные документы Типовые строительные конструкции, изделия и узлы Общероссийский строительный каталог Общественные здания в городах и поселках городского типа Детские дошкольные учреждения Детские ясли-сады
Типовой проект 211-1-534.92Типовой проект 211-1-534.92Типовой проект 211-1-534.92Типовой проект 211-1-534.92Типовой проект 211-1-534.92Типовой проект 211-1-534.92Типовой проект 211-1-534.92Типовой проект 211-1-534.92Типовой проект 211-1-534.92Типовой проект 211-1-534.92Типовой проект 211-1-534.92Типовой проект 211-1-534.92Типовой проект 211-1-534.92Типовой проект 211-1-534.92Типовой проект 211-1-534.92Типовой проект 211-1-534.92Типовой проект 211-1-534.92Типовой проект 211-1-534.92Типовой проект 211-1-534.92Типовой проект 211-1-534.92Типовой проект 211-1-534.92Типовой проект 211-1-534.92Типовой проект 211-1-534.92Типовой проект 211-1-534.92Типовой проект 211-1-534.92Типовой проект 211-1-534.92Типовой проект 211-1-534.92Типовой проект 211-1-534.92Типовой проект 211-1-534.92Типовой проект 211-1-534.92Типовой проект 211-1-534.92Типовой проект 211-1-534.92Типовой проект 211-1-534.92Типовой проект 211-1-534.92Типовой проект 211-1-534.92Типовой проект 211-1-534.92Типовой проект 211-1-534.92Типовой проект 211-1-534.92Типовой проект 211-1-534.92Типовой проект 211-1-534.92Типовой проект 211-1-534.92Типовой проект 211-1-534.92Типовой проект 211-1-534.92Типовой проект 211-1-534.92Типовой проект 211-1-534.92Типовой проект 211-1-534.92Типовой проект 211-1-534.92Типовой проект 211-1-534.92Типовой проект 211-1-534.92Типовой проект 211-1-534.92Типовой проект 211-1-534.92Типовой проект 211-1-534.92Типовой проект 211-1-534.92Типовой проект 211-1-534.92Типовой проект 211-1-534.92Типовой проект 211-1-534.92Типовой проект 211-1-534.92Типовой проект 211-1-534.92Типовой проект 211-1-534.92Типовой проект 211-1-534.92Типовой проект 211-1-534.92Типовой проект 211-1-534.92Типовой проект 211-1-534.92

© 2013 Ёшкин Кот :-) Карта сайта