Скачать Альбом ИЖ 26-79 Стропильные балки СБЗ-18-182, СБЗ-18-282. Рабочие чертежиДата актуализации: 10.08.2017 Альбом ИЖ 26-79
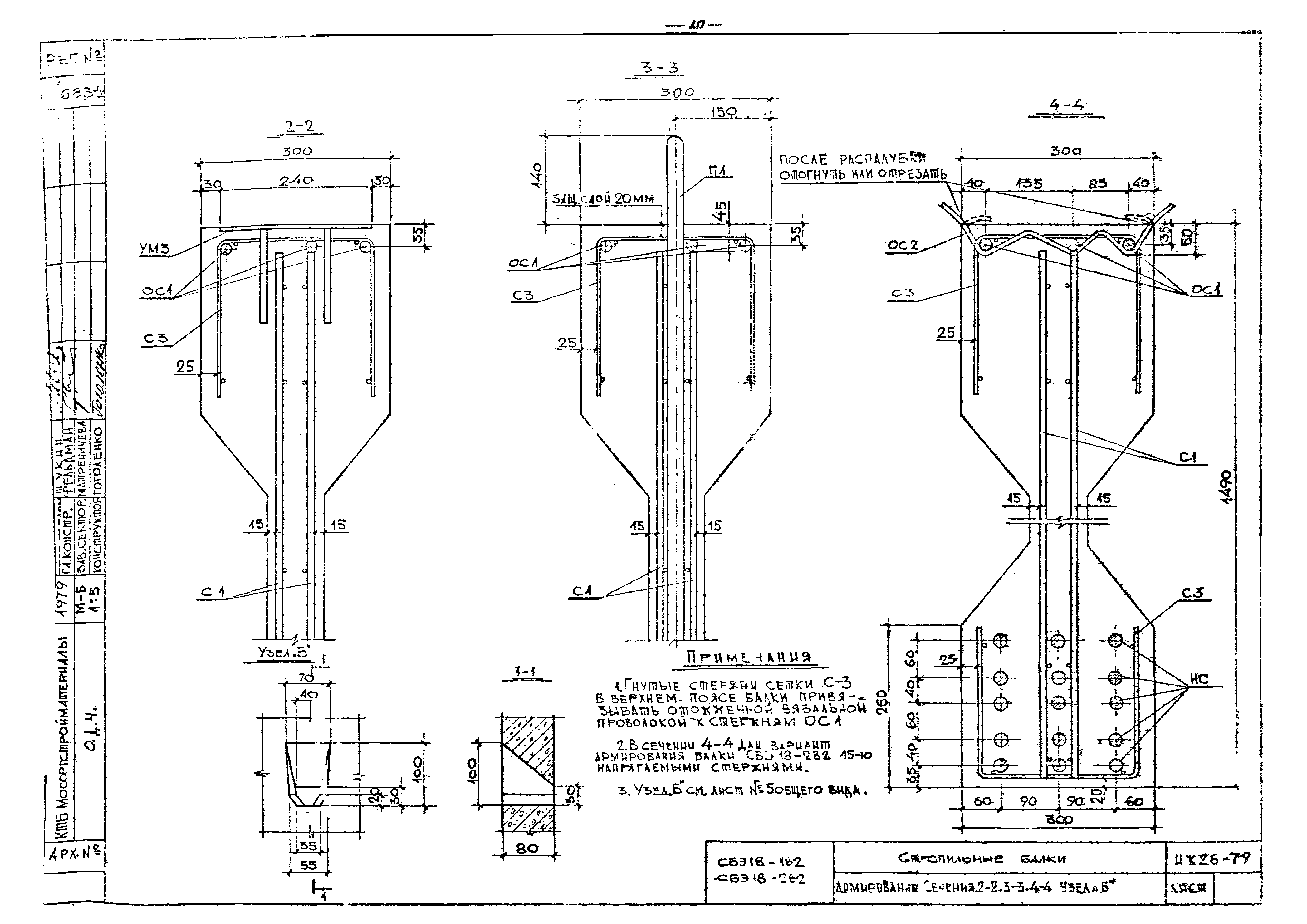
Стропильные балки СБЗ-18-182, СБЗ-18-282. Рабочие чертежиОбозначение: | Альбом ИЖ 26-79 | Обозначение англ: | ИЖ 26-79 | Статус: | не действует | Название рус.: | Стропильные балки СБЗ-18-182, СБЗ-18-282. Рабочие чертежи | Дата добавления в базу: | 01.09.2013 | Дата актуализации: | 05.05.2017 | Оглавление: | Содержание и пояснительная записка Нагрузки. Расчетная схема и схема испытания Общий вид Варианты напрягаемой арматуры Армирование Армирование. Узел 1 Армирование. Узел 2 Армирование. Сечения: 2-2, 3-3, 4-4. Узел "Б" Сетки C1, С2, С3 Сетки С5, С6; петля П1 Отдельные стержни OC1, CC2; напрягаемые стержня, НС2, НС3, спираль СП1 Закладные детали M1, М2, УМ3 и накладная деталь МН1 Выборка стали Сетка С5а Вариант расположения напрягаемой арматуры для применения цанговых захватов НИИЖБА | Разработан: | Мосоргстройматериалы
| Утверждён: | 01.06.1980 Мосоргстройматериалы (26)
| Расположен в: |
|
                 
|