Информационная система
«Ёшкин Кот»

Скачать базу одним архивом
Скачать обновления
История создания базы
Карта сайта

Скачать Типовой проект 902-9-3 Альбом III. Технологическая и санитарно-техническая части (вариант - стены панельные)

Дата актуализации: 10.08.2017

Типовой проект 902-9-3

Альбом III. Технологическая и санитарно-техническая части (вариант - стены панельные)

Обозначение: Типовой проект 902-9-3
Обозначение англ: 902-9-3
Статус:действует
Название рус.:Альбом III. Технологическая и санитарно-техническая части (вариант - стены панельные)
Дата добавления в базу:01.09.2013
Дата актуализации:05.05.2017
Дата введения:25.03.1974
Оглавление:Содержание альбома
Пояснительная записка
Технологическая часть
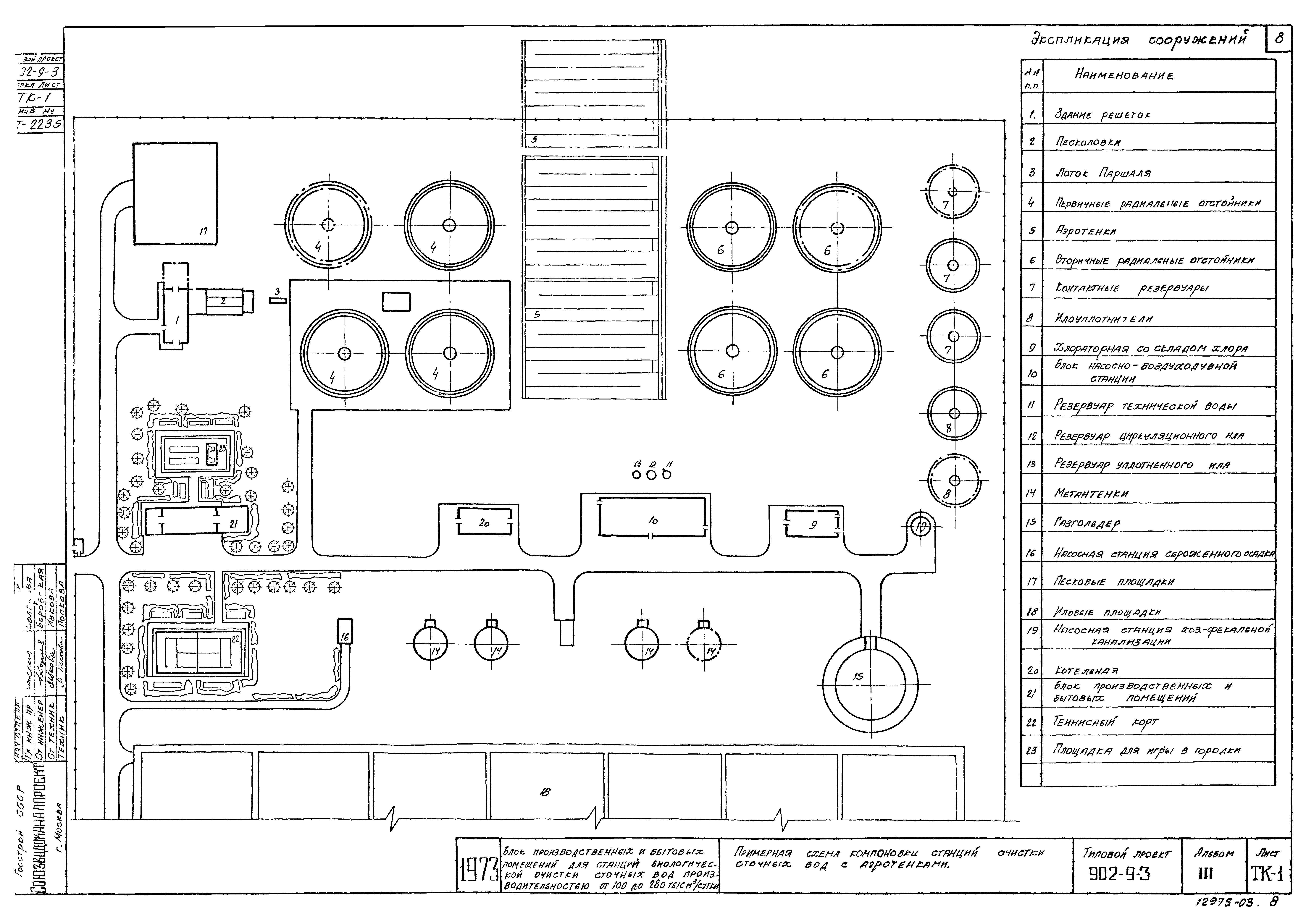
ТК-1 Примерная схема компоновки станции очистки сточных вод с аэротенками
ТК-2 Химическая и бактериологическая лаборатории. План, разрезы, схема подсоединении сантехпанелей и экспликация оборудования.
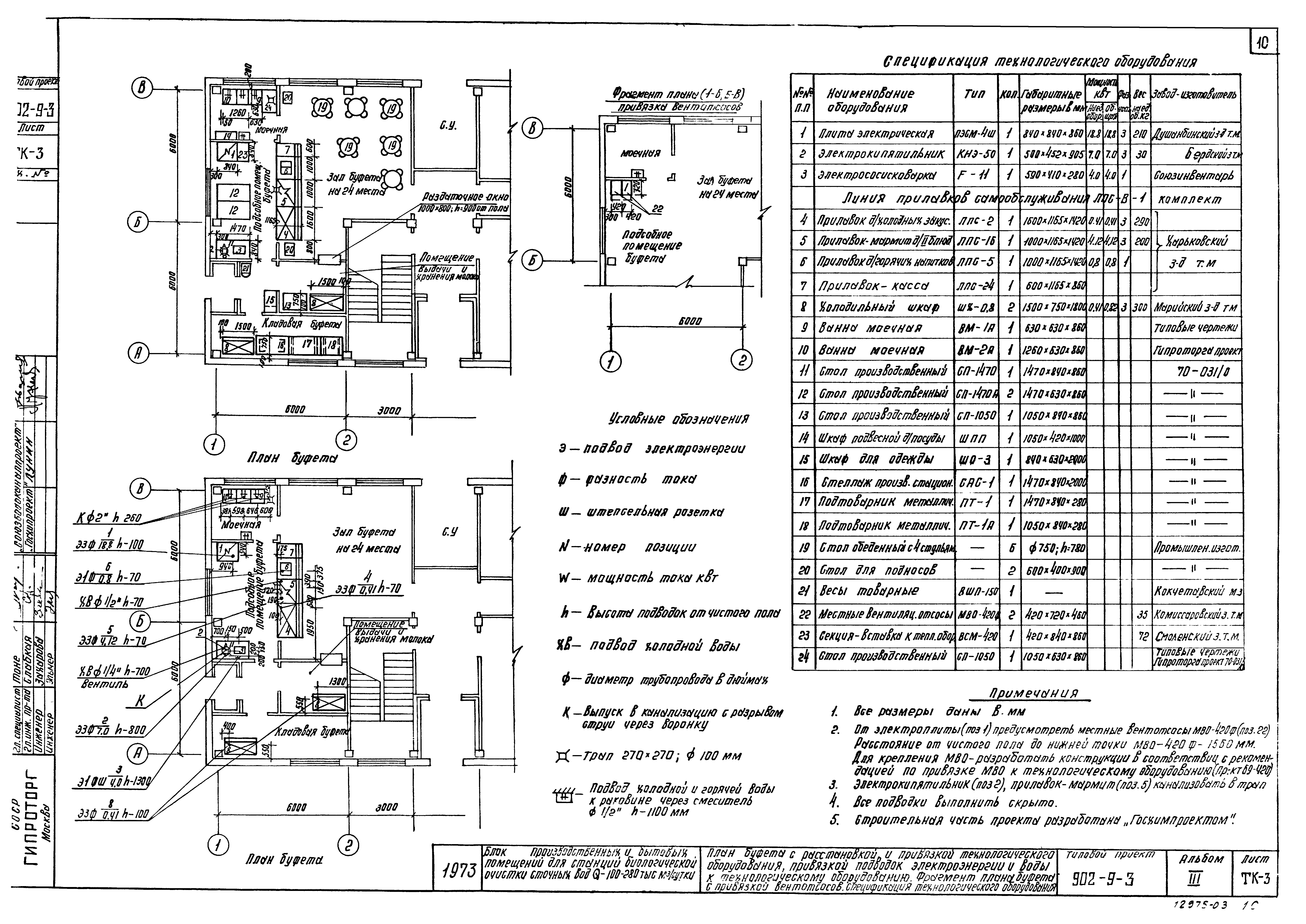
ТК-3 План буфета с расстановкой и привязкой технологического оборудования, привязкой подводок электроэнергии и воды к технологическому оборудованию. Фрагмент плана буфета с привязкой вентотсосов. Спецификация технологического оборудования.
Отопление и вентиляция
ОВ-1 Характеристика отопительно-вентиляционного оборудования. Таблица объемов воздуха, удаляемого местными отсосами.
ОВ-2 Таблица воздушных балансов помещений
ОВ-3 План на отм.+0.00 . Отопление и вентиляция
ОВ-4 План на отм.+3.30. Отопление и вентиляция
ОВ-5 Установочный чертеж системы П-1. Схема обвязки калориферов. Спецификация.
ОВ-6 Установочный чертеж систем B-1, В-2, В-3. Спецификация
ОВ-7 Установочный чертеж систем В-4-В-7. Спецификация.
ОВ-8 Установочный чертеж теплового пункта.
ОВ-9 Схема отопления, схема обвязки водоподогревателя.
ОВ-10 Схемы вентиляции систем П-1, В-2, В-3
ОВ-11 Схемы вентиляции систем B-1, B-4, В-5, В-6, В-7,В-8.
ОВ-12 Сводная спецификация (лист № 1)
ОВ-13 Сводная спецификация (лист № 2)
ОВ-14 Сводная спецификация (лист № 3)
Водопровод и канализация
ВК-1 Расчетные расходы воды бытовых и производственных сточных вод. Условные обозначения.
ВК-2 План на отм. ±0.00 с сетями водопровода и канализации.
ВК-3 План на отм. 3.300 с сетями водопровода и канализации
ВК-4 Схема сетей хозяйственно-производственного водопровода и водопровода горячей воды
ВК-5 Схемы сетей бытовой, производственной и ливневой канализации
ВК-6 Спецификация
ВК-7 Спецификация (продолжение). Расчет сети хозяйственно-производственного водопровода
Разработан: Госхимпроект
Союзводоканалниипроект
Утверждён:25.02.1974 СоюзводоканалНИИпроект (SoyuzvodokanalNIIproject 40)
Расположен в:Техническая документация Строительство Справочные документы Типовые строительные конструкции, изделия и узлы Общероссийский строительный каталог Промышленные предприятия, здания и сооружения Здания и сооружения санитарно-технические Канализация Сооружения биологической (биохимической) очистки Станции биологической очистки сточных вод
Типовой проект 902-9-3Типовой проект 902-9-3Типовой проект 902-9-3Типовой проект 902-9-3Типовой проект 902-9-3Типовой проект 902-9-3Типовой проект 902-9-3Типовой проект 902-9-3Типовой проект 902-9-3Типовой проект 902-9-3Типовой проект 902-9-3Типовой проект 902-9-3Типовой проект 902-9-3Типовой проект 902-9-3Типовой проект 902-9-3Типовой проект 902-9-3Типовой проект 902-9-3Типовой проект 902-9-3Типовой проект 902-9-3Типовой проект 902-9-3Типовой проект 902-9-3Типовой проект 902-9-3Типовой проект 902-9-3Типовой проект 902-9-3Типовой проект 902-9-3Типовой проект 902-9-3Типовой проект 902-9-3Типовой проект 902-9-3Типовой проект 902-9-3Типовой проект 902-9-3Типовой проект 902-9-3Типовой проект 902-9-3

© 2013 Ёшкин Кот :-) Карта сайта